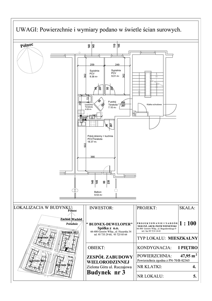
Pokój dzienny + kuchnia PCV/Terakota 18.37 m2 P.pokój

Transkrypt

Pokój dzienny + kuchnia PCV/Terakota 18.37 m2 P.pokój
Sypialnia
PCV
9.01 m2
95
20
Terakota
4.09 m2
207
207
95
72
202
95
7
Terakota
7.10 m 2
95
207
143
502
PCV/Terakota
18.37 m 2
235
80
145
140
366
Balkon
9.53 m 2
362
249
Sypialnia
PCV
9.38 m 2
362
145
110
145
140
259
105
207
Klatka schodowa