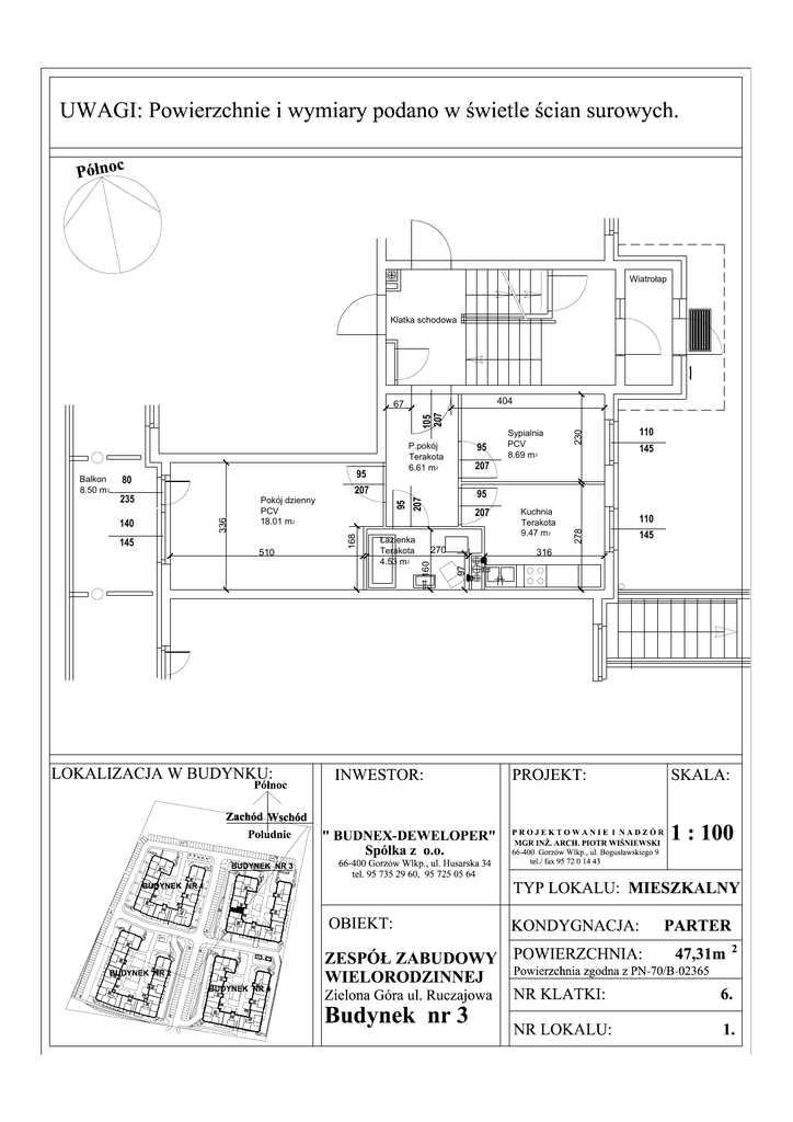
Kuchnia Terakota 9.47 m2 Łazienka Terakota 4.53 m2 Pokój

Transkrypt

Kuchnia Terakota 9.47 m2 Łazienka Terakota 4.53 m2 Pokój
Klatka schodowa
404
95
Terakota
4.53 m 2
270
Kuchnia
Terakota
9.47 m 2
316
97
510
207
160
145
145
95
207
PCV
18.01 m 2
168
140
95
207
235
110
207
110
278
95
80
336
Balkon
8.50 m 2
Terakota
6.61 m 2
Sypialnia
PCV
8.69 m 2
230
105
207
67
145