k PRZEKRÓJ A4

Transkrypt

k PRZEKRÓJ A4
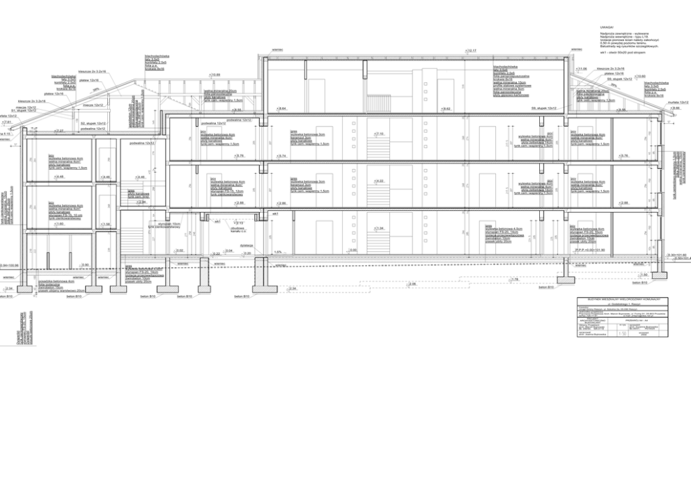
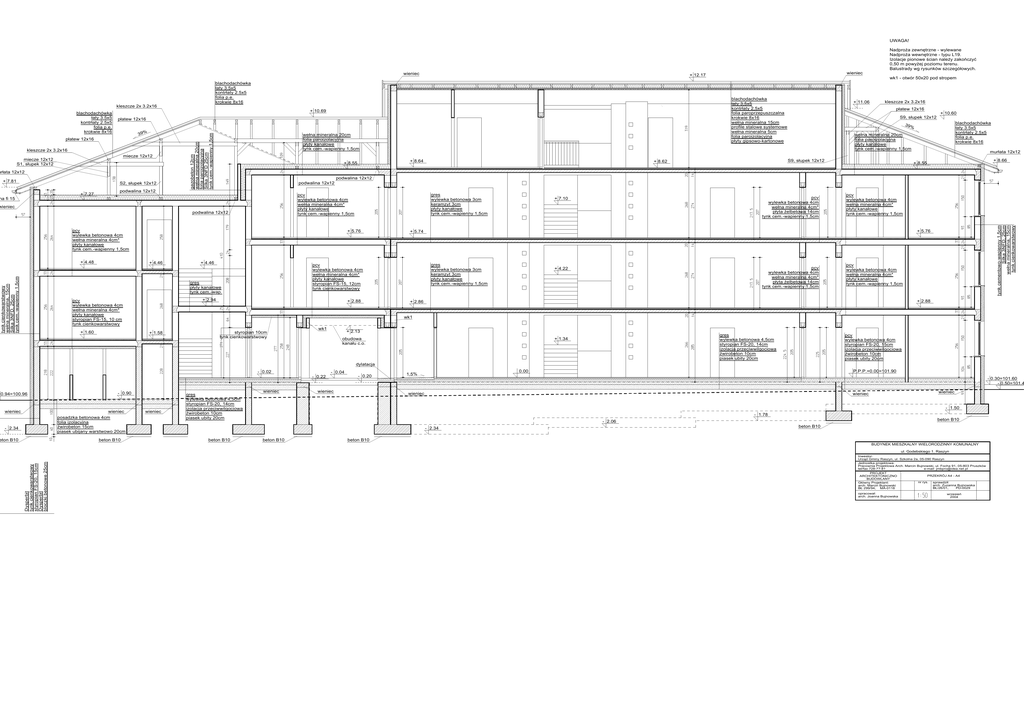
UWAGA!
NadproŜa zewnętrzne - wylewane
NadproŜa wewnętrzne - typu L19.
Izolacje pionowe ścian naleŜy zakończyć
0,50 m powyŜej poziomu terenu.
Balustrady wg rysunków szczegółowych.
wieniec
blachodachówka
łaty 3.5x5
kontrłaty 2.5x5
folia p.e.
krokwie 8x16
+ 10.69
kleszcze 2x 3.2x16
miecze 12x12
miecze 12x12
S1, słupek 12x12
urłata 12x12
+ 7.81
S2, słupek 12x12
+ 7.27
wełna mineralna 20cm
folia paroizolacyjna
płyty kanałowe
tynk cem.-wapienny 1,5cm
podwalina 12x12
pcv
wylewka betonowa 4cm
wełna mineralna 4cm*
płyty kanałowe
tynk cem.-wapienny 1,5cm
+ 5.76
+ 4.46
+ 1.60
blachodachówka
łaty 3.5x5
kontrłaty 2.5x5
folia p.e.
krokwie 8x16
39%
wełna mineralna 20cm
folia paroizolacyjna
płyty kanałowe
tynk cem.-wapienny 1,5cm
murłata 12x12
+ 8.66
+ 8.55
+ 2.94
+ 2.88
pcv
wylewka betonowa 4cm
wełna mineralna 4cm*
płyta Ŝelbetowa 14cm
tynk cem.-wapienny 1,5cm
+ 7.10
pcv
wylewka betonowa 4cm
wełna mineralna 4cm*
płyty kanałowe
tynk cem.-wapienny 1,5cm
+ 5.76
+ 5.74
gres
wylewka betonowa 3cm
keramzyt 3cm
płyty kanałowe
tynk cem.-wapienny 1,5cm
pcv
wylewka betonowa 4cm
wełna mineralna 4cm*
płyty kanałowe
styropian FS-15, 12cm
tynk cienkowarstwowy
gres
płyty kanałowe
tynk cem.-wap.
pcv
wylewka betonowa 4cm
wełna mineralna 4cm*
płyty kanałowe
styropian FS-15, 10 cm
tynk cienkowarstwowy
+ 10.60
S9, słupek 12x12
S9, słupek 12x12
+ 8.62
gres
wylewka betonowa 3cm
keramzyt 3cm
płyty kanałowe
tynk cem.-wapienny 1,5cm
pcv
wylewka betonowa 4cm
wełna mineralna 4cm*
płyty kanałowe
tynk cem.-wapienny 1,5cm
wieniec
+ 4.46
płatew 12x16
podwalina 12x12
podwalina 12x12
+ 4.48
kleszcze 2x 3.2x16
podwalina 12x12
na fi 15
tynk cienkowarstwowy
wełna mineralna, 15cm
Silka 3NFD, 25cm
tynk cem.-wapienny 1,5cm
+ 8.64
+ 8.55
+ 11.06
tynk cementowo-wapienny 1,5cm
Silka 3NFD, 25cm
wełna mineralna, 15cm
tynk cienkowarstwowy
39%
gazobeton 12cm
wełna mineralna 20cm
folia paroizolacyjna
Silka 3NFD 25cm
tynk cem.-wapienny 1,5cm
płatew 12x16
płatew 12x16
wk1 - otwór 50x20 pod stropem
blachodachówka
łaty 3,5x5
kontrłaty 2,5x5
folia paroprzepuszczalna
krokwie 8x16
wełna mineralna 15cm
profile stalowe systemowe
wełna mineralna 5cm
folia paroizolacyjna
płyty gipsowo-kartonowe
kleszcze 2x 3.2x16
blachodachówka
łaty 3.5x5
kontrłaty 2.5x5
folia p.e.
krokwie 8x16
wieniec
+ 12.17
pcv
wylewka betonowa 4cm
wełna mineralna 4cm*
płyta Ŝelbetowa 14cm
tynk cem.-wapienny 1,5cm
+ 4.22
pcv
wylewka betonowa 4cm
wełna mineralna 4cm*
płyty kanałowe
tynk cem.-wapienny 1,5cm
+ 2.88
+ 2.86
wk1
+ 1.58
styropian 10cm
tynk cienkowarstwowy
wk1
+ 2.13
obudowa
kanału c.o.
gres
wylewka betonowa 4,5cm
styropian FS-20, 14cm
izolacja przeciwwilgociowa
Ŝwirobeton 10cm
piasek ubity 20cm
+ 1.34
pcv
wylewka betonowa 4cm
styropian FS-20, 15cm
izolacja przeciwwilgociowa
Ŝwirobeton 10cm
piasek ubity 20cm
dylatacja
- 0.02
- 0.04
- 0.22
0.94=100.96
wieniec
- 0.90
wieniec
posadzka betonowa 4cm
folia izolacyjna
Ŝwirobeton 15cm
piasek ubijany warstwowo 20cm
- 2.34
eton B10
beton B10
wieniec
gres
wylewka betonowa 4,5cm
styropian FS-20, 14cm
izolacja przeciwwilgociowa
Ŝwirobeton 10cm
piasek ubity 20cm
wieniec
- 0.20
wieniec
0.00
1,5%
- 0.30=101.60
- 0.50=101.4
wieniec
wieniec
wieniec
- 1.50
- 1.78
beton B10
- 2.06
- 2.34
beton B10
P.P.P.=0.00=101.90
beton B10
beton B10
beton B10
BUDYNEK MIESZKALNY WIELORODZINNY KOMUNALNY
Dysperbit
tynk cienkowarstwowy
styropian FS-20, 15cm
Dysperbit
bloczki betonowe 25cm
ul. Godebskiego 1, Raszyn
Inwestor:
Urząd Gminy Raszyn, ul. Szkolna 2a, 05-090 Raszyn
Jednostka projektowa:
Pracownia Projektowa Arch. Marcin Bujnowski, ul. Focha 91, 05-803 Pruszków
tel/fax 728-77-81
e-mail: [email protected]
PROJEKT
PRZEKRÓJ A4 - A4
ARCHITEKTONICZNO
BUDOWLANY
nr rys.
sprawdził:
Główny Projektant:
arch. Zuzanna Bujnowska
arch. Marcin Bujnowski
BŁ/26/01,
PD-0029
BŁ 299/94, MA-0118
opracował:
arch. Joanna Bujnowska
wrzesień
2004