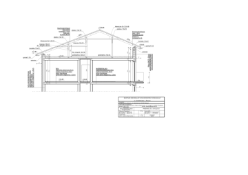
+ 7.27 podwalina 12x12 + 4.48 pcv wylewka betonowa 4cm wełna

Transkrypt

+ 7.27 podwalina 12x12 + 4.48 pcv wylewka betonowa 4cm wełna
blachodachówka
łaty 3.5x5
kontrłaty 2.5x5
folia p.e.
krokwie 8x16
+ 10.69
kleszcze 2x 3.2x16
płatew 12x16
płatew 12x16
39%
płatew 12x16
42 %
blachodachówka
łaty 3.5x5
kontrłaty 2,5x5
folia p.e.
krokwie 8x16
kleszcze 2x 3.2x16
murłata 12x12
miecze 12x12
miecze 12x12
S1, słupek 12x12
+ 8.63
rynna fi 15
murłata 12x12
+ 7.81
wieniec
+ 7.27
podwalina 12x12
Silka 3NFD, 25cm
wełna mineralna, 15cm
tynk cienkowarstwowy
S2, słupek 12x12
podwalina 12x12
rynna fi 15
tynk cienkowarstwowy
wełna mineralna, 15cm
Silka 3NFD, 25cm
tynk cem.-wapienny 1,5cm
wieniec
wykładzina pcv
wylewka betonowa 4cm
wełna mineralna 4cm*
płyty kanałowe
tynk cem.-wapienny 1,5cm
pcv
wylewka betonowa 4cm
wełna mineralna 4cm*
płyty kanałowe
tynk cem.-wapienny 1,5cm
+ 4.48
+ 4.46
2%
BUDYNEK MIESZKALNY WIELORODZINNY KOMUNALNY
ul. Godebskiego 1, Raszyn
Inwestor:
Urząd Gminy Raszyn, ul. Szkolna 2a, 05-090 Raszyn
Jednostka projektowa:
Pracownia Projektowa Arch. Marcin Bujnowski, ul. Focha 91, 05-803 Pruszków
tel/fax 728-77-81
e-mail: [email protected]
PROJEKT
PRZEKRÓJ A2 - A2 fragment
ARCHITEKTONICZNO
BUDOWLANY
nr rys.
sprawdził:
Główny Projektant:
arch. Zuzanna Bujnowska
arch. Marcin Bujnowski
BŁ/26/01,
PD-0029
BŁ 299/94, MA-0118
opracował:
arch. Joanna Bujnowska
wrzesień
2004