KN A3

Transkrypt

KN A3
WARSTWY:
1
2
3
4
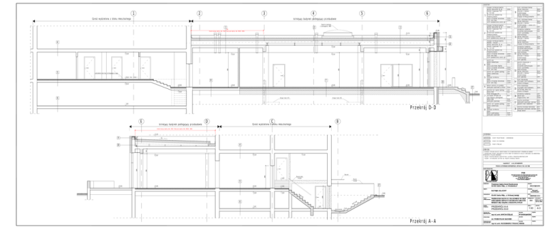
Cześć wydzielona z bloku mieszkalnego
5
6
1
Istniejący budynek podlegający przebudowie
1
2
8m
Konstrukcja dachu min. R30. Pokrycie dachu min. RE30 i NRO
Świetlik dachowy
z poliwęglanu, NRO
1
+ 4,99
2
+ 4,74
127
50
11
60
4
12
+ 3,84
47
45
+ 3,20
+ 3,15
+ 3,15
3
+ 3,15
325
315
315
zakładane warstwy istniejącego stropu
210
5
315
4
+ 0,63 ( bez zmian )
8
+ 0,43
± 0,00
5
7
± 0,00
15
± 0,00
± 0,00
± 0,00
4x1
6
Stopa fund. SF1
Stopa fund. SF1
- 1,87
Przekrój D-D
Istniejący budynek podlegający przebudowie
17
D
C
2xpapa termozgrzewalna
wełna mineralna 20 cm
blacha trapezowa T35
gr. 0,5 mm
przestrzeń powietrzna
niewentylowana
konstrukcja stalowa
sufit podwieszany-płyty gk
2xpapa termozgrzewalna
blacha - koryto
wełna mineralna 20 cm
blacha trapezowa T35
gr. 0,5 mm
przestrzeń powietrzna
niewentylowana
płyta stropowa kanałowa
tynk cem.-wap.
sufit podwieszany-płyty gk
płytki pcv
gładź cementowa
papa
płyta pilsniowa miękka
płyta stropowa kanałowa
tynk cem.-wap.
płytki cer./panele podłog.
gładź cementowa
papa
izolacja termiczna
papa
płyta stropowa kanałowa
tynk cem.-wap.
20cm
9
24cm
1,5cm
10
20cm
11
20cm
24cm
1,5cm
24cm
1,5cm
2cm
3cm
13
24cm
1,5cm
14
50cm
15
beton zatarty na gładko
podsypka piaskowa gr.50cm
2cm
5cm
7
płytkie cer./panel podłog.
beton B20
folia izolacyjna PE
styropian EPS100-38
(ogrzewanie podłogowe)
beton B10
podsypka piaskowa
płytki cer./panele podłog.
gładź cementowa
papa
izolacja termiczna
papa
beton podkładowy
podsypka piaskowa
2cm
4cm
8
12
3mm
3cm
6
- 0,60
- 0,29
E
5x3
5
2xpapa termozgrzewalna
wełna mineralna 20 cm
blacha trapezowa T35
gr. 0,5 mm
przestrzeń powietrzna
niewentylowana
płyta stropowa kanałowa
tynk cem.-wap.
sufit podwieszany-płyty gk
8cm
15cm
40cm
tynk cienkowarstwowy
wełna mineralna
bloczek z betonu
komórkowego
wełna mineralna
2xpapa termozgrzewalna
tynk cienkowarstwowy
wełna mineralna
bloczek z betonu
komórkowego / ściana istn.
tynk gipsowy
okładzina kamienna
szczelina wentylacyjna
ruszt systemowy
wiatroizolacja
wełna mineralna
bloczek z betonu
komórkowego
wełna mineralna
2xpapa termozgrzewalna
okładzina kamienna
szczelina wentylacyjna
ruszt systemowy
wiatroizolacja
wełna mineralna
bloczek z betonu
komórkowego
tynk gipsowy
panele elewacyjne z
tytan-cynku
szczelina wentylacyjna
ruszt systemowy
wiatroizolacja
wełna mineralna
bloczek z betonu
komórkowego
tynk gipsowy
tynk mozaikowy
styropian ekstrudowany
ściana istniejąca
folia kubełkowa
styropian ekstrudowany
asfaltowa masa izol.
ściana istniejąca
18cm
25cm
5cm
18cm
25cm
2cm
3cm
3cm
12cm
25cm
5cm
3cm
3cm
12cm
25cm
2cm
3cm
12cm
25cm
2cm
10cm
10cm
16
okładzina kamienna
beton B20
zagęszczony żwir
3cm
15cm
25cm
17
kostka granitowa
6cm
podsypka piaskowo-żwirowa 4cm
piasek stab. cementem
10cm
18
kostka brukowa betonowa 8cm
podsypka piaskowo-żwirowa 4cm
chudy beton
20cm
15cm
70cm
B
Cześć wydzielona z bloku mieszkalnego
Konstrukcja dachu min. R30. Pokrycie dachu min. RE30 i NRO
LEGENDA:
+ 4,74
- ŚCIANY PROJEKTOWANE / ZAMUROWANIA
3%
25
9
- ŚCIANY DO WYBURZENIA
4
119
- ŚCIANY ISTNIEJĄCE
UWAGA:
45
10
+ 3,20
+ 3,20
315
325
+ 3,15
- WYMIARY STOLARKI NALEŻY ZWERYFIKOWAĆ ZE STANEM RZECZYWISTY OTWORÓW NA BUDOWIE
- WEWNĘTRZNE OTWORY DRZWIOWE NA ETAPIE ROBÓT WYKONAWCZYCH NALEŻY DOPASOWAĆ DO KONKRETNEGO
PRODUCENTA STOLARKI DRZWIOWEJ
- PROJEKT ARCHITEKTONICZNY ROZPATRYWAĆ ŁACZNIE Z PROJEKTEM KONSTRUKCYJNYM
- POZIOMY I WYKOŃCZENIE SUFITÓW WG. PROJEKTU ARANŻACJI WNĘTRZ
206
Daszek
+ 0,63
Balustrada
h=1,1m
Murek
h=1,1m
5
± 0,00
± 0,00
- 0,29
- 0,29
17
- 0,68
10x
18,
7x
25
2
± 0,00
206
± 0,00
6
8x1
- 1,87
x30
7,7
- 1,87
wycieraczka
PRZEKRÓJ A-A
PRZEKRÓJ D-D
- 2,05
Przekrój A-A
1:50
A-3