Dokumentacja projektowa ( zał. nr 8 )

Transkrypt

Dokumentacja projektowa ( zał. nr 8 )
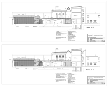
istniejący dach
tynk cem-wap. kl III
tynk cem,-wap.
do odtworzenia
ścianę obłożyć
cegłą cementową szarą 12cm
schody kręcone
wg rys. AB 26
PERON
CZĘŚĆ BUDYNKU
NIE OBJĘTA PROJEKTEM
TARAS
7
2
2
SCHODY NA PERON 1
LOKAL KOMERCYJNY O.4.
53
OGRÓDEK
Nadproże 2 I 240
poz. nr 1.6. L=420 cm
LOKAL KOMERCYJNY O.5.
ściany szklane
rts. nr AB 19
270
podciąg 2 C160
poz. 1.8.1. L=425 cm
cegła cementowa
do odczyszczenia
8
słup 2 C160
poz. 1.8.2.
PODWÓRKO
PODWÓRKO
nawierzchnie wg rys AB 28
ściany szklane
rts. nr AB 19
Kanał instalacyjny
Nadproże 4 I 100, l=250cm
z zewnątrz nadproże płaskie z
cegły cem na płask
1
8
+/-0,00=256,85m npm
-1,84
-2,90
-3,40
1
POSADZKA HOLU I TUNELU ORAZ POSADZKI
NA PIĘTRZE
- płytki gres porcellanato 9,2 i 8,7mm z dylatacjami jak posadzka
+ przygotowanie do płytkowania
- grunt pod płytkowanie
- posadzka betonowa B20 zbrojona siatką śr. 3,5mm 10x10cm
z dylatacjami 12mm max wymiary pola 12m x 12m - grub. 8cm.
- izolacja - papa asfaltowa klejona na zakładkach
- izolacja - folia PE budowlana
- grunt pod posadzkę betonową - podsypka piaskowa
- istniejące warstwy posadzkowe
8 POSADZKA W POMIESZCZENIACH KOMERCYJNYCH
- posadzka betonowa B20 zbrojona siatką śr. 3,5mm 10x10cm
z dylatacjami 12mm max wymiary pola 12m x 12m. - 8,0cm
- grunt pod posadzkę betonową
- istniejący strop
Przekrój C - C
7 STROP TARASU
- płytki gres wg rys. AB 30 na kleju elastycznym
z przygotowaniem podkładu pod płytki
- membrana wodoszczelna SOPRO DSF 423 +system
- strop TERIVA III 34CM
- wełna mineralna ok. 15cm
- folia PE paroszczelna 2x
- płyta stropowa istniejąca
- tynk cement.-wapienny klasy III
zacierany na gładko i szpachlowany gipsem
autorska pracownia projektowania architektury "APPA-Jan Pudło"
41-605 Świętochłowice ul. Moniuszki 3/8 tel.,fax: 0/32 245 39 61
2 STROP W LOKALU KOMERCYJNYM
NA PIĘTRZE
- warstwa wykończeniowa nie objęta projektem
- płyta OSB 2x 16mm
- ruszt drewniany12x12cm, 50cmx50cm
- słupki 12x 12 cm
- folia paroprzepuszczalna
- wełna min 10cm pomiędzy podwalinami
- folia paroszczelna PE
- istniejący strop
- tynk cement.-wapienny klasy III
zacierany na gładko i szpachlowany gipsem
zadanie
inwestycyjne
Zmiana funkcji dworca kolejowego Będzin Miasto na administracyjno-handlową
wraz z pełną modernizacją budynku
adres
projekt
Będzin, dworzec kolejowy Będzin Miasto dz. nr 27
Projekt wykonawczy przebudowy budynku dworca kolejowego PKP w Będzinie
na działce nr 27
nazwa rys.
Przekrój C-C
branża
Architektura i Konstrukcja
edycja
projektował
mgr inż. arch. Jan Pudło upr. proj. 482/85
skala:
sprawdził
mgr inż. arch. Piotr Kózka upr. proj. 1275/94
nr rys
0
1 : 100
AB 15
istniejący dach
tynk cem-wap. kl III
tynk cem,-wap.
do odtworzenia
ścianę obłożyć
cegłą cementową szarą 12cm
schody kręcone
wg rys. AB 26
PERON
CZĘŚĆ BUDYNKU
NIE OBJĘTA PROJEKTEM
TARAS
7
2
2
SCHODY NA PERON 1
LOKAL KOMERCYJNY O.4.
53
OGRÓDEK
Nadproże 2 I 240
poz. nr 1.6. L=420 cm
LOKAL KOMERCYJNY O.5.
ściany szklane
rts. nr AB 19
270
podciąg 2 C160
poz. 1.8.1. L=425 cm
słup 2 C160
poz. 1.8.2.
PODWÓRKO
cegła cementowa
do odczyszczenia
PODWÓRKO
nawierzchnie wg rys AB 28
8
ściany szklane
rts. nr AB 19
Kanał instalacyjny
Nadproże 4 I 100, l=250cm
z zewnątrz nadproże płaskie z
cegły cem na płask
1
8
+/-0,00=256,85m npm
-1,84
-2,90
-3,40
1
POSADZKA HOLU I TUNELU ORAZ POSADZKI
NA PIĘTRZE
- płytki gres porcellanato 9,2 i 8,7mm z dylatacjami jak posadzka
+ przygotowanie do płytkowania
- grunt pod płytkowanie
- posadzka betonowa B20 zbrojona siatką śr. 3,5mm 10x10cm
z dylatacjami 12mm max wymiary pola 12m x 12m - grub. 8cm.
- izolacja - papa asfaltowa klejona na zakładkach
- izolacja - folia PE budowlana
- grunt pod posadzkę betonową - podsypka piaskowa
- istniejące warstwy posadzkowe
8 POSADZKA W POMIESZCZENIACH KOMERCYJNYCH
- posadzka betonowa B20 zbrojona siatką śr. 3,5mm 10x10cm
z dylatacjami 12mm max wymiary pola 12m x 12m. - 8,0cm
- grunt pod posadzkę betonową
- istniejący strop
Przekrój C - C
7 STROP TARASU
- płytki gres wg rys. AB 30 na kleju elastycznym
z przygotowaniem podkładu pod płytki
- membrana wodoszczelna SOPRO DSF 423 +system
- strop TERIVA III 34CM
- wełna mineralna ok. 15cm
- folia PE paroszczelna 2x
- płyta stropowa istniejąca
- tynk cement.-wapienny klasy III
zacierany na gładko i szpachlowany gipsem
2 STROP W LOKALU KOMERCYJNYM
NA PIĘTRZE
- warstwa wykończeniowa nie objęta projektem
- płyta OSB 2x 16mm
- ruszt drewniany12x12cm, 50cmx50cm
- słupki 12x 12 cm
- folia paroprzepuszczalna
- wełna min 10cm pomiędzy podwalinami
- folia paroszczelna PE
- istniejący strop
- tynk cement.-wapienny klasy III
zacierany na gładko i szpachlowany gipsem
autorska pracownia projektowania architektury "APPA-Jan Pudło"
41-605 Świętochłowice ul. Moniuszki 3/8 tel.,fax: 0/32 245 39 61
zadanie
inwestycyjne
Zmiana funkcji dworca kolejowego Będzin Miasto na administracyjno-handlową
wraz z pełną modernizacją budynku
adres
Będzin, dworzec kolejowy Będzin Miasto dz. nr 27
Projekt wykonawczy przebudowy budynku dworca kolejowego PKP w Będzinie
na działce nr 27
projekt
nazwa rys.
Przekrój C-C
branża
Architektura i Konstrukcja
edycja
projektował
mgr inż. arch. Jan Pudło upr. proj. 482/85
skala:
sprawdził
mgr inż. arch. Piotr Kózka upr. proj. 1275/94
nr rys
0
1 : 100
AB 15