AB 36 Izolacja pionowa œcian budynku od ulicy Sienkiewicza_116

Transkrypt

AB 36 Izolacja pionowa œcian budynku od ulicy Sienkiewicza_116
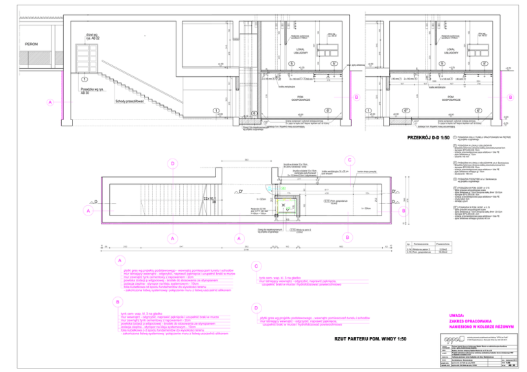
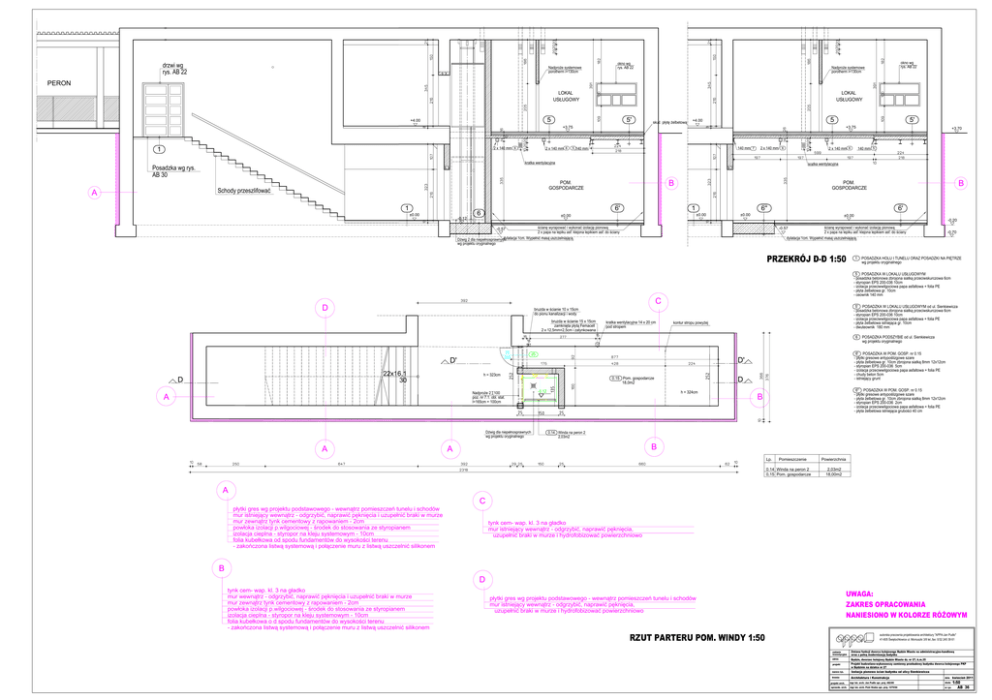
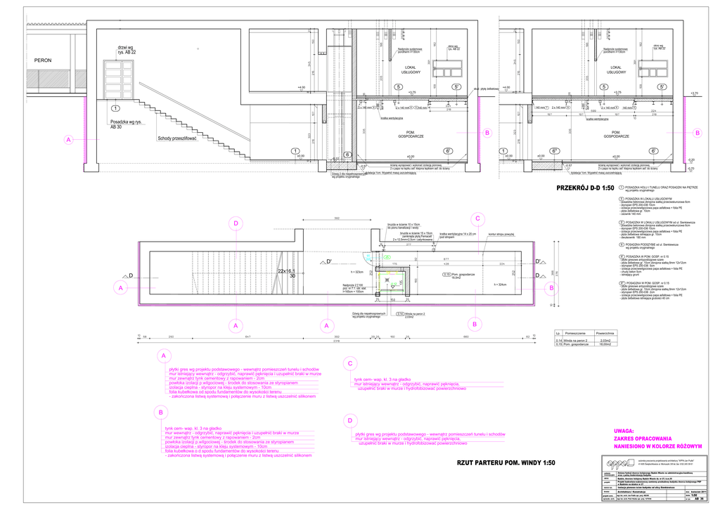
drzwi wg
rys. AB 22
Nadproże systemowe
porotherm i=130cm
okno wg
rys. AB 22
okno wg
rys. AB 22
Nadproże systemowe
porotherm i=130cm
PERON
LOKAL
USŁUGOWY
LOKAL
USŁUGOWY
5'
5
+4.00
+3.75
1
2 x 140 mm 6
2 x 140 mm 6
+3.75
140 mm 7
5 140 mm
2 x 140 mm 6
1
±0.00
-0.12
1
±0.00
±0.00
6'
6''
±0.00
ścianę wyrapować i wykonać izolację pionową
2 x papa na lepiku asf. klejona lepikiem asf. do ściany
-0.57
dylatacja 1cm. Wypełnić masą uszczelniającą.
Dźwig 2 dla niepełnosprawnych
wg projektu oryginalnego
kratka wentylacyjna 14 x 20 cm
pod stropem
1
5' POSADZKA W LOKALU USŁUGOWYM od ul. Sienkiewicza
- posadzka betonowa zbrojona siatką przeciwskurczowa 6cm
- styropian EPS 200-036 10cm
- izolacja przeciwwilgociowa papa asfaltowa + folia PE
- płyta żelbetowa istniejąca gr. 10cm
- dwuteownik 180 mm
kontur stropu powyżej
6
D'
22x16,1
30
D
Nadproże 2 100
poz. nr 7.1. obl. stat.
l=165cm + 100cm
A
Dźwig dla niepełnosprawnych
wg projektu oryginalnego
A
d5
D
0.15 Pom. gospodarcze
18,0m2
-0,12
h = 324cm
6'' POSADZKA W POM. GOSP. nr 0.15
- płytki gresowe antypoślizgowe szare
- płyta żelbetowa gr. 10cm zbrojona siatką 8mm 12x12cm
- styropian EPS 200-036 2cm
- izolacja przeciwwilgociowa papa asfaltowa + folia PE
- płyta żelbetowa istniejąca grubości 40 cm
B
0.14 Winda na peron 2
2,03m2
B
A
Lp.
Pomieszczenie
0.14 Winda na peron 2
0,15 Pom. gospodarcze
A
płytki gres wg projektu podstawowego - wewnątrz pomieszczeń tunelu i schodów
mur istniejący wewnątrz - odgrzybić, naprawić pęknięcia i uzupełnić braki w murze
mur zewnątrz tynk cementowy z rapowaniem - 2cm
powłoka izolacji p.wilgociowej - środek do stosowania ze styropianem
izolacja cieplna - styropor na kleju systemowym - 10cm
folia kubełkowa od spodu fundamentów do wysokości terenu
- zakończona listwą systemową i połączenie muru z listwą uszczelnić silikonem
POSADZKA PODSZYBIE od ul. Sienkiewicza
wg projektu oryginalnego
6' POSADZKA W POM. GOSP. nr 0.15
- płytki gresowe antypoślizgowe szare
- płyta żelbetowa gr. 10cm zbrojona siatką 8mm 12x12cm
- styropian EPS 200-036 5cm
- izolacja przeciwwilgociowa papa asfaltowa + folia PE
- chudy beton 5cm
- istniejący grunt
D'
h = 323cm
POSADZKA HOLU I TUNELU ORAZ POSADZKI NA PIĘTRZE
wg projektu oryginalnego
5 POSADZKA W LOKALU USŁUGOWYM
- posadzka betonowa zbrojona siatką przeciwskurczowa 6cm
- styropian EPS 200-036 10cm
- izolacja przeciwwilgociowa papa asfaltowa + folia PE
- płyta żelbetowa gr. 10cm
- ceownik 140 mm
bruzda w ścianie 10 x 15cm
do pionu kanalizacji i wody
90
205
-0.70
dylatacja 1cm. Wypełnić masą uszczelniającą.
C
bruzda w ścianie 15 x 15cm
zamknięta płytą Femacell
2 x 12,5mm=2,5cm i zatynkowana
-0.20
ścianę wyrapować i wykonać izolację pionową
2 x papa na lepiku asf. klejona lepikiem asf. do ściany
PRZEKRÓJ D-D 1:50
D
B
POM.
GOSPODARCZE
±0.00
-0.57
140 mm 5
2 x 140 mm 6
B
6'
6
+3.70
kratka wentylacyjna
POM.
GOSPODARCZE
Schody przeszlifować
5'
5
+4.00
kratka wentylacyjna
Posadzka wg rys.
AB 30
A
skuć płytę żelbetową
Powierzchnia
2,03m2
18,00m2
C
tynk cem- wap. kl. 3 na gładko
mur istniejący wewnątrz - odgrzybić, naprawić pęknięcia,
uzupełnić braki w murze i hydrofobizować powierzchniowo
B
D
tynk cem- wap. kl. 3 na gładko
mur wewnątrz - odgrzybić, naprawić pęknięcia i uzupełnić braki w murze
mur zewnątrz tynk cementowy z rapowaniem - 2cm
powłoka izolacji p.wilgociowej - środek do stosowania ze styropianem
izolacja cieplna - styropor na kleju systemowym - 10cm
folia kubełkowa o d spodu fundamentów do wysokości terenu
- zakończona listwą systemową i połączenie muru z listwą uszczelnić silikonem
UWAGA:
ZAKRES OPRACOWANIA
NANIESIONO W KOLORZE RÓŻOWYM
płytki gres wg projektu podstawowego - wewnątrz pomieszczeń tunelu i schodów
mur istniejący wewnątrz - odgrzybić, naprawić pęknięcia,
uzupełnić braki w murze i hydrofobizować powierzchniowo
RZUT PARTERU POM. WINDY 1:50
autorska pracownia projektowania architektury "APPA-Jan Pudło"
41-605 Świętochłowice ul. Moniuszki 3/8 tel.,fax: 0/32 245 39 61
zadanie
inwestycyjne
Zmiana funkcji dworca kolejowego Będzin Miasto na administracyjno-handlową
wraz z pełną modernizacją budynku
adres
projekt
Będzin, dworzec kolejowy Będzin Miasto dz. nr 27, k.m.35
Projekt budowlano-wykonawczy zamienny przebudowy budynku dworca kolejowego PKP
w Będzinie na działce nr 27
nazwa rys.
Izolacja pionowa ścian budynku od ulicy Sienkiewicza
branża
Architektura i Konstrukcja
data
projekt arch.
mgr inż. arch. Jan Pudło upr. proj. 482/85
skala
sprawdz. arch.
mgr inż. arch. Piotr Kózka upr. proj. 1275/94
nr rys
kwiecień 2011
1:50
AB 36