Pobierz - koszary park

Transkrypt

Pobierz - koszary park
BA4
12
62
3
59
261
65
3
25
3
62
3
56
40
78
121
8 30 8
141
12
41
452
483
161
8
499
197
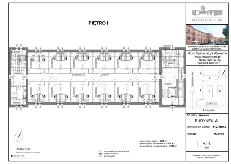
A.1.6. wc damski
4,6 m2
12
13
344
13
100
13
33 8 30
B2
EI30
8
240
90
200
90
200
48
112
12
komunikacja
A.1.8.
powierzchnia biurowa
312,8 m2
www.koszarypark.pl
tel:89-526-47-23
mob:604-540-997
12
455
12
38
12
12
467
18
4
304
99
1
185
37
12
56
12
89
99
43
39
122
3
296
25
3
90
200
62
3
100
318
3
26 8 8
62
3
100
25
3
471
12
+4,38
406
1090
160
103
+4,38
103
45,9 m2
103
90
200
141
62
3
199
320
3
100
62
3
48
13
413
128
469
12
A.1.10. komunikacja
14,0 m2
25
3
33
12
100
62
3
103
141
34
322
3
HP-25
100
62
3
2870
449
48
25
3
60
62
3
29
319
3
90
200
D1w
62
3
A.1.8.a. powierzchnia biurowa
20,5 m2
90
200
D1w
48
12
130
D1w
90
200
100
D1w
25
3
90
200
12
2
62
3
38
A.1.8.b. powierzchnia biurowa
20,9 m2
20
90
200
100
148
12
90
200
12
EI30
48
38
77
3
150
A.1.8.c. powierzchnia biurowa
20,3 m2
90
200
62
3
A.1.8.d. powierzchnia biurowa
20,5 m2
25
3
A.1.8.e. powierzchnia biurowa
20,5 m2
62
3
168
58
111
108
93
38
21
12
A.1.8.f. powierzchnia biurowa
20,3 m2
38
12
65
A.1.11.
7,9 m2
A.1.12. wc damski
3,7 m2
90
200
109
21 26
29
122
212
A.1.7.
6,1 m2
30 8
C
13
190
100
570
100
190
100
13
286
90
200
100
90
200
570
13
326
12
HP-25
115
100
132
6
144
+4,38
144
100
90
200
8 30
190
90
200
100
90
200
274
90
200
13
13
A.1.5.
klatka schod.
22,9 m2
115
3
62
3 3
25
62
3
81
38
146
3
62
3 3
25
62
3
319
62
3 3
25
62
3
322
3
62
3 3
25
62
3
320
3
62
3 3
25
62
3
318
3
62
3 3
25
62
3
D2
D1
B1
400
393
8x17,5
25
545
454
3
321
17x17,5
25
A.1.8.l. powierzchnia biurowa
20,6 m2
A.1.8.k. powierzchnia biurowa
21,0 m2
A.1.8.j. powierzchnia biurowa
20,6 m2
A.1.8.i. powierzchnia biurowa
20,8 m2
3
62
3 3
25
62
3
163
56
170
3
115
4
185
38
159
89
A.1.9.
pom.socjalne
12,6 m2
12
A
12
12
122
212
38
A.1.8.h. powierzchnia biurowa
20,7 m2
384
A.1.8.g. powierzchnia biurowa
20,5 m2
12
BA4
Artyleryjska
: Wynajem
BUDYNEK A
312,80m2
312,80m2
-
8950 m
- powierzchnia zabudowana - 1308 m
- powierzchnia niezabudowana - 6044 m
SKALA 1:120
0
1
2
A.1.8.
NUMER
LOKALU
5m
TOTAL - PACK Warszawa