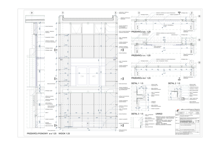
30 rys_D2 okladzina drewniana

Transkrypt

30 rys_D2 okladzina drewniana
2
3
opierzenie - blacha w
kolorze białym
okładzina meblowa na ruszcie drewnianym
istniejąca ściana
mata systemowa
a
3
D
istniejący słup
wnęka na grzejniki
D
19 24
1045
PRZEKRÓJ istniejąca
b-b 1:25
ściana
2
detal 2
360
215+82
120
105
242
ściana fasadowa
105
okładzina elewacyjna
KERAION
PRZEKRÓJ c-c 1:25
5
+7.20
okładzina meblowa na ruszcie drewnianym
BS-01
535
istniejąca ściana
120
ruszt - krawędziak
14x6cm
istniejący słup
ruszt - krawędziak 14x6cm
D
24
BS-01
115
360
+4,27
BS-02
120
d
115
drzwi rozwierane
automatycznie
D
BS-02
115
5
okładzina meblowa
na ruszcie wg detalu
d
istniejący słup
DR1
możliwy dodatkowy
podział okładzin
istniejąca ściana
zabudowa g-k
31
5
okładzina meblowa na ruszcie drewnianym
zabudowa g-k
+8.40
242
okładzina elewacyjna
KERAION
ruszt - krawędziak
14x6cm
okładzina meblowa
na ruszcie drewnianym
istniejący rygiel
grzejnik 1440x600mm
+/-0,00
+10.82
krawędziak 14x6cm
1045
19 24
118
120
115
okno w ścianie fasadowej
otwierane siłownikiem
parapet - okładzina
meblowa
1805
wsp. żelb.
oprawa oświetlenia
nastropowego
typu DOWNLIGHT
1805
wsp. żelb.
5
5
okładzina elewacyjna
KERAION
ściana fasadowa
2
możliwy dodatkowy
podział okładzin
+6.00
6
DETAL 1 1:5
30
detal 1
1045
120
120
120
1055
5
+1.20
1045
1805
1805
b
570
540
mata systemowa
PRZEKRÓJ PIONOWY a-a 1:25
b
±0.00=89.95mpm
5
listwa aluminiowa
grzejnik 1440x600mm
WIDOK 1:25
listwa aluminiowa
wg.detalu 3
30
15
L60x60x5 l=100mm
płyta g-k(fermacell)
ruszt - krawędziak
14x6cm
listwa montażowa
6x3cm
"stała" część drzwi
przesuwnych al.
30
20
DETAL 3 1:5
płyta meblowa
okleinowana fornirem
płyta meblowa
okleinowana fornirem
wnęka na grzejnik
ruszt - krawędziak
14x6cm
płyta meblowa
okleinowana fornirem
listwa montażowa
6x3cm
120
grzejnik
1440x600mm
1045
wnęka na grzejniki
110
wnęka na grzejniki
ściana fasadowa
ruszt - krawędziak
14x6cm
listwa montażowa
6x3cm
60
L60x60x5
l=100mm
1200
ruszt - krawędziak
14x6cm
360
360
115
120
istniejąca ściana
stalowy kołek
rozporowy∅10
20
120
5
okładzina meblowa
na ruszcie
okładzina elewacyjna
KERAION
DETAL 2 1:5
płyta meblowa
okleinowana fornirem
60
5
możliwy dodatkowy
podział okładzin
6
ocieplenie-styropian
20
otwór okienny
do zamurowania
drzwi rozwierane
automatycznie
a
stalowy kołek
rozporowy∅10
33
67
67
140
sufit g-k na konstrukcji
systemowej
115
okładzina meblowa
na ruszcie
96
190
+3.60
sufit g-k na konstr.
sytemowej
6
PRZEKRÓJ d-d 1:25
oprawa oświetlenia
w stropie podwieszonym
typu DOWNLIGHT
34
115
istniejący rygiel
114
140
115
53
listwa aluminiowa
6
30
c
114
570
+4,27
+4.27
10
33 24
114
wsp. żelb.
105
+4.80
listwa aluminiowa
240
6
wsp. żelb.
293
180
5
c
180
120
105
120
96
5
293
6
sklejka wodoodporna
gr.5mm
UWAGI
1)Okładzinę wykonać z płyt okleinowanych
fornirem naturalnym - atest p.pożarowy
i higieniczny.
2)Płyty mocować na pióro i wpust lub
pióro obce - mocowanie (wkręty)
niewidoczne.
3)Okleina - fornir dębowy.
4)Wymiary potwierdzić na budowie.
a
ur
kt
ite
ch
ar acje
il z je
a
re tyc
s
we
in
spółka z o.o. 61-623 Poznań, ul. Wilczak 16A
tel./fax (0-61) 820-85-93
PROJEKT WYKONAWCZY
DETALE
STADIUM DOKUMENTACJI
INWESTOR:
ZAMAWIAJĄCY
ARCHITEKTURA
ZG-FBZ.
3420-35/08
BRANŻA
UMOWA NR
Zarząd Geodezji i Katastru Miejskiego GEOPOZ
ul. Gronowa 20, 61-827 Poznań
OBIEKT:
TEMAT:
PROJEKTOWAŁ:
PRZEBUDOWA WRAZ Z CZĘŚCIOWĄ ROZBUDOWĄ ISTNIEJĄCEGO
BUDYNKU ( dobudowa zewnętrznej klatki schodowej z windą )
obręb Winiary, ark. 23, dz. nr 5/12, dz. nr 5/11
OKŁADZINA DREWNIANA
KL.SCHODOWEJ. SKALA 1:25
RYS NR:
DATA:
D2
12.08
mgr inż. arch. KRZYSZTOF SIKORSKI 7131/50/P/2001
mgr inż. arch. MONIKA WRÓBLEWSKA
listwa aluminiowa
SPRAWDZIŁ:
dr inż. arch. EUGENIUSZ SKRZYPCZAK 244/84/PW
GŁ. PROJEKTANT:
mgr inż. arch. KRZYSZTOF SIKORSKI 7131/50/P/2001
IMIĘ I NAZWISKO - UPRAWNIENIA NR
PROJEKT JEST CHRONIONY PRAWEM AUTORSKIM
Ustawa z dnia 4 lutego 1994 o prawie autorskim i prawach pokrewnych
(Dz.U. z 1994 Nr 24 poz. 83 z późniejszymi zmianami)
PODPIS