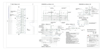
37 rys_D9 kontuar w kasach

Transkrypt

37 rys_D9 kontuar w kasach
5 RZUT SKALA 1:25
4
PRZEKRÓJ a-a SKALA 1:25
PRZEKRÓJ b-b SKALA 1:25
+7.27
a
szyba
mocowanie systemowe
ciągłe np.DORMA
ścianka meblowa
płyta meblowa okleinowana
fornirem
300
168
168
8
168
8
biurko 120x60 cm
płyta meblowa
okleinowana
2
8
biurko z płyty meblowej
okleinowanej w kolorze
jak kontuar (fornirowane)
szyba
blat - blacha aluminiowa
lub laminat aluminiowy
płyta OSB
blat - blacha aluminiowa lub
laminat aluminiowy
5
20
40
płyta meblowa
okleinowana
płyta meblowa laminowana
- w kolorze szarym
20
40
20
60
5
110
120
40x40x4
20
40
140
płyta meblowa okleinowana
20
295
40
5
40
600
płyta meblowa okleinowana
Ӂ 40x40x4
100
aluminiowa listwa przypodłogowa
lub laminat aluminiowy
sklejka wodoodporna gr.10mm
Վ 40x3 l=120 mm
Վ40x3 l=120 mm
kołek rozporowy mocowanie do warstwy
konstrukcyjnej podłogi
DETAL 2 SKALA 1:5
40x40x4
UWAGI:
5
60
Wykonać 3 sztuki.
Ӂ 40x40x4
słupek
mocowanie systemowe
ciągłe np:DORMA
aluminiowa
listwa wykończeniowa
szyba
płyta meblowa
- laminowana w kolorze szarym
40x40x4
Ӂ 40x40x4
konstrukcja ścianki
działowej
40
cokół - płyta meblowa okleinowana,
laminat w kolorze aluminium
lub
szyba
15
59
4
kasa
1/04
A: 36.98 m2
a
8
58
168
płyta OSB
40x40x4
60
podajnik "karuzela"
10
DETAL 3 SKALA 1:5
mocowanie systemowe
ciągłe np.DORMA
59
8
aluminiowa listwa
przypodłogowa
DETAL 1 SKALA 1:5
szyba
75
60
5
58
536
biurko z płyty meblowej
okleinowanej w kolorze
jak kontuar
59
168
10
+4.27
B
DETAL 2
BIURKO SKALA 1:25
60
75
b
92
110
szyba
59
b
aluminiowa listwa przypodłogowa
aluminiowa listwa przypodłogowa
110
8
60
59
DETAL 3
1035
Ӂ40x40x4
płyta meblowa - laminowana w
kolorze szarym
płyta meblowa okleinowana
120
+4.27
aluminiowa listwa wykończeniowa
92
110
płyta meblowa
okleinowana
75
58
176
8
blat - blacha aluminiowa
lub laminat w kolorze al.
8
blat - blacha aluminiowa
płyta meblowa
- laminowana
100
59
+6.37
Ӂ40x40x4
ścianka meblowa
płyta meblowa okleinowana
fornirem
Ӂ40x40x4
8
szyba
biurko z płyty meblowej
okleinowanej w kolorze
jak kontuar
DETAL 1
podajnik "karuzela"
płyta OSB
10
4
poziom sufitu
podwieszonego
1) Elementy kontuaru wykonać z płyt meblowych okleinowanych
fornirem naturalnym - atest p.poż. i higieniczny.
2) Płytę mocować na pióro i wpust lub pióro obce- mocowanie
(wkęty) niewidoczne.
3) Okleina - fornir dębowy.
4) Elementy stalowe zabezpieczyć antykorozyjnie:
- oczyścić do II stopnia czystości
- malować czerwoną tlenkową farbą podkładową
- malować lakierem chlorokauczukowym
w kolorze popielatym.
5) Słupki stalowe mocować do warstwy betonowej przed
ułożeniem granitogresu.
6) Listwa przypodłogowa - aluminiowa malowana proszkowo w
kolorze RAL 9006 lub laminat w kolorze aluminiowym.
7) Stosować szkło bezpieczne.
8) Alternatywnie zamiast blatu z blachy aluminiowej stosować
płytę meblową laminowaną w kolorze aluminiowym np:F2022
producent PSM FORMICA lub równorzędne.
9) Wysokość szklanej zabudowy kontuaru dostosować do
wysokości przyjętych ścian systemowych.
10)Przed wykonaniem kontuaru wymiary potwierdzić na budowie.
profil systemowy
ciągły
ZESTAWIENIE STALI
Վ 40x3 - 1,8m x 0,94kg/m = 1,6kg
ӂ40x40x4 - 44,29m x 3,97kg/m = 175,83kg
razem 177,43kg
+5%
8,87
ogółem 186,3kg
a
ur
kt
ite
ch
ar acje
iz
al cje
e
r
ty
es
nw
i
spółka z o.o. 61-623 Poznań, ul. Wilczak 16A
tel./fax (0-61) 820-85-93
PROJEKT WYKONAWCZY
DETALE
STADIUM DOKUMENTACJI
INWESTOR:
ZAMAWIAJĄCY
ARCHITEKTURA
ZG-FBZ.
3420-35/08
BRANŻA
UMOWA NR
Zarząd Geodezji i Katastru Miejskiego GEOPOZ
ul. Gronowa 20, 61-827 Poznań
OBIEKT:
TEMAT:
PROJEKTOWAŁ:
PRZEBUDOWA WRAZ Z CZĘŚCIOWĄ ROZBUDOWĄ ISTNIEJĄCEGO
BUDYNKU ( dobudowa zewnętrznej klatki schodowej z windą )
obręb Winiary, ark. 23, dz. nr 5/12, dz. nr 5/11
DETAL KONTUARU W KASACH.
SKALA 1:25
RYS NR:
DATA:
D9
12.08
mgr inż. arch. KRZYSZTOF SIKORSKI 7131/50/P/2001
mgr inż. arch. MONIKA WRÓBLEWSKA
SPRAWDZIŁ:
dr inż. arch. EUGENIUSZ SKRZYPCZAK 244/84/PW
GŁ. PROJEKTANT:
mgr inż. arch. KRZYSZTOF SIKORSKI 7131/50/P/2001
IMIĘ I NAZWISKO - UPRAWNIENIA NR
PROJEKT JEST CHRONIONY PRAWEM AUTORSKIM
Ustawa z dnia 4 lutego 1994 o prawie autorskim i prawach pokrewnych
(Dz.U. z 1994 Nr 24 poz. 83 z późniejszymi zmianami)
PODPIS