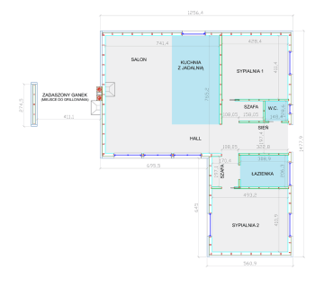
SALON KUCHNIA Z JADALNIĄ SYPIALNIA 1 ŁAZIENKA SYPIALNIA

Transkrypt

SALON KUCHNIA Z JADALNIĄ SYPIALNIA 1 ŁAZIENKA SYPIALNIA
SALON
KUCHNIA
Z JADALNIĄ
SYPIALNIA 1
ZADASZONY GANEK
(MIEJSCE DO GRILLOWANIA)
SZAFA
W.C.
SIEŃ
SZAFA
HALL
ŁAZIENKA
SYPIALNIA 2