doczz
  • Wejść
  • Rejestracja
Katalog

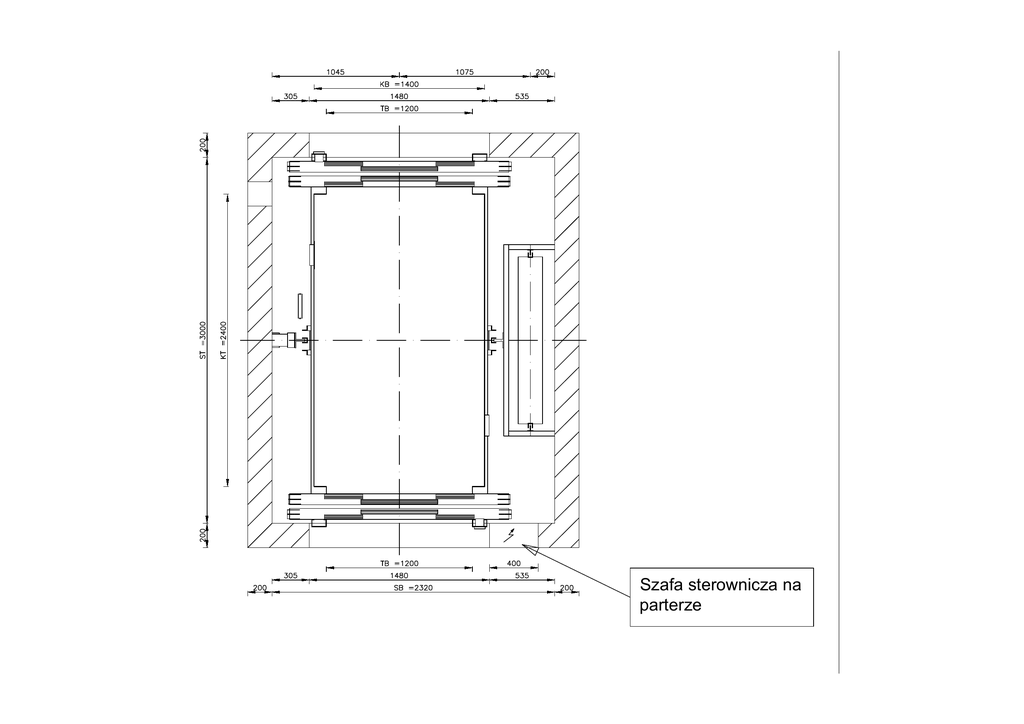
Szafa sterownicza na parterze

download Reklamacja

Transkrypt

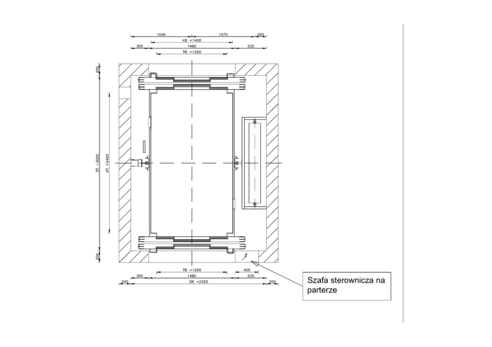
Szafa sterownicza na parterze
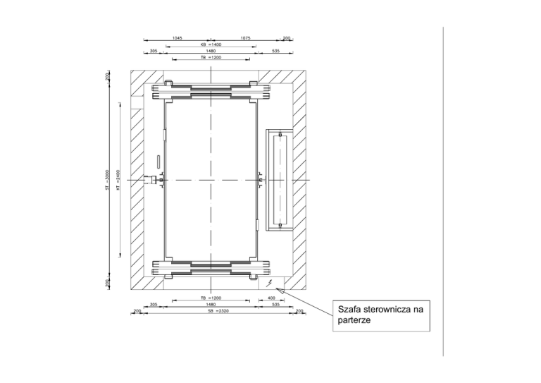
Szafa sterownicza na
parterze

Podobne dokumenty

PRZY GO TO WALN IA LEKA RZY ST OM AT OL - szpital

PRZY GO TO WALN IA LEKA RZY ST OM AT OL - szpital

Bardziej szczegółowo

Schemat otwierania drzwi na parterze Schemat otwierania drzwi na

Schemat otwierania drzwi na parterze Schemat otwierania drzwi na

Bardziej szczegółowo

SALON KUCHNIA Z JADALNIĄ SYPIALNIA 1 ŁAZIENKA SYPIALNIA

SALON KUCHNIA Z JADALNIĄ SYPIALNIA 1 ŁAZIENKA SYPIALNIA

Bardziej szczegółowo
2025 © doczz.pl
O nas | DMCA / GDPR | Nadużycie