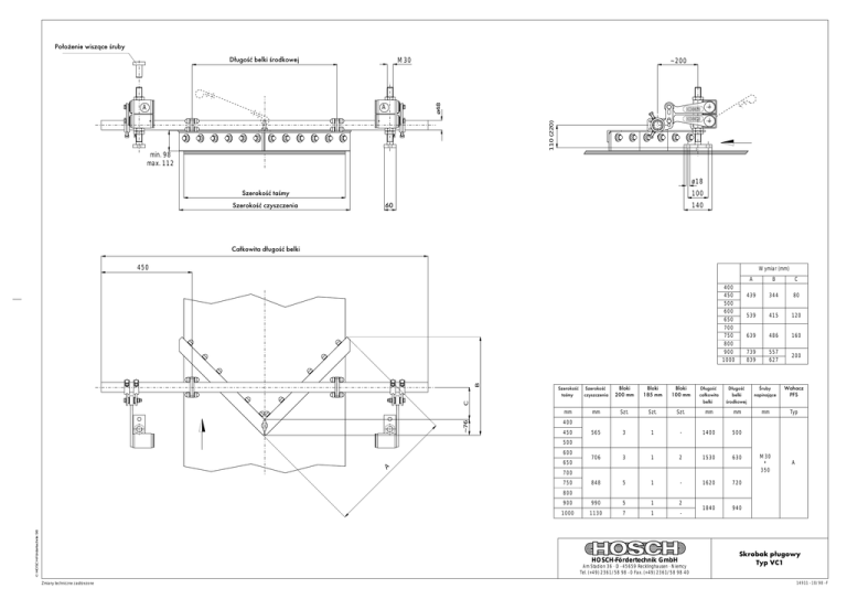
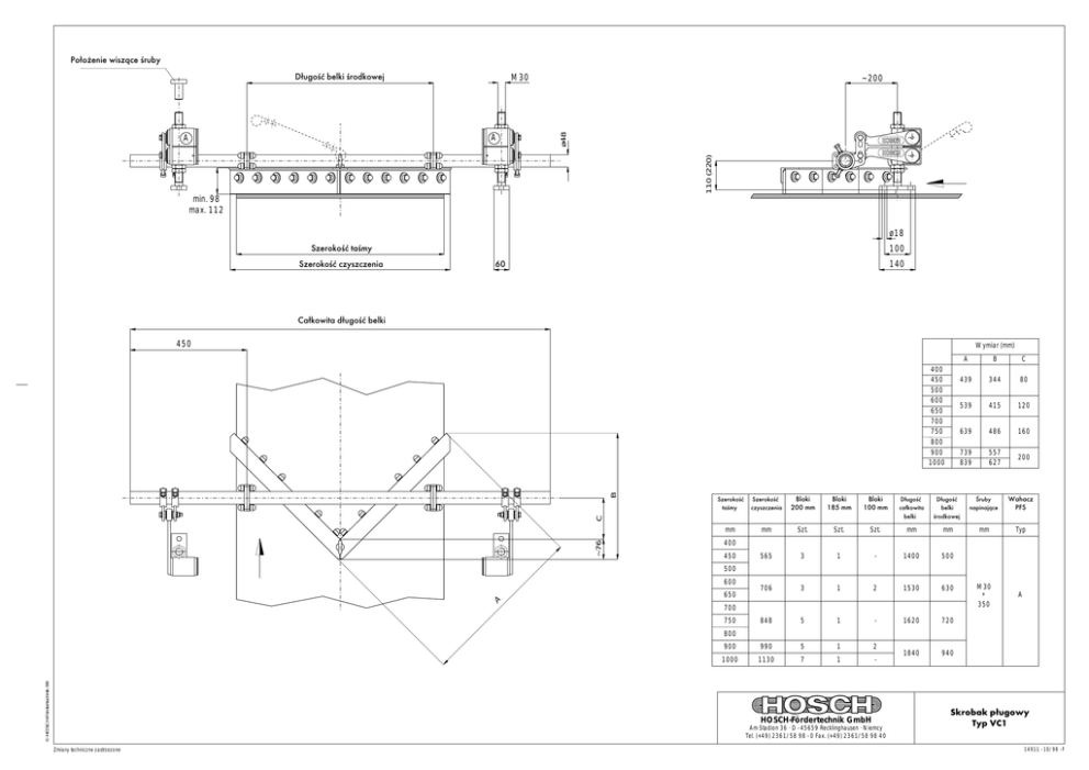
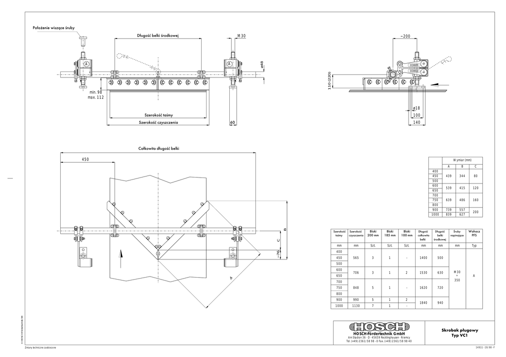
Skrobak pługowy Typ VC1 ~200 110 (220) ø18 100 140 min. 98

Transkrypt

Skrobak pługowy Typ VC1 ~200 110 (220) ø18 100 140 min. 98
Położenie wiszące śruby
Długość belki środkowej
M30
110 (220)
ø48
A
A
~200
min. 98
max. 112
ø18
Szerokość taśmy
Szerokość czyszczenia
100
140
60
Całkowita długość belki
450
Wymiar (mm)
~76
B
C
439
344
80
539
415
120
639
486
160
739
839
557
627
200
Szerokość
taśmy
Szerokość
czyszczenia
Bloki
200 mm
Bloki
185 mm
Bloki
100 mm
Długość
całkowita
belki
Długość
belki
środkowej
Śruby
napinające
Wahacz
PFS
mm
mm
Szt.
Szt.
Szt.
mm
mm
mm
Typ
565
3
1
-
1400
500
706
3
1
2
1530
630
M30
*
350
A
848
5
1
-
1620
720
900
990
5
1
2
1000
1130
7
1
-
1840
940
C
B
400
450
500
600
650
700
750
800
900
1000
A
400
450
500
600
A
650
700
750
© HOSCH-Fördertechnik 98
800
HOSCH-Fördertechnik GmbH
Am Stadion 36 · D - 45659 Recklinghausen · Niemcy
Tel. (+49) 2361/58 98 - 0 Fax. (+49) 2361/58 98 40
Zmiany techniczne zastrzezone
Skrobak pługowy
Typ VC1
14911 - 10/98 - F