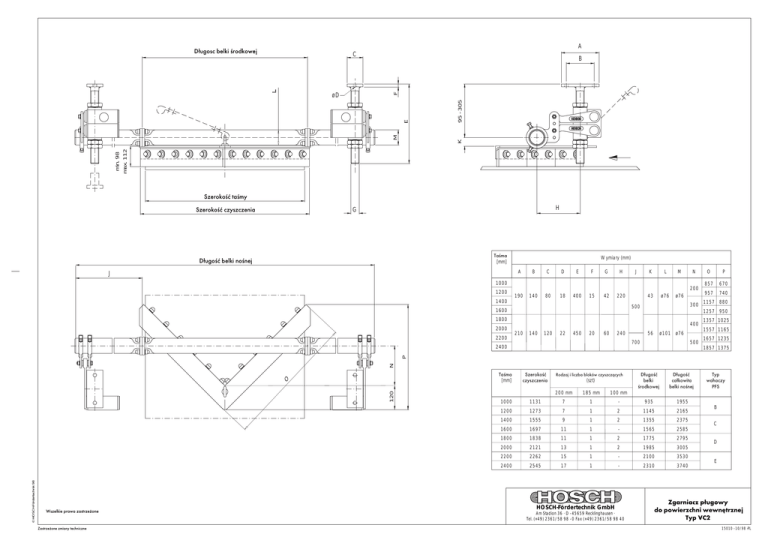
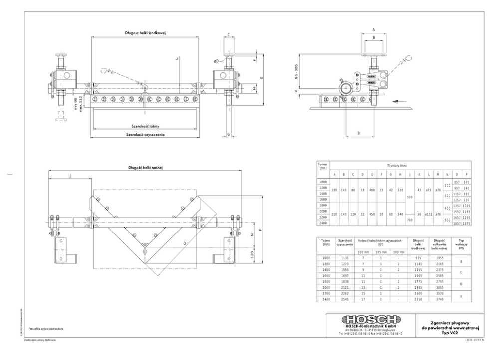
Rysunek wymiarowy HOSCH VC2

Transkrypt

Rysunek wymiarowy HOSCH VC2
A
Długosc belki środkowej
min. 98
max. 112
K
M
E
F
øD
B
95 - 305
L
C
Szerokość taśmy
Szerokość czyszczenia
H
G
Taśma
[mm]
Długość belki nośnej
Wymiary (mm)
A
J
B
C
D
E
F
H
G
J
K
L
M
1000
1200
1400
200
190
140
80
18
400
15
220
42
43
ø76
ø76
300
500
1600
2200
400
210
140
120
22
450
20
240
60
56
ø101 ø76
700
P
857
670
957
740
1157 880
500
1357 1025
1557 1165
1657 1235
1857 1375
N
P
2400
O
1257 950
1800
2000
N
© HOSCH-Fördertechnik 98
120
O
Taśma
[mm]
Wszelkie prawa zastrzeżone
Zastrzeżone zmiany techniczne
Szerokość
czyszczenia
Rodzaj i liczba bloków czyszczących
(szt)
200 mm
185 mm
100 mm
Długość
belki
środkowej
Długość
całkowita
belki nośnej
1000
1131
7
1
-
935
1955
1200
1273
7
1
2
1145
2165
1400
1555
9
1
2
1355
2375
1600
1697
11
1
-
1565
2585
1800
1838
11
1
2
1775
2795
2000
2121
13
1
2
1985
3005
2200
2262
15
1
-
2100
3530
2400
2545
17
1
-
2310
3740
HOSCH-Fördertechnik GmbH
Am Stadion 36 · D - 45659 Recklinghausen ·
Tel. (+49) 2361/58 98 - 0 Fax (+49) 2361/58 98 40
Typ
wahaczy
PFS
B
C
D
E
Zgarniacz pługowy
do powierzchni wewnętrznej
Typ VC2
15010 - 10/98 -PL