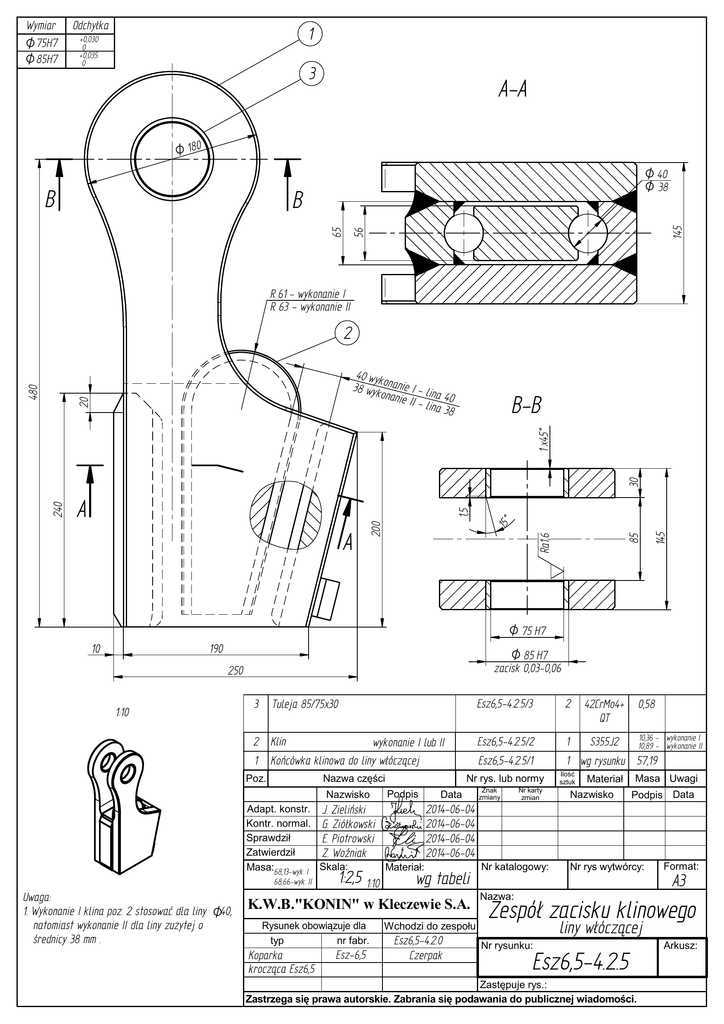
Zespół zacisku klinowego liny włóczącej rys. Esz6,5

Transkrypt

Zespół zacisku klinowego liny włóczącej rys. Esz6,5
Wymiar
O 75H7
O 85H7
Odchyłka
1
+0,030
0
+0,035
0
3
A-A
O 180
B
O 40
O 38
145
56
65
B
R 61 - wykonanie I
R 63 - wykonanie II
40 wy
38 wykkonanie I - lin
onanie
II - linaa 40
38
B-B
145
85
Ra1,6
A
15°
1,5
A
200
240
30
1 x45°
20
480
2
O 75 H7
190
10
O 85 H7
zacisk 0,03-0,06
250
1:10
3 Tuleja 85/75x30
Esz6,5-4.2.5/3
2
2 Klin
wykonanie I lub II
1 Końcówka klinowa do liny włóczącej
Esz6,5-4.2.5/2
Esz6,5-4.2.5/1
10,36 1
S355J2 10,89
1 wg rysunku 57,19
Poz.
Nazwisko
Podpis
Data
Znak
zmiany
Nr karty
zmian
Adapt. konstr. J. Zieliński
2014-06-04
Kontr. normal. G. Ziółkowski
2014-06-04
Sprawdził
2014-06-04
E. Piotrowski
Zatwierdził
2014-06-04
Z. Woźniak
Nr katalogowy:
Materiał:
Masa:68,13-wyk. I Skala:
68,66-wyk. II
1:10
Nazwa:
1:2,5
Uwaga:
1. Wykonanie I klina poz. 2 stosować dla liny O40,
natomiast wykonanie II dla liny zuŜytej o
średnicy 38 mm .
Nr rys. lub normy
Nazwa części
wg tabeli
K.W.B."KONIN" w Kleczewie S.A.
Rysunek obowiązuje dla
typ
nr fabr.
Koparka
krocząca Esz6,5
Esz-6,5
Wchodzi do zespołu
Esz6,5-4.2.0
Czerpak
Ilość
sztuk
0,58
42CrMo4+
QT
Materiał
Nazwisko
wykonanie I
wykonanie II
Masa Uwagi
Podpis Data
Nr rys wytwórcy:
Format:
A3
Zespół zacisku klinowego
liny włóczącej
Nr rysunku:
Esz6,5-4.2.5
Zastępuje rys.:
Zastrzega się prawa autorskie. Zabrania się podawania do publicznej wiadomości.
Arkusz: