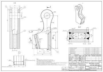
Esz6,5-4.2.5/1 Końcówka klinowa do liny włóczącej A A A-A B B B

Transkrypt

Esz6,5-4.2.5/1 Końcówka klinowa do liny włóczącej A A A-A B B B
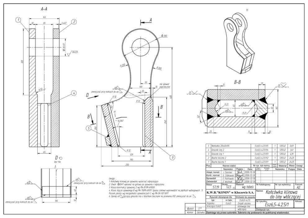
A-A
1:5
145
1
30
3 x45°
85
A
2
Ra1,25
320
O 85 H7
O 180
R 200
R 300
50
4
D
100
a8
zmniejszać przy końcach do a4
B-B
11
20
25
25
25
R 12
480
R 50
nie spawać
10 poprzecznie
R 12
200
240
~ 14,036°
25
R 12
129
65
D
190
bez tła
5
4
3
2
1
A
3
250
11
a8
zmniejszać przy końcach do a4
Nazwa części
Poz.
40
135
12
a8
zmniejszać przy końcach do a4
Uwaga :
1. Końcówkę klinową po spawaniu wyŜarzać odpręŜająco .
2. Otwór O85H7 wykonać na gotowo po spawaniu i odpręŜaniu .
3. Klasa konstrukcji spawanej 2 wg PN-87/M-69008 .
4. Klasa złącza spawanego B wg PN-78/M-69011 .Spoiny czołowe wyprowadzić na płytkach wybiegowych . 5.
Poziom jakości wg niezgodności spawalniczych C wg PN-EN ISO 5817.
6. Spoinę a8 łączącą gniazda liny z blachami bocznymi na promieniu R12 zmniejszać do a4
.
O85H7
Wymiar
+0,035
0
Odchyłka
10
Nakładka 20x40x135
Gniazdo liny 2
Gniazdo liny 1
Blacha boczna 2
Blacha boczna 1
Nazwisko
a2
145
R 21
50°
B
5
32
a8
1:4
9 5°
B
a8
65
R 21
Podpis
Esz6,5-4.2.5/1/5
Esz6,5-4.2.5/1/4
Esz6,5-4.2.5/1/3
Esz6,5-4.2.5/1/2
Esz6,5-4.2.5/1/1
1
1
1
1
1
S355J2
S355J2
S355J2
S355J2
S355J2
Nr rys. lub normy
Ilość
sztuk
Materiał
Data
Znak
zmiany
Nr karty
zmian
Adapt. konstr. J. Zieliński
2008-12-18
Kontr. normal. G. Ziółkowski
2008-12-18
Sprawdził
2008-12-18
E. Piotrowski
Zatwierdził
2008-12-18
Z. Woźniak
Skala:
Nr katalogowy:
Materiał:
Masa:
57,19
1:2,5
1:5
wg tabeli
K.W.B."KONIN" w Kleczewie S.A.
Rysunek obowiązuje dla
typ
nr fabr.
Koparka
krocząca Esz6,5
Esz6,5
Wchodzi do zespołu
Esz6,5-4.2.5
Zespół zacisku
klinowego liny
włóczącej
Nazwa:
Nazwisko
0,69
3,41
4,39
24,25
24,25
Masa Uwagi
Podpis Data
Nr rys wytwórcy:
Format:
A2
Końcówka klinowa
do liny włóczącej
Esz6,5-4.2.5/1
Nr rysunku:
Zastępuje rys.:
Zastrzega się prawa autorskie. Zabrania się podawania do publicznej wiadomości.
Arkusz: