pobierz

Transkrypt

pobierz
UWAGI:
S1
A
4
36
300
300
300
300
5
6
2 448
2 376
7
300
8
300
S1
300
9
36
24
300
24
36
attyka
S1
805
attyka
300
300
rura spustowa
∆ 15 cm
rura spustowa
∆ 15 cm
spadek 2,00 %
spadek 2,00 %
240
attyka
35
240
35
spadek ok. 8,00%
4,57o
C
spadek ok. 8,00%
4,57o
C
D
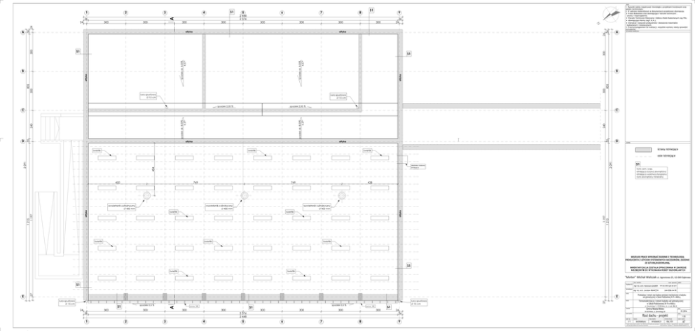
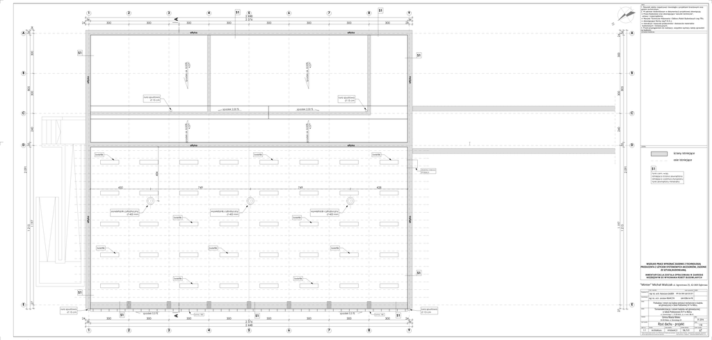
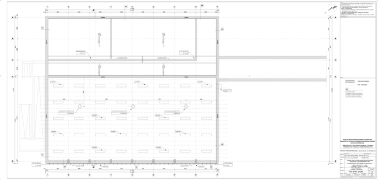
ZESTAWIENIE POWIERZCHNI:
B
805
attyka
spadek ok. 8,00%
4,57o
spadek ok. 8,00%
4,57o
S1
B
A
300
attyka
300
A
36
24
24
3
N
2
1
1. Rysunek należy rozpatrywać równolegle z projektami branżowymi oraz
opisem technicznym;
2. W zakresie nieokreślonym w dokumentacji projektowej obowiązują:
∑ Prawo Budowlane oraz obowiązujące "warunki techniczne",
ustawy i rozporządzenia;
∑ Warunki Techniczne Wykonania i Odbioru Robót Budowlanych (wg ITB);
∑ obowiązujące Normy (wg P.K.N.);
∑ instrukcje i wytyczne producentów i dostawców materiałów
budowlanych i instalacyjnych;
3. Przed przystąpieniem do realizacji, wszystkie wymiary należy sprawdzić
na budowie;
attyka
świetlik
świetlik
D
LEGENDA:
ściany istniejące
świetlik
749
749
wywietrznik cylindryczny
∆ 400 mm
świetlik
świetlik
świetlik
-tynk cem.-wap.
-istniejąca ściana zewnętrzna
-istniejąca warstwa styropianu
-tynk zewnętrzny mineralny
świetlik
1 197
1 215
wywietrznik cylindryczny
∆ 400 mm
attyka
wywietrznik cylindryczny
∆ 400 mm
S1
428
attyka
450
1 215
1 197
2 091
drabinka stalowa
istniejąca
404
2 091
osie istniejące
świetlik
WSZELKIE PRACE WYKONAĆ ZGODNIE Z TECHNOLOGIĄ
PRODUCENTA Z UŻYCIEM SYSTEMOWYCH AKCESORIÓW, ZGODNIE
ZE SZTUKĄ BUDOWLANĄ.
S1
świetlik
INWENTARYZACJA ZOSTAŁA OPRACOWANA W ZAKRESIE
NIEZBĘDNYM DO WYKONANIA ROBÓT BUDOWLANYCH
świetlik
"Minter" Michał Walczak ul. Agrestowa 25, 62-069 Dąbrowa
imię i nazwisko:
S1
Projektant Gł.:
rura spustowa
∆ 15 cm
24
36
1
300
spadek 0,5 %
S1
300
2
3
rynna, 180
300
300
4
S1
2 376
2 448
5
spadek 0,5 %
300
300
6
rynna, 180
300
7
300
8
S1
rura spustowa
∆ 15 cm
24
36
9
27
E
A
E
27
Sprawdzający:
numer uprawnień: podpis:
mgr inż. arch. Katarzyna GAUDEN
WP-OIA/OKK/UpB/28/2011
mgr inż. arch. Jarosław KRAWCZYK
temat:
UAN-8386/64/90
Przebudowa i remont oraz budowa wentylacji mechanicznej w budynku
sali gimnastycznej w Szkole Podstawowej Nr 9 w Mielcu,
Termomodernizacja i remont budynku sali gimnastycznej
w Szkole Podstawowej Nr 9 w Mielcu
obiekt:
ul. Drzewieckiego 11, 39-300 Mielec, dz. nr ewid. 886/42
Gmina Miasta Mielec
inwestor:
data:
01.2016
39-300 Mielec, ul. Żeromskiego 26
tytuł rysunku:
część rys.:
1/1
Rzut dachu - projekt
branża:
Architektura
faza projektu:
WYKONAWCZY
format arkusza:
106,7x 51
skala:
1:50
numer rysunku:
A7
Projekt chroniony prawami autorskimi - Dz.U.1994 Nr24 poz.83; Wszelkie prawa zastrzeżone / All rights reserved. Powielanie , rozpowszechnianie, wykorzystanie, wprawadzanie
zmian bez zgody posiadacza praw autorskich jest zabronione!
Prawa Autorskie dla / Copyright by : Construction & Business Project Sp. z o.o.