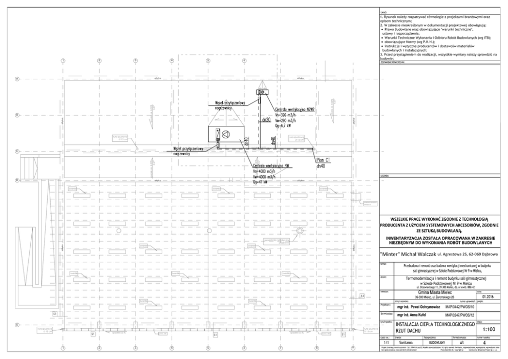
INSTALACJA CIEPŁA TECHNOLOGICZNEGO RZUT DACHU

Transkrypt

INSTALACJA CIEPŁA TECHNOLOGICZNEGO RZUT DACHU
UWAGI:
2
1
3
4
A
1. Rysunek należy rozpatrywać równolegle z projektami branżowymi oraz
opisem technicznym;
2. W zakresie nieokreślonym w dokumentacji projektowej obowiązują:
· Prawo Budowlane oraz obowiązujące "warunki techniczne",
ustawy i rozporządzenia;
· Warunki Techniczne Wykonania i Odbioru Robót Budowlanych (wg ITB);
· obowiązujące Normy (wg P.K.N.);
· instrukcje i wytyczne producentów i dostawców materiałów
budowlanych i instalacyjnych;
3. Przed przystąpieniem do realizacji, wszystkie wymiary należy sprawdzić na
budowie;
6
5
ZESTAWIENIE POWIERZCHNI:
attyka
attyka
B
attyka
spadek ok. 8,00%
4,57o
spadek ok. 8,00%
4,57o
attyka
rura spustowa
Æ 15 cm
rura spustowa
Æ 15 cm
spadek 2,00 %
spadek 2,00 %
spadek ok. 8,00%
4,57o
spadek ok. 8,00%
4,57o
C
D
LEGENDA:
attyka
attyka
świetlik
świetlik
świetlik
drabinka stalowa
istniejąca
attyka
attyka
wywietrznik cylindryczny
Æ 400 mm
świetlik
świetlik
"Minter" Michał Walczak ul. Agrestowa 25, 62-069 Dąbrowa
temat:
świetlik
świetlik
Przebudowa i remont oraz budowa wentylacji mechanicznej w budynku
sali gimnastycznej w Szkole Podstawowej Nr 9 w Mielcu,
świetlik
obiekt:
Termomodernizacja i remont budynku sali gimnastycznej
w Szkole Podstawowej Nr 9 w Mielcu
ul. Drzewieckiego 11, 39-300 Mielec, dz. nr ewid. 886/42
Gmina Miasta Mielec
inwestor:
S1
świetlik
imię i nazwisko:
świetlik
MAP/0442/PWOS/10
Sprawdzający:
spadek 0,5 %
S1
rynna, 180
INSTALACJA CIEPŁA TECHNOLOGICZNEGO
1:100
RZUT DACHU
część rys.:
branża:
rura spustowa
Æ 15 cm
spadek 0,5 %
S1
rynna, 180
S1
1/1
1
2
3
4
5
6
7
8
9
MAP/0247/PWOS/12
tytuł rysunku:
E
rura spustowa
Æ 15 cm
01.2016
numer uprawnień:podpis:
Projektant :
S1
data:
39-300 Mielec, ul. Żeromskiego 26
skala:
Sanitarna
faza projektu:
BUDOWLANY
format arkusza:
A3
numer rysunku:
4
Projekt chroniony prawami autorskimi - Dz.U.1994 Nr24 poz.83; Wszelkie prawa zastrzeżone / All rights reserved. Powielanie , rozpowszechnianie, wykorzystanie, wprawa
bez zgody posiadacza praw autorskich jest zabronione!
Prawa Autorskie dla / Copyright byConstruction
:
& Business Project Sp. z o.o.