NFR

Transkrypt

NFR
SCHEMAT -
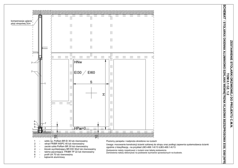
kompensacja ugięcia
płyty stropowej 2cm
HNw
7
EI30
ZESTAWIENIE STOLARKI DRZWIOWEJ DO PROJEKTU C.M.N.
TOM II.1 CZ. 1.2
7
EI60
S
H
1
4
5
6
7
10
1
2
3
4
5
6
7
-
10
HPw=0
3
2
szkło np. Polflam BR EI 30 lub równoważny
wkręt FR/BR WSPC 40 lub równoważny
zacisk szkła Polflam BR 30 lub równoważny
klocek wychładzający BR KW 30x2 lub równoważny
taśma pęczniejąca FR/BR TP 22 lub równoważny
profil UA 75 lub równoważny
kątownik aluminiowy
Poziomy parapetu i nadproża określone na rzutach
Uwaga: mocowanie konstrukcji ścianki szklanej do stropu oraz podłogi zapewnia systemodawca ścianki
zgodnie z klasyfikacją - na przykład LBO-468.1-K/13 iLBO-469.1-K/13
Zestawienie należy rozpatrywać z rzutami oraz tabelą zestawienia.
Zamówienia należy dokonywać na podstawie wymiarów sprawdzonych na budowie.