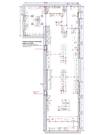
Sklep samoobsługowy nr 17 ŚWIT

Transkrypt

Sklep samoobsługowy nr 17 ŚWIT
120
340
120
Krajalnica 2
43
276
41
Przyprawy
płynne
/ketchuy, przeciery/
Ryby
100
Krajalnica 1
Chemia
140
60
90
Oleje
sosy
Waga 3
Mięso
Wędliny
190
278
100
40
276
Miejsce na
wózki
45
67
Przyprawy
190
142
Miejsce
na koszyki
110
55
375
133
Wejście wyjście klienta
65
80
65
70
MroŜonki
garmaŜerka
35
210
MroŜonki owocowo warzywne
2470
Chemia
90
470
Chemia
65
276
Chemia
Art.
promocyjne
impulsowe
Rezerwa
90
60
90
70
Piwo
/butelka
puszka/
Papierosy
Kosmetyki
Piwo
/butelka
puszka/
85
160
Kasa 2
80
65
Art. sezonowe
/znicze, szkolne/
140
Zdrowie
na LUX
farmac.
60
100
100
278
MroŜonki
ryby
Art.
higieniczne
Chipsy
Art.
higieniczne
70
60
Lody
110
80
DraŜe
75
Art.
higieniczne
155
Czekolady
h 210
Kawa
Herbata
60
Lodówka
pepsi
40
65
Ciastka
90
Lodówka
Coca - Cola
130
75
Wódki
kolorowe
60
35
113
55
70
Cukierki
Ciasta
mokre czekoladki
luz
35
Wino
60
Kasa 1
Przyprawy
90
Przyprawy
175
Ciastka
Pokój komputerowy
90
Ciastka
85
Lodówka
Piwo
śywiec
50
58
Sery
Ŝółte
90
Waga 2
Konserwy mięsne i rybne
Fixy
/proszki do
pieczenia/
90
Lodówka
Piwo
Lech
80
Papierosy
Lada
przeszklona
60
35
Ciastka Alkohole
luz prestiŜowe
85
40
90
Agregat
zewnętrzny
80
Wódki
czyste
Fixy
/budynie, ksiele/
90
Makaron
Inwestor: PSS "SPOŁEM" w Wyszkowie
Opracował: STRATEGIE BIZNESU Andrzej Honek
Jednostka miary: 1 cm
Fixy
/zupy/
RyŜ
Kasze
148
60
Wódki
czyste
Fixy
/instanty/
90
Mąka
Cukier
60
31
130
60
Płatki
śniadaniowe
Projekt aranŜacji /technologii/
sklep nr 17 "Swit"
80
400
Napoje czyste /pety/
Nabiał
/mleko - śmietana - kefir - jogurty - desery - tłuszcze/
180
Plafoniery
dodatkowe oświetlenie
110
90
Waga 1
Mleko
karton
Zaplecze sklepu
- magazyn
- pomieszczenia socjalne
110
248
55
Pieczywo
popularne
380
Napoje czyste /pety/
60
Pieczywo
dietetyczne
90
Wyspa
Owoce
150
Warzywa
/moŜe być chłodnicza/
Bakalie
90
60
806
Miody
DŜemy
90
50
2075
105
Owoce
60
Napoje kolorowe /pety/
90
90
Przetwory owocowo
- warzywne
170
Soki /karton/
708
60
588
364
573
200
Prasa
138
100
45
60
Batony
100