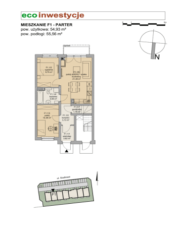
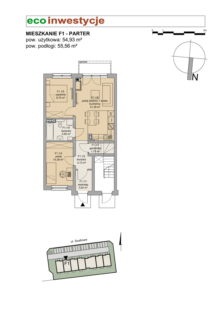
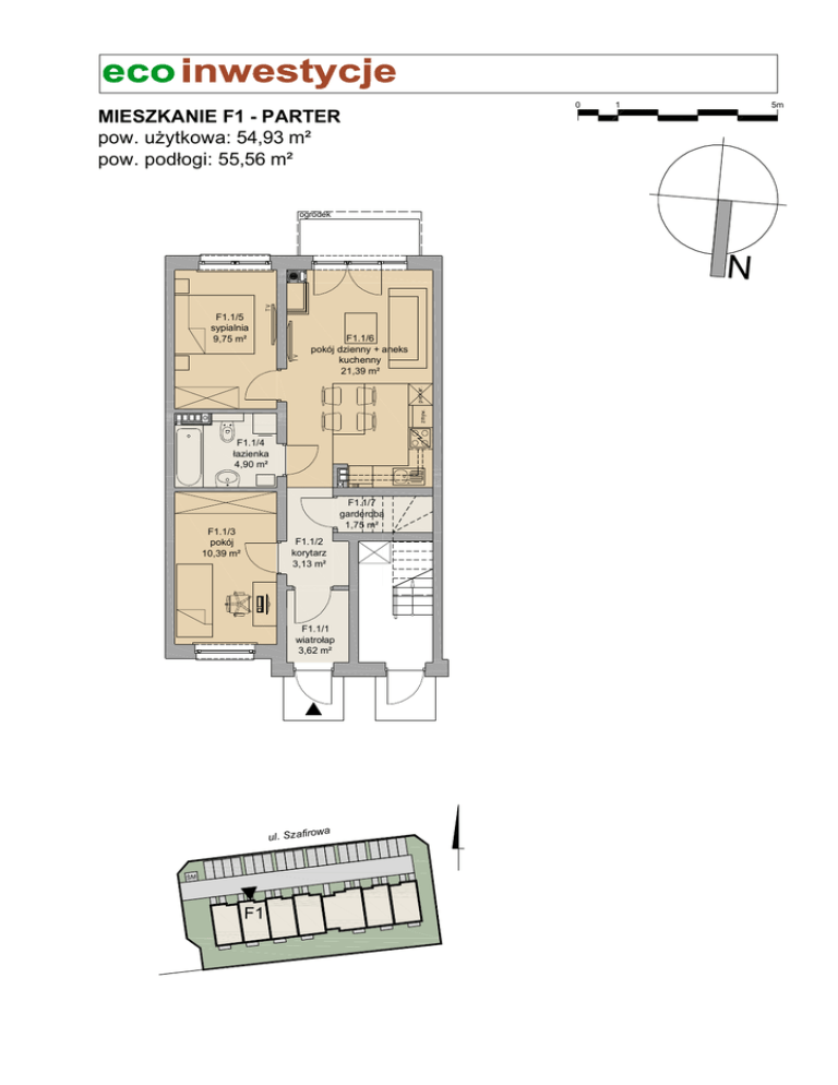
MIESZKANIE F1 - PARTER pow. użytkowa: 54,93 m² pow. podłogi

Transkrypt

MIESZKANIE F1 - PARTER pow. użytkowa: 54,93 m² pow. podłogi
0
1
5m
MIESZKANIE F1 - PARTER
pow. użytkowa: 54,93 m²
pow. podłogi: 55,56 m²
ogródek
TV
N
F1.1/6
pokój dzienny + aneks
kuchenny
21,39 m²
zmyw. piekar.
TV
F1.1/5
sypialnia
9,75 m²
F1.1/4
łazienka
4,90 m²
F1.1/7
garderoba
1,75 m²
F1.1/3
pokój
10,39 m²
F1.1/2
korytarz
3,13 m²
F1.1/1
wiatrołap
3,62 m²
owa
ul. Sz afir
ŚM
F1