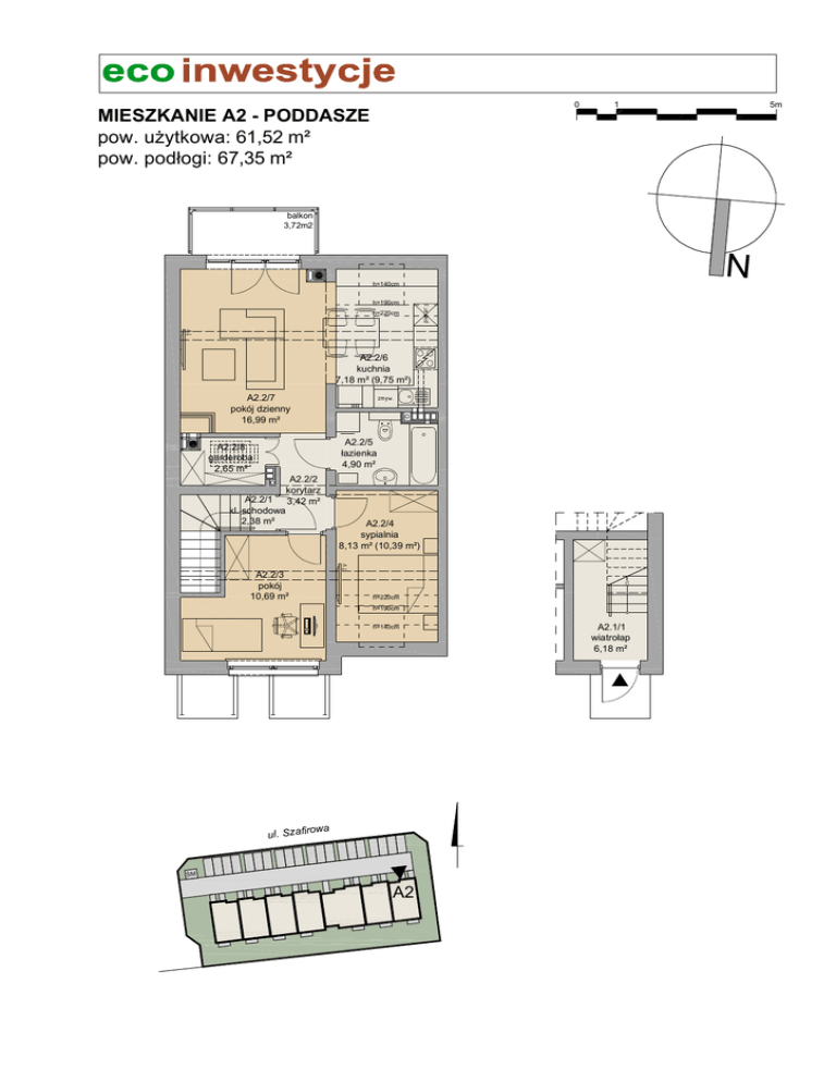
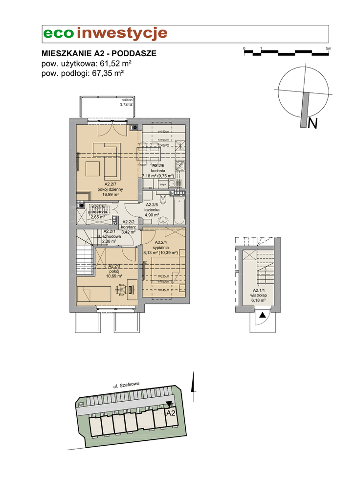
MIESZKANIE A2 - PODDASZE pow. użytkowa: 61,52 m² pow

Transkrypt

MIESZKANIE A2 - PODDASZE pow. użytkowa: 61,52 m² pow
0
1
5m
MIESZKANIE A2 - PODDASZE
pow. użytkowa: 61,52 m²
pow. podłogi: 67,35 m²
balkon
3,72m2
N
h=140cm
TV
h=220cm
piekar.
h=190cm
A2.2/6
kuchnia
7,18 m² (9,75 m²)
A2.2/7
pokój dzienny
16,99 m²
zmyw.
A2.2/5
łazienka
4,90 m²
A2.2/8
garderoba
2,65 m²
A2.2/4
sypialnia
8,13 m² (10,39 m²)
TV
A2.2/1
kl. schodowa
2,38 m²
A2.2/2
korytarz
3,42 m²
A2.2/3
pokój
10,69 m²
h=220cm
h=190cm
h=140cm
owa
ul. Sz afir
ŚM
A2
A2.1/1
wiatrołap
6,18 m²