Cieszyn Błogocice

Transkrypt

Cieszyn Błogocice
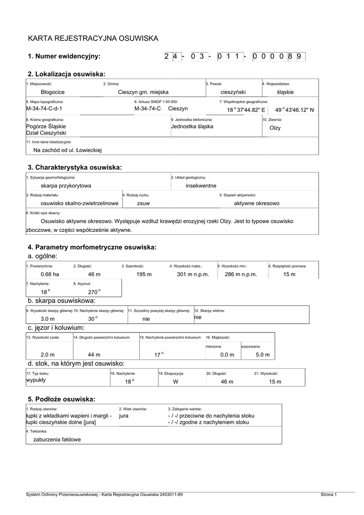
KARTA REJESTRACYJNA OSUWISKA
2 4 - 0 3 - 0 1 1 - 0 0 0 0 8 9
1. Numer ewidencyjny:
2. Lokalizacja osuwiska:
1. Miejscowość:
2. Gmina:
Błogocice
3. Powiat:
Cieszyn gm. miejska
4. Województwo:
cieszyński
5. Mapa topograficzna:
6. Arkusz SMGP 1:50 000:
M-34-74-C-d-1
M-34-74-C
śląskie
7. Współrzędne geograficzne:
Cieszyn
o
o
18 37'44.82" E
8. Kraina geograficzna:
9. Jednostka tektoniczna:
Pogórze Śląskie
Dział Cieszyński
Jednostka śląska
49 43'46.12" N
10. Zlewnia:
Olzy
11. Inne dane lokalizacyjne:
Na zachód od ul. Łowieckiej
3. Charakterystyka osuwiska:
1. Sytuacja geomorfologiczna:
2. Układ geologiczny:
skarpa przykorytowa
insekwentne
3. Rodzaj materiału:
4. Rodzaj ruchu:
osuwisko skalno-zwietrzelinowe
5. Stopień aktywności:
zsuw
aktywne okresowo
6. Krótki opis słowny:
Osuwisko aktywne okresowo. Występuje wzdłuż krawędzi erozyjnej rzeki Olzy. Jest to typowe osuwisko
zboczowe, w części współcześnie aktywne.
4. Parametry morfometryczne osuwiska:
a. ogólne:
1. Powierzchnia:
2. Długość:
0.66 ha
7. Nachylenie:
18
3. Szerokość:
46 m
4. Wysokość maks.:
195 m
5. Wysokość min.:
301 m n.p.m.
6. Rozpiętość pionowa:
286 m n.p.m.
15 m
8. Azymut:
o
270
o
b. skarpa osuwiskowa:
9. Wysokość skarpy głównej:10. Nachylenie skarpy głównej:
3.0 m
30
11. Szczeliny powyżej skarpy głównej:
o
12. Skarpy wtórne:
nie
nie
c. jęzor i koluwium:
13. Wysokość czoła:
14. Długość powierzchni koluwium:
15. Nachylenie powierzchni koluwium:
16. Miąższość:
mierzona:
2.0 m
44 m
17
o
szacowana:
0.0 m
5.0 m
d. stok, na którym jest osuwisko:
17. Typ stoku:
18. Nachylenie:
wypukły
18
o
19. Ekspozycja:
W
20. Długość:
21. Wysokość:
46 m
15 m
5. Podłoże osuwiska:
1. Rodzaj utworów:
2. Wiek utworów:
3. Zaleganie warstw:
łupki z wkładkami wapieni i margli łupki cieszyńskie dolne [jura]
jura
- / -/ przeciwne do nachylenia stoku
- / -/ zgodne z nachyleniem stoku
4. Tektonika:
zaburzenia fałdowe
System Ochrony Przeciwosuwiskowej - Karta Rejestracyjna Osuwiska 2403011-89
Strona 1
6. Materiał koluwialny:
detrytyczny
gliny i/lub iły
gliny z rumoszem
7. Przejawy wód powierzchniowych i gruntowych w obrębie:
1. Koluwium:
2. Skarpy głównej i stoku powyżej skarpy:
3. Stoku poniżej osuwiska:
4. Stoku po bokach osuwiska:
cieki powierzchniowe
8. Wiek i geneza osuwiska:
1. Data powstania:
Osuwisko holoceńskie
2. Rozwój osuwiska w czasie:
3. Przyczyna ruchu osuwiskowego:
0
naturalna - infiltracja wód opadowych, naturalna
- podcięcie erozyjne
9. Użytkowanie terenu w obrębie osuwiska:
a. pokrycie stoku:
1. Lasy:
2. Zarośla krzewiaste:
tak
3. Łąki i pastwiska:
nie
4. Grunty orne:
nie
5. Sady:
nie
6. Nieużytki:
nie
nie
b. zabudowa:
7. Mieszkalna:
8. Gospodarcza:
0
11. Zabytkowa/sakralna:
9. Przemysłowa/usługowa:
0
0
10. Użyteczności publicznej:
0
12. Inna:
0
c. infrastruktura komunikacyjna:
13. Drogi:
14. Linie kolejowe:
brak
nie
d. linie przesyłowe:
15. Linie energetyczne:
16. Linie telefoniczne:
nie
nie
19. Gazociągi:
nie
17. Wodociągi:
nie
18. Kanalizacja:
nie
20. Inne:
nie
10. Powstałe szkody i zagrożenia:
1. Uprawy:
nie stwierdzono
2. Zabudowa:
nie stwierdzono
3. Infrastruktura komunikacyjna:
nie stwierdzono
4. Linie przesyłowe:
nie stwierdzono
5. Inne:
nie stwierdzono
6. Uprawy:
nie występują
7. Zabudowa:
nie występują
8. Infrastruktura komunikacyjna:
nie występują
9. Linie przesyłowe:
nie występują
10. Inne:
nie występują
11. Ocena możliwości wystąpienia dalszych ruchów osuwiskowych:
11. Rodzaje i zakres wykonanych prac zabezpieczających:
nie
System Ochrony Przeciwosuwiskowej - Karta Rejestracyjna Osuwiska 2403011-89
Strona 2
12. Prowadzenie instrumentalnych prac monitoringowych:
nie
13. Stan badań:
Publikacje:
Dokumentacje:
2003, P. Nescieruk, A. Wójcik
Szczegółowa Mapoa Geologiczna Polski, arkusz Cieszyn
()
14. Szkic (mapa) osuwiska:
15. Przekrój geologiczny osuwiska:
16. Fotografia (-ie) osuwiska:
17. Uwagi o możliwości zabezpieczenia oraz dodatkowe informacje:
System Ochrony Przeciwosuwiskowej - Karta Rejestracyjna Osuwiska 2403011-89
Strona 3
18. Autor karty:
Wójcik Antoni
19. Kategoria i numer uprawnień geologicznych:
VIII/0038
20. Instytucja:
PIG, O. Karpacki, Kraków
21. Data wypełnienia:
2007-08-14
System Ochrony Przeciwosuwiskowej - Karta Rejestracyjna Osuwiska 2403011-89
Strona 4