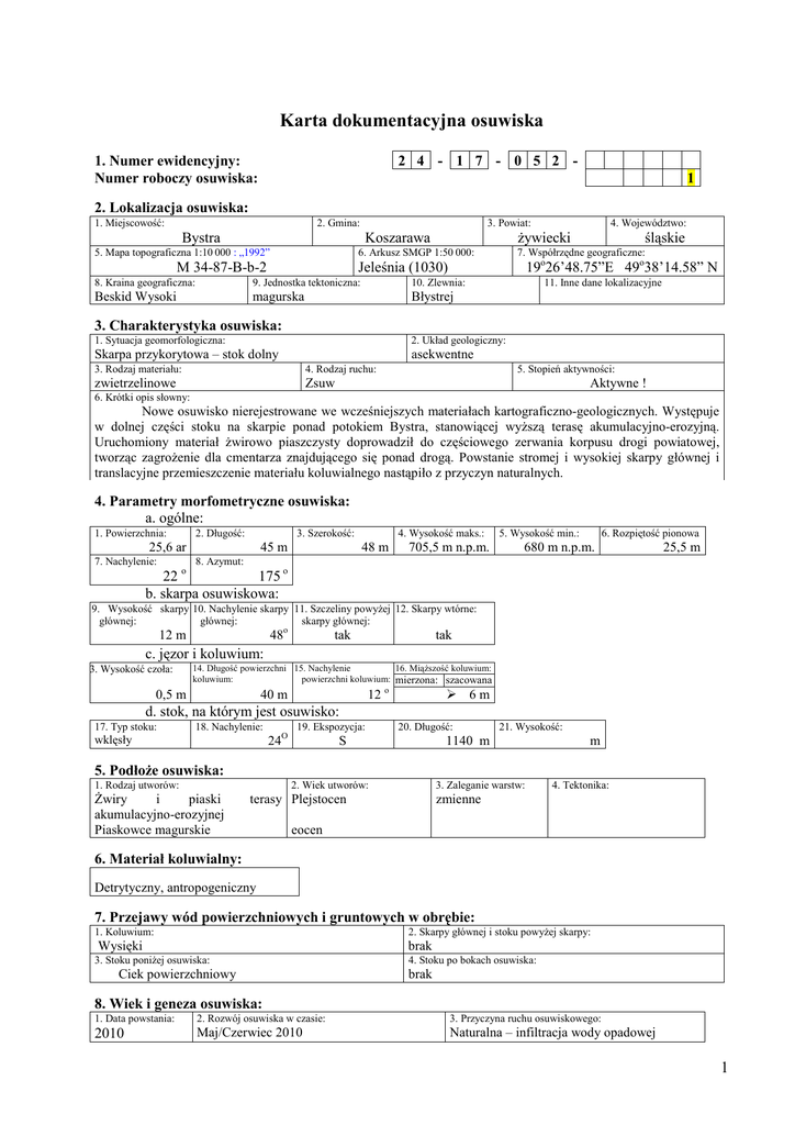
Karta dokumentacyjna osuwiska

Transkrypt

Karta dokumentacyjna osuwiska
Karta dokumentacyjna osuwiska
1. Numer ewidencyjny:
Numer roboczy osuwiska:
2 4 - 1 7 - 0 5 2 1
2. Lokalizacja osuwiska:
1. Miejscowość:
2. Gmina:
Bystra
3. Powiat:
Koszarawa
5. Mapa topograficzna 1:10 000 : „1992”
6. Arkusz SMGP 1:50 000:
M 34-87-B-b-2
4. Województwo:
Ŝywiecki
śląskie
7. Współrzędne geograficzne:
19o26’48.75”E 49o38’14.58” N
Jeleśnia (1030)
8. Kraina geograficzna:
9. Jednostka tektoniczna:
10. Zlewnia:
Beskid Wysoki
magurska
Błystrej
11. Inne dane lokalizacyjne
3. Charakterystyka osuwiska:
1. Sytuacja geomorfologiczna:
2. Układ geologiczny:
Skarpa przykorytowa – stok dolny
asekwentne
3. Rodzaj materiału:
4. Rodzaj ruchu:
zwietrzelinowe
Zsuw
5. Stopień aktywności:
Aktywne !
6. Krótki opis słowny:
Nowe osuwisko nierejestrowane we wcześniejszych materiałach kartograficzno-geologicznych. Występuje
w dolnej części stoku na skarpie ponad potokiem Bystra, stanowiącej wyŜszą terasę akumulacyjno-erozyjną.
Uruchomiony materiał Ŝwirowo piaszczysty doprowadził do częściowego zerwania korpusu drogi powiatowej,
tworząc zagroŜenie dla cmentarza znajdującego się ponad drogą. Powstanie stromej i wysokiej skarpy głównej i
translacyjne przemieszczenie materiału koluwialnego nastąpiło z przyczyn naturalnych.
4. Parametry morfometryczne osuwiska:
a. ogólne:
1. Powierzchnia:
2. Długość:
3. Szerokość:
25,6 ar
7. Nachylenie:
45 m
4. Wysokość maks.:
48 m
705,5 m n.p.m.
5. Wysokość min.:
6. Rozpiętość pionowa
680 m n.p.m.
25,5 m
8. Azymut:
22 o
175 o
b. skarpa osuwiskowa:
9. Wysokość skarpy 10. Nachylenie skarpy 11. Szczeliny powyŜej 12. Skarpy wtórne:
głównej:
głównej:
skarpy głównej:
48o
12 m
tak
tak
c. jęzor i koluwium:
13. Wysokość czoła:
14. Długość powierzchni 15. Nachylenie
16. MiąŜszość koluwium:
koluwium:
powierzchni koluwium: mierzona: szacowana
0,5 m
12 o
40 m
6m
d. stok, na którym jest osuwisko:
17. Typ stoku:
18. Nachylenie:
19. Ekspozycja:
24O
wklęsły
20. Długość:
S
21. Wysokość:
1140 m
m
5. PodłoŜe osuwiska:
1. Rodzaj utworów:
2. Wiek utworów:
świry
i
piaski
akumulacyjno-erozyjnej
Piaskowce magurskie
3. Zaleganie warstw:
terasy Plejstocen
4. Tektonika:
zmienne
eocen
6. Materiał koluwialny:
Detrytyczny, antropogeniczny
7. Przejawy wód powierzchniowych i gruntowych w obrębie:
1. Koluwium:
2. Skarpy głównej i stoku powyŜej skarpy:
Wysięki
brak
3. Stoku poniŜej osuwiska:
Ciek powierzchniowy
4. Stoku po bokach osuwiska:
brak
8. Wiek i geneza osuwiska:
1. Data powstania:
2. Rozwój osuwiska w czasie:
3. Przyczyna ruchu osuwiskowego:
2010
Maj/Czerwiec 2010
Naturalna – infiltracja wody opadowej
1
9. UŜytkowanie terenu w obrębie osuwiska:
a. pokrycie stoku:
1. Lasy:
2. Zarośla krzewiaste:
X
3. Łąki i pastwiska:
4. Grunty orne:
5. Sady:
6. NieuŜytki:
X
b. zabudowa:
X
7. Mieszkalna:
8. Gospodarcza:
11. Zabytkowa/sakralna:
12. Inna:
9. Przemysłowa/usługowa:
10. UŜyteczności publicznej:
17. Wodociągi:
18. Kanalizacja:
c. infrastruktura komunikacyjna:
13. Drogi:
14. Linie kolejowe:
Droga powiatowa
d. linie przesyłowe:
15. Linie energetyczne
16. Linie telefoniczne:
Tak
Tak
19. Gazociągi:
20. Inne:
10. Powstałe szkody
i zagroŜenia:
1. Uprawy:
6. Uprawy:
2. Zabudowa:
7. Zabudowa:
3. Infrastruktura komunikacyjna:
8. Infrastruktura komunikacyjna:
Częściowo uszkodzona droga pow. na odcinku 42 m.
ZagroŜona droga powiatowa
4. Linie przesyłowe:
9. Linie przesyłowe:
5. Inne:
10. Inne:
linie niskiego napięcia
ZagroŜony cmentarz
11. Ocena moŜliwości wystąpienia dalszych ruchów osuwiskowych:
Ze względu na typ osuwiska i charakter jego ruchu mogą zachodzić dalsze ruchy masowe/osuwiskowe !!!
11. Rodzaje i zakres wykonanych prac zabezpieczających:
TAK
NIE
Tymczasowe ogrodzenie zerwanego fragmentu drogi pow.
12. Prowadzenie instrumentalnych prac monitoringowych:
TAK
NIE
Opis:
13. Stan badań:
Golonka J., Wójcik A., 1976. SMGP w skali 1:50 000 ark. Jeleśnia (1030)
2
14. Szkic (mapa) osuwiska:
15. Przekrój geologiczny osuwiska:
16. Fotografia (-e) osuwiska:
świry i piaski terasy odsłonięte w stromej skarpie głównej
Północna krawędź skarpy głównej osuwiska znajduje się pod
korpusem drogi powiatowej
3
17. Uwagi o moŜliwości zabezpieczenia oraz dodatkowe informacje:
Występuje konieczność podjęcia prac stabilizacyjnych i zabezpieczających osuwisko
w całości!
Na skutek katastrofalnych opadów w maju-czerwcu 2010 r. powstało nowe osuwisko
obejmujące stroma skarpę terasy akumulacyjno-erozyjnej w obrębie działek ew. nr. 7682/19;
7682/18 i 7682/30. W chwili obecnej krawędź znajduje się pod korpusem drogi powiatowej. Na
terenie osuwiska widoczne są liczne szczeliny i pęknięcia, a piaszczysto-Ŝwirowy materiał
koluwialny został znacznie przemieszczony w dół skarpy Uszkodzeniu i zniszczeniu uległa
zarówno nawierzchnia jak i barierki na odcinku około 42 m. Na obszarze tym brak infrastruktury
budowlanej.
Uwzględniając rodzaj i miąŜszość gruntu w obrębie, którego powstało osuwisko oraz
znaczne nachylenie skarpy głównej naleŜy jednoznacznie stwierdzić, iŜ w przypadku braku
podjęcia działań zabezpieczających i stabilizacyjnych na w/w osuwisku istnieje
bezpośrednie zagroŜenie całkowitym zerwaniem korpusu drogi i przemieszczeniem niszy
w kierunku sąsiadującego z nią cmentarza.
18. Autor karty
Imię i nazwisko:
dr Piotr Nescieruk
19. Kategoria i numer
uprawnień
geologicznych:
VIII-087
20. Instytucja:
Państwowy Instytut
Geologiczny – Państwowy
Instytut Badawczy
Oddział Karpacki
21. Data wypełnienia:
06.08.2010 r.
4