DOM GARNCARZA RZUT PIWNIC - 1:50 INSTALACJA WOD-KAN
Transkrypt
										DOM GARNCARZA RZUT PIWNIC - 1:50 INSTALACJA WOD-KAN
                                        
                                        
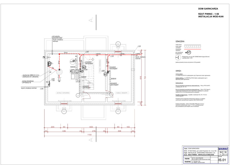
                                DOM GARNCARZA RZUT PIWNIC - 1:50 INSTALACJA WOD-KAN do budynku gospodarczego wod-kan woda zimna -1,55 cyrkulacja kanalizacja sanitarna -1,45 pion kanalizacji projektowany -1,50 Podgrzewacz cwu typ SW TERMO MAX Kospel 300 dm3 wod-kan -0,90 -0,90 WODA ZIMNA z rur BOR Plus PN 20 stabi z polipropylenu typ 3 -0,80 -1,90 KANALIZACJA - Rury z PVC-U/(HT) -1,90 - Rury z PVC klasy S. z PVC-U typ HT Przej cia przez przegrody konstrukcyjne wykona w tulejach ochronnych uszczelnionych zgodnie z BN-72/8976-50/52. wykonaniu podtynkowym, grub. 11 mm w pomiesczeniach DOM GARNCARZA INSTALACJE SANITARNE WOD-KAN, C.O. RZUT PIWNIC - INSTALACJA WOD-KAN 1:50 IS.01