BH3_karty_mieszkań _ 1. piętro

Transkrypt

BH3_karty_mieszkań _ 1. piętro
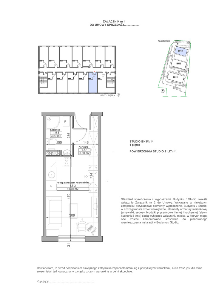
ZAŁĄCZNIK nr 1
DO UMOWY SPRZEDAśY..................
PLAN DZIAŁKI
BH3
BH2
BH1
N
N
RZUT 1 PIĘTRA
P
1.5.3
3,29 m2
236
Łazienka
155
STUDIO BH3/1/14
1 piętro
146
Korytarz
1.5.1
3,50 m2
714
POWIERZCHNIA STUDIO 21,17m2
Pokój z aneksem kuchennym
1.5.2
14,38 m2
470
L
31
309
Standard wykończenia i wyposaŜenia Budynku / Studio określa
wyłącznie Załącznik nr 2 do Umowy. Wskazane w niniejszym
załączniku przykładowe elementy wyposaŜenia Budynku / Studio,
w szczególności drzwi wewnętrzne, elementy armatury łazienkowej
(umywalki, sedesy, brodziki prysznicowe i inne) i kuchennej (zlewy,
kuchenki i inne) słuŜą wyłącznie wskazaniu miejsc, w których mogą
one
zostać
zamontowane
stosownie
do
planowanego
rozmieszczenia instalacji w Budynku / Studio.
Oświadczam, iŜ przed podpisaniem niniejszego załącznika zapoznałem/am się z powyŜszymi warunkami, a ich treść jest dla mnie
zrozumiała i jednoznaczna, w związku z czym warunki te w pełni akceptuję.
Kupujący........................................................