BH3_karty_mieszkań _ 1. piętro

Transkrypt

BH3_karty_mieszkań _ 1. piętro
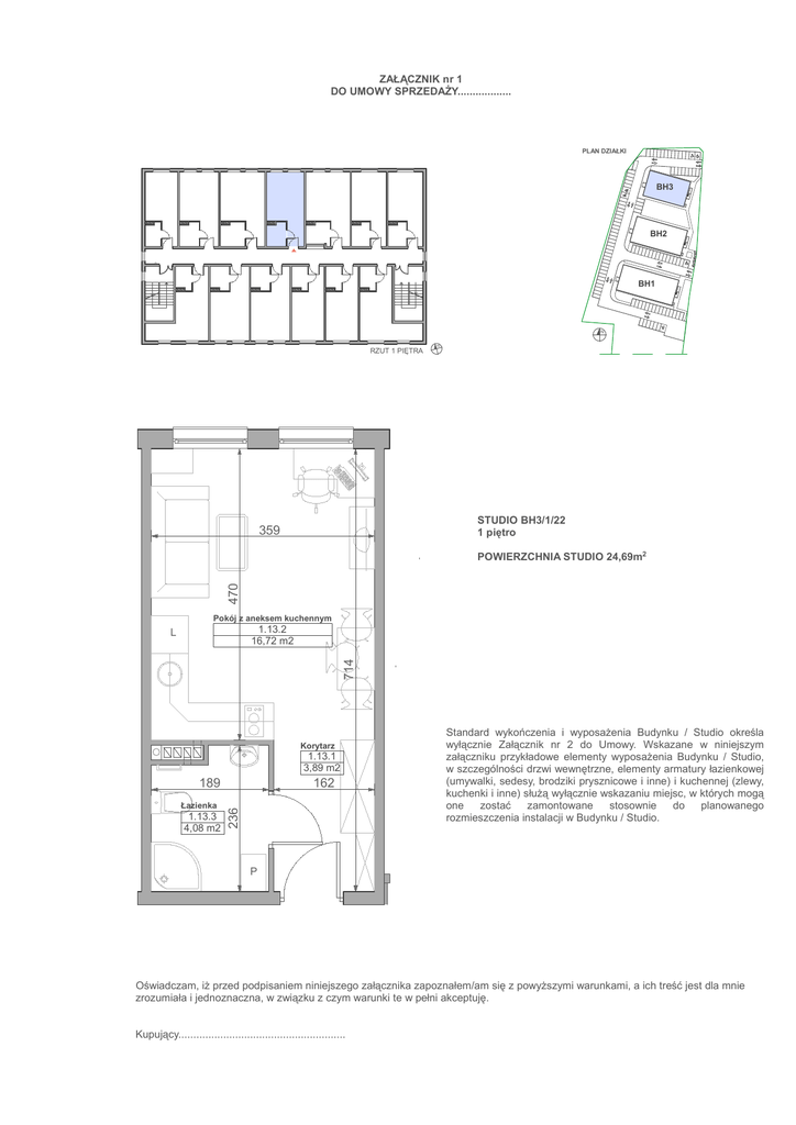
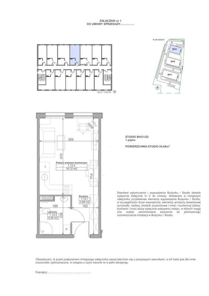
ZAŁĄCZNIK nr 1
DO UMOWY SPRZEDAśY..................
PLAN DZIAŁKI
BH3
BH2
BH1
N
N
RZUT 1 PIĘTRA
STUDIO BH3/1/22
1 piętro
359
470
POWIERZCHNIA STUDIO 24,69m2
Pokój z aneksem kuchennym
1.13.2
16,72 m2
714
L
Korytarz
1.13.1
3,89 m2
Łazienka
1.13.3
4,08 m2
162
236
189
Standard wykończenia i wyposaŜenia Budynku / Studio określa
wyłącznie Załącznik nr 2 do Umowy. Wskazane w niniejszym
załączniku przykładowe elementy wyposaŜenia Budynku / Studio,
w szczególności drzwi wewnętrzne, elementy armatury łazienkowej
(umywalki, sedesy, brodziki prysznicowe i inne) i kuchennej (zlewy,
kuchenki i inne) słuŜą wyłącznie wskazaniu miejsc, w których mogą
one
zostać
zamontowane
stosownie
do
planowanego
rozmieszczenia instalacji w Budynku / Studio.
P
Oświadczam, iŜ przed podpisaniem niniejszego załącznika zapoznałem/am się z powyŜszymi warunkami, a ich treść jest dla mnie
zrozumiała i jednoznaczna, w związku z czym warunki te w pełni akceptuję.
Kupujący........................................................