RZUT SZYBU -SZCZEGÓŁ DRZWI NA NAJWYŻSZYM

Transkrypt

RZUT SZYBU -SZCZEGÓŁ DRZWI NA NAJWYŻSZYM
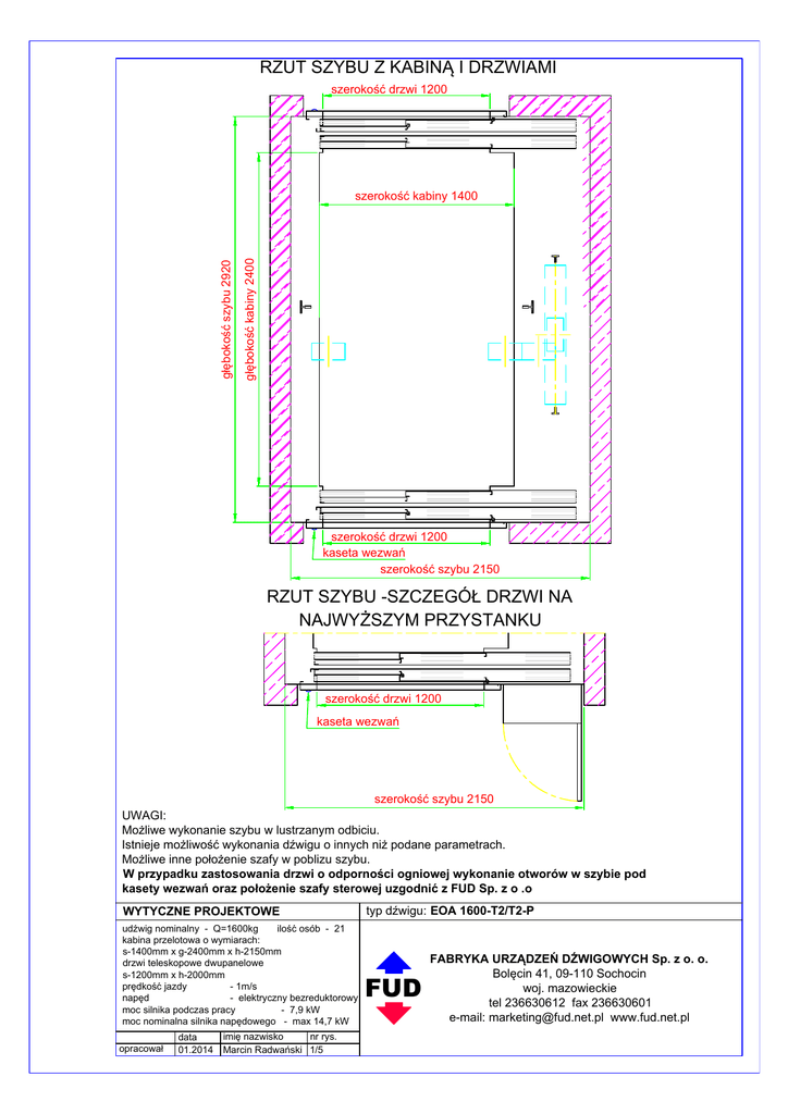
UWAGI:
EOA 1600-T2/T2-P
WYTYCZNE PROJEKTOWE
kabina przelotowa o wymiarach:
s-1400mm x g-2400mm x h-2150mm
drzwi teleskopowe dwupanelowe
s-1200mm x h-2000mm
moc silnika podczas pracy
data
01.2014
FUD
- 7,9 kW
nr rys.
1/5
woj. mazowieckie
tel 236630612 fax 236630601
e-mail: [email protected] www.fud.net.pl
RZUT SZYBU
570
1480
570
70
2230
1480
PRZYSTANKU
60
70
70
1480
570
UWAGI:
Wszystkie wymiary w ARCHITEKTURZE.
EOA 1600-T2/T2-P
WYTYCZNE PROJEKTOWE
kabina przelotowa o wymiarach:
s-1400mm x g-2400mm x h-2150mm
drzwi teleskopowe dwupanelowe
s-1200mm x h-2000mm
moc silnika podczas pracy
data
01.2014
FUD
- 7,9 kW
nr rys.
2/5
woj. mazowieckie
tel 236630612 fax 236630601
e-mail: [email protected] www.fud.net.pl
przekroju poprzecznego szybu.
szyb wylewany z
betonu zbrojonego
min 1500
pionu +10mm.
2230
nadszybie min 3600
UWAGI:
70
60
bloczki fundamentowe na poziomach
Poziomy
mocowania
drzwiowych.
prowadnic (osie
betonowych),
poziomy
2230
betonu zbrojonego.
Fy, Fy
70
2230
2230
60
pomieszczenia dostepne dla ludzi.
kabina przelotowa o wymiarach:
s-1400mm x g-2400mm x h-2150mm
drzwi teleskopowe dwupanelowe
s-1200mm x h-2000mm
data
01.2014
60
EOA 1600-T2/T2-P
WYTYCZNE PROJEKTOWE
moc silnika podczas pracy
60
podszybie
min 1200
max 2450
70
max 1500
70
FUD
- 7,9 kW
nr rys.
3/5
woj. mazowieckie
tel 236630612 fax 236630601
e-mail: [email protected] www.fud.net.pl
905
1033
798
748
Fx
345
395
Fy
P3
P6
P5
745
795
P4
Fy
1500
Fx
200
Fy
Fx
Fx
Fy
P3 - max 137kN
P4 - max 86kN
P5 - max 104kN
P6 - max 42kN
Fy- max 2,7kN
Fy- max 3,5kN
EOA 1600-T2/T2-P
WYTYCZNE PROJEKTOWE
kabina przelotowa o wymiarach:
s-1400mm x g-2400mm x h-2150mm
drzwi teleskopowe dwupanelowe
s-1200mm x h-2000mm
moc silnika podczas pracy
data
01.2014
FUD
- 7,9 kW
nr rys.
4/5
woj. mazowieckie
tel 236630612 fax 236630601
e-mail: [email protected] www.fud.net.pl
2x36W
nadszybie min 3600
570
570
500
RZUT SZYBU
1480
1480
300
RZUT SZYBU NA
Listwa zaciskowa tablicy sterowej
Tablica
dostarcza
570
300
1480
linia telefoniczna (wolny
odcinek przewodu 2m)
PRZYSTANKU
Kaseta na kabinie
dostarcza FUD
Tablica
TOMS
dostarcza
NS
LS1
LS2 LS3
L1 L2 L3 N PE
Kasteta w podszybiu
dostarcza FUD
kW
><
14,7kW
2
L1, L2, L3
16
mm Cu
N
16
PE
A
><
16
C63
EOA 1600-T2/T2-P
WYTYCZNE PROJEKTOWE
kabina przelotowa o wymiarach:
s-1400mm x g-2400mm x h-2150mm
drzwi teleskopowe dwupanelowe
s-1200mm x h-2000mm
moc silnika podczas pracy
data
01.2014
500
Zabezpieczenie
Moc silnika
FUD
- 7,9 kW
nr rys.
5/5
woj. mazowieckie
tel 236630612 fax 236630601
e-mail: [email protected] www.fud.net.pl
podszybie
min 1200
max 2450
rozstaw lamp
szybu dostarcza FUD