H1600 d1300np - Fabryka Urządzeń Dźwigowych Sp. z oo

Transkrypt

H1600 d1300np - Fabryka Urządzeń Dźwigowych Sp. z oo
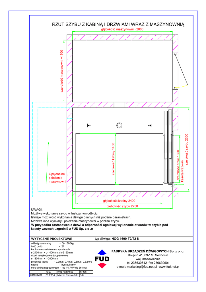
Opcjonalne
maszynowni
UWAGI:
HOG 1600-T2/T2-N
WYTYCZNE PROJEKTOWE
kabina nieprzelotowa o wymiarach:
s-2400mm x g-1400mm x h-2150mm
drzwi teleskopowe dwupanelowe
s-1300mm x h-2000mm
data
01.2014
FUD
nr rys.
1/6
woj. mazowieckie
tel 236630612 fax 236630601
e-mail: [email protected] www.fud.net.pl
DRZWIOWY SZYBU
UWAGI:
2230
Wszystkie wymiary w ARCHITEKTURZE.
oleju w instalacji
Drzwi do maszynowni min 900x2000
60
70
posadzki maszynowni.
1310
620
300x400
1580
70
Opcjonalne
maszynowni
HOG 1600-T2/T2-N
WYTYCZNE PROJEKTOWE
kabina nieprzelotowa o wymiarach:
s-2400mm x g-1400mm x h-2150mm
drzwi teleskopowe dwupanelowe
s-1300mm x h-2000mm
data
01.2014
FUD
nr rys.
2/6
woj. mazowieckie
tel 236630612 fax 236630601
e-mail: [email protected] www.fud.net.pl
+10mm.
wentylacyjnego 1% przekroju poprzecznego szybu.
2230
nadszybie min 3400
UWAGI:
70
60
betonu zbrojonego.
HOG 1600-T2/T2-N
WYTYCZNE PROJEKTOWE
kabina nieprzelotowa o wymiarach:
s-2400mm x g-1400mm x h-2150mm
drzwi teleskopowe dwupanelowe
s-1300mm x h-2000mm
data
01.2014
60
70
max 1400
2230
60
70
podszybie
min 1400
max 2450
FUD Sp. z o.o.
8. Szyb i maszynownia s u wy acznie do pracy
d wigu. Inne urz dzenia, takie jak przewody
elektryczne, ruroci gi itp. nie nale ce do d wigu
nie mog by instalowane w szybie lub
maszynowni.
9. Doj cia do maszynowni min. 2m wysoko ci.
10. Powierzchnia pod ogi maszynowni powinna by
szorstka i zabezpieczona przed wsi kaniem oleju
hydraulicznego je li zostanie rozlany. W przypadku
zniszczenia zbiornika znajduj cy si w nim olej nie
powinien przedosta si poza maszynowni ani
wsi ka w ciany, co wymaga zabezpieczenia
cian i stosowania podwy szonego progu, co
najmniej do wysoko ci rozlanego oleju.
11. Pod oga maszynowni powinna przenie
obci enie min. 5kN/m.
1
ciany i sufit maszynowni powinny by
pomalowane farb olejn lub emulsyjn .
13. Drzwi do maszynowni (min 900x2000) musza
by wykonane z materia w ogniotrwa ych i
otwiera si na zewn trz. Drzwi powinny by
zamkni te i otwierane od wn trza bez u ycia
klucza z zewn trz tylko kluczem.
14. Wysoko maszynowni w najni szym punkcie
powinna wynosi min. 2 m.
15. Maszynownia powinna by wietrzona oraz tak
wyposa ona aby nie wyst powa y w niej: wilgo ,
kurz i szkodliwe wyziewy.
2230
pomieszczenia dostepne dla ludzi.
FUD
nr rys.
3/6
woj. mazowieckie
tel 236630612 fax 236630601
e-mail: [email protected] www.fud.net.pl
2300
490
Fy
P4
PT
2750
Pg
1475
1675
1845
Fx
1460
Fx
Fy
Fx
Fy
PT- max 69kN
P4- max 69kN
Pg- max 51kN
Fx- max 19kN
Fy- max 6kN
HOG 1600-T2/T2-N
WYTYCZNE PROJEKTOWE
kabina nieprzelotowa o wymiarach:
s-2400mm x g-1400mm x h-2150mm
drzwi teleskopowe dwupanelowe
s-1300mm x h-2000mm
data
01.2014
FUD
nr rys.
4/6
woj. mazowieckie
tel 236630612 fax 236630601
e-mail: [email protected] www.fud.net.pl
2300
100
710
powierzchnie wolne
2
2 kN/m
HOG 1600-T2/T2-N
WYTYCZNE PROJEKTOWE
kabina nieprzelotowa o wymiarach:
s-2400mm x g-1400mm x h-2150mm
drzwi teleskopowe dwupanelowe
s-1300mm x h-2000mm
data
01.2014
FUD
nr rys.
5/6
woj. mazowieckie
tel 236630612 fax 236630601
e-mail: [email protected] www.fud.net.pl
nadszybie min 3400
(wolny odcinek przewodu 2m)
620
maszynowni ~1700
500
RZUT SZYBU I MASZYNOWNI
1580
oprawy
2x36W
Listwa zaciskowa
tablicy sterowej
Tablica
dostarcza
Kaseta na kabinie
dostarcza FUD
Tablica
TOMS
dostarcza
NS
LS1
LS2 LS3
L1 L2 L3 N PE
Kasteta w podszybiu
dostarcza FUD
2
mm Cu
m/s
kW
L1, L2, L3
><
><
0,3m/s 14,7-18,4kW
16
0,4m/s 18,4-22kW
25
0,5m/s 22-29,4kW
25
0,62m/s 29,4-36,8kW
25
N
16
25
25
25
PE
16
25
25
25
A
><
C80
C80
C100
C100
HOG 1600-T2/T2-N
WYTYCZNE PROJEKTOWE
kabina nieprzelotowa o wymiarach:
s-2400mm x g-1400mm x h-2150mm
drzwi teleskopowe dwupanelowe
s-1300mm x h-2000mm
data
01.2014
500
Zabezpieczenie
Moc silnika
podszybie
min 1400
max 2450
rozstaw lamp
szybu dostarcza FUD
FUD
nr rys.
6/6
woj. mazowieckie
tel 236630612 fax 236630601
e-mail: [email protected] www.fud.net.pl