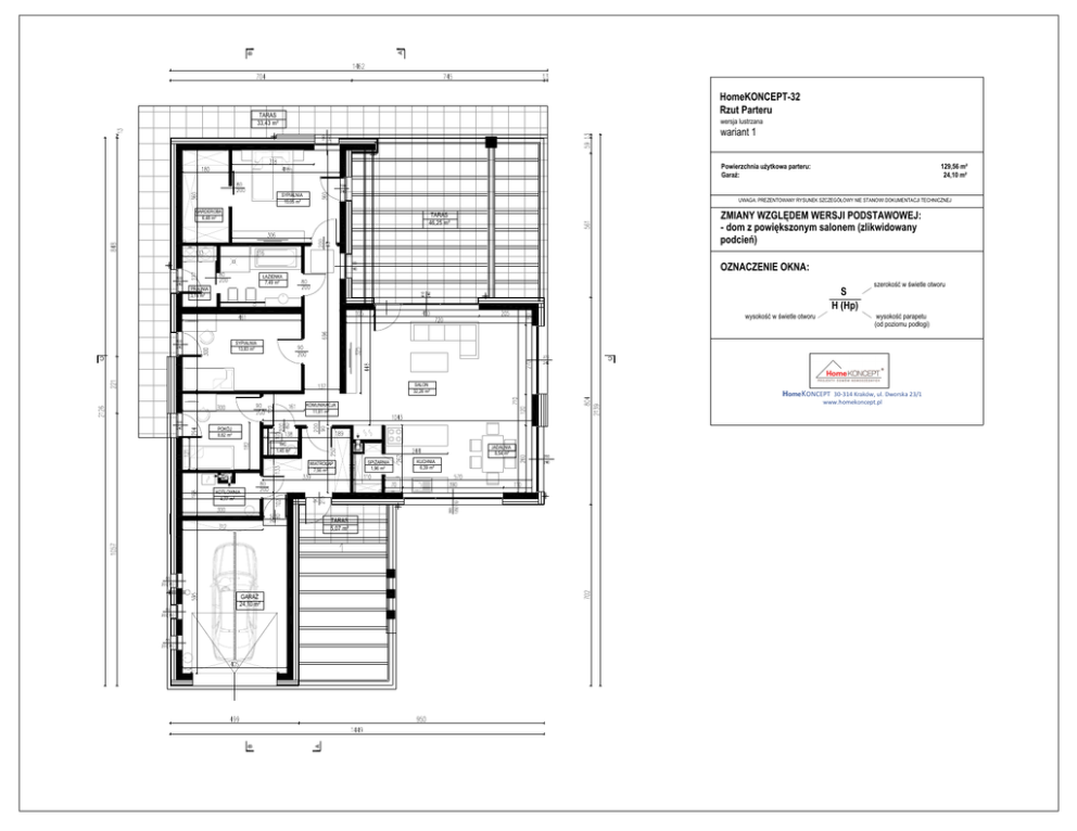
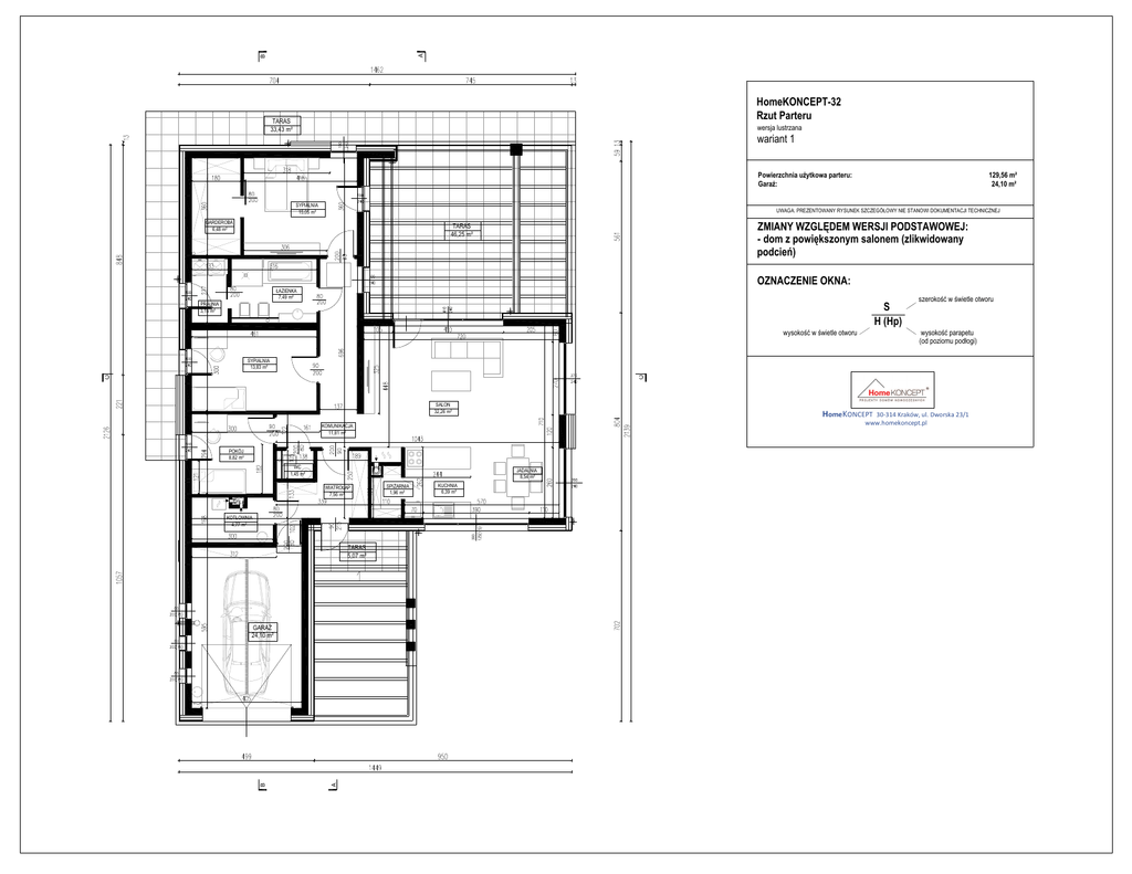
Wariant 1 - HomeKONCEPT

Transkrypt

Wariant 1 - HomeKONCEPT
A
B
HomeKONCEPT-32
Rzut Parteru
TARAS
33,43 m²
wersja lustrzana
wariant 1
Powierzchnia użytkowa parteru:
Garaż:
SYPIALNIA
15,05 m²
129,56 m²
24,10 m²
UWAGA: PREZENTOWANY RYSUNEK SZCZEGÓŁOWY NIE STANOWI DOKUMENTACJI TECHNICZNEJ
GARDEROBA
6,48 m²
ZMIANY WZGLĘDEM WERSJI PODSTAWOWEJ:
- dom z powiększonym salonem (zlikwidowany
podcień)
TARAS
46,25 m²
OZNACZENIE OKNA:
ŁAZIENKA
7,49 m²
PRALNIA
3,15 m²
S
H (Hp)
wysokość w świetle otworu
szerokość w świetle otworu
wysokość parapetu
(od poziomu podłogi)
SYPIALNIA
13,83 m²
C
C
SALON
32,26 m²
Home KONCEPT
30-314 Kraków, ul. Dworska 23/1
www.homekoncept.pl
KOMUNIKACJA
11,81 m²
POKÓJ
8,82 m²
WC
1,45 m²
JADALNIA
8,54 m²
WIATROŁAP
7,56 m²
KOTŁOWNIA
4,77 m²
TARAS
5,07 m²
A
B
GARAŻ
24,10 m²
SPIŻARNIA
1,96 m²
KUCHNIA
6,39 m²