dom zwężony o 0,8 m

Transkrypt

dom zwężony o 0,8 m
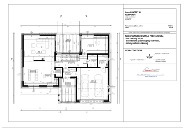
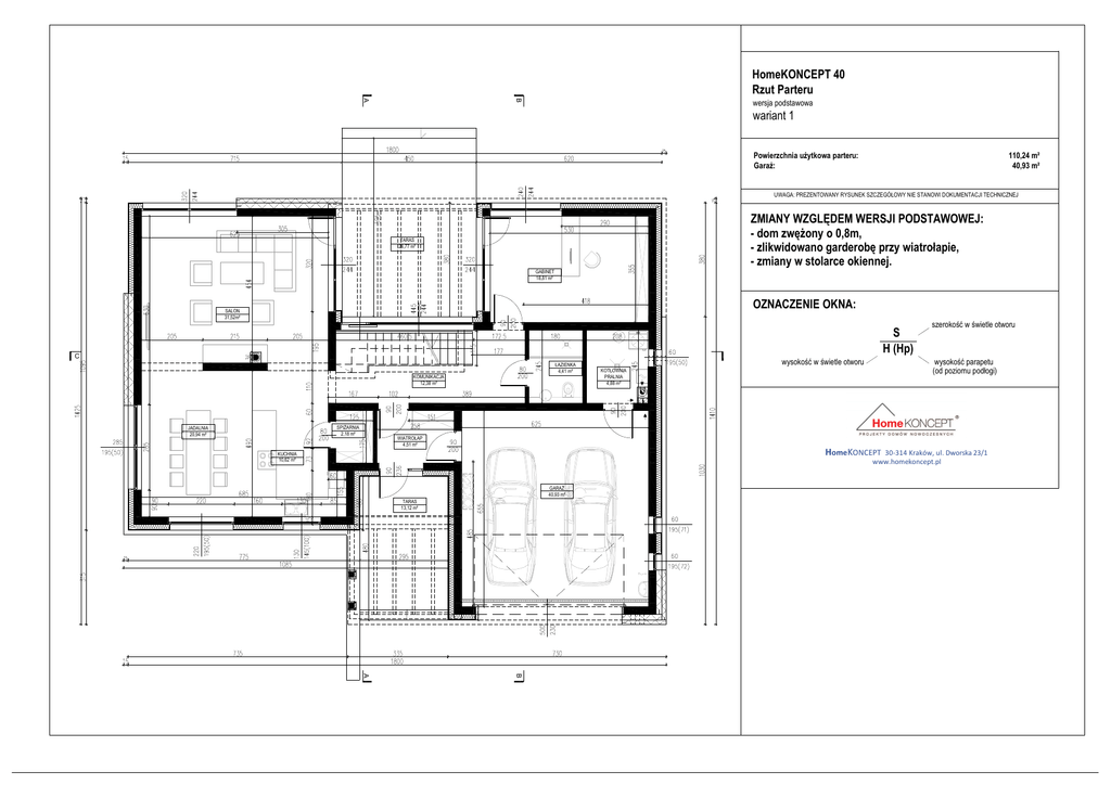
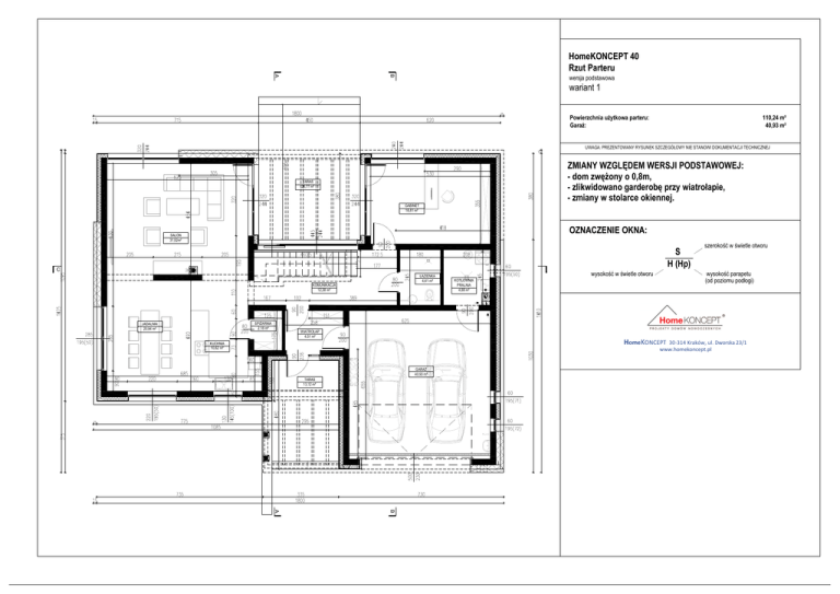
HomeKONCEPT 40
Rzut Parteru
B
A
wersja podstawowa
wariant 1
Powierzchnia użytkowa parteru:
Garaż:
110,24 m²
40,93 m²
UWAGA: PREZENTOWANY RYSUNEK SZCZEGÓŁOWY NIE STANOWI DOKUMENTACJI TECHNICZNEJ
ZMIANY WZGLĘDEM WERSJI PODSTAWOWEJ:
- dom zwężony o 0,8m,
- zlikwidowano garderobę przy wiatrołapie,
- zmiany w stolarce okiennej.
TARAS
26,77 m²
GABINET
18,81 m²
OZNACZENIE OKNA:
SALON
31,52m²
S
H (Hp)
C
ŁAZIENKA
4,41 m²
KOMUNIKACJA
12,38 m²
SPIŻARNIA
2,18 m²
JADALNIA
20,94 m²
wysokość w świetle otworu
szerokość w świetle otworu
wysokość parapetu
(od poziomu podłogi)
KOTŁOWNIA
PRALNIA
4,88 m²
WIATROŁAP
4,51 m²
HomeKONCEPT
30-314 Kraków, ul. Dworska 23/1
www.homekoncept.pl
KUCHNIA
10,62 m²
GARAŻ
40,93 m²
TARAS
13,12 m²
B
A
HomeKONCEPT 40
Rzut Piętra
wersja podstawowa
A
B
wariant 1
Powierzchnia użytkowa piętra:
Taras:
137,55 m²
16,57 m²
UWAGA: PREZENTOWANY RYSUNEK SZCZEGÓŁOWY NIE STANOWI DOKUMENTACJI TECHNICZNEJ
ZMIANY WZGLĘDEM WERSJI PODSTAWOWEJ:
- dom zwężony o 0,8m,
- zlikwidowano garderobę przy wiatrołapie,
- zmiany w stolarce okiennej.
TARAS
16,58 m²
GARDEROBA
5,66 m²
SYPIALNIA
16,89 m²
OZNACZENIE OKNA:
C
GARDEROBA
5,87 m²
S
H (Hp)
C
wysokość w świetle otworu
szerokość w świetle otworu
wysokość parapetu
(od poziomu podłogi)
KOMUNIKACJA
14,46 m²
SYPIALNIA
28,54 m²
ŁAZIENKA
10,72 m²
SYPIALNIA
17,59 m²
HomeKONCEPT
30-314 Kraków, ul. Dworska 23/1
www.homekoncept.pl
GABINET
10,91 m²
GARDEROBA
9,58 m²
ŁAZIENKA
17,33 m²
B
A