pl studio patryk żurawski chełmska 2

Transkrypt

pl studio patryk żurawski chełmska 2
Wszystkie prawa autorskie dotycz ce tego rysunku s w asno ci pracowni architektonicznej
PL Studio. Niniejszy rysunek jest wydany pod warunkiem i nie b dzie kopiowany, ani
udost pniany bez uzgodnienia z PL Studio. Nie nale y odmierza wymiar w z rysunku ani te
u ywa go jako szablonu. Przed przyst pieniem do prac budowlanych wszystkie wymiary
nale y sprawdzi w naturze. W przypadku stwierdzenia niezgodno ci nale y zwr ci si do
projektanta. W przypadku rozbie no ci wymiarowych pomi dzy rysunkami detali i ca o ci
projektowanego elementu podstaw wymiarowania s rysunki detali.
Rysunki rozpatrywa jednocze nie z opisami, specyfikacjami, projektami bran owymi oraz
u w a g a m i o p i s a n y m i w w / w d o k u m e n t a c j i .
2GZ.2
2PD.2
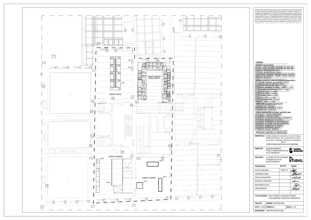
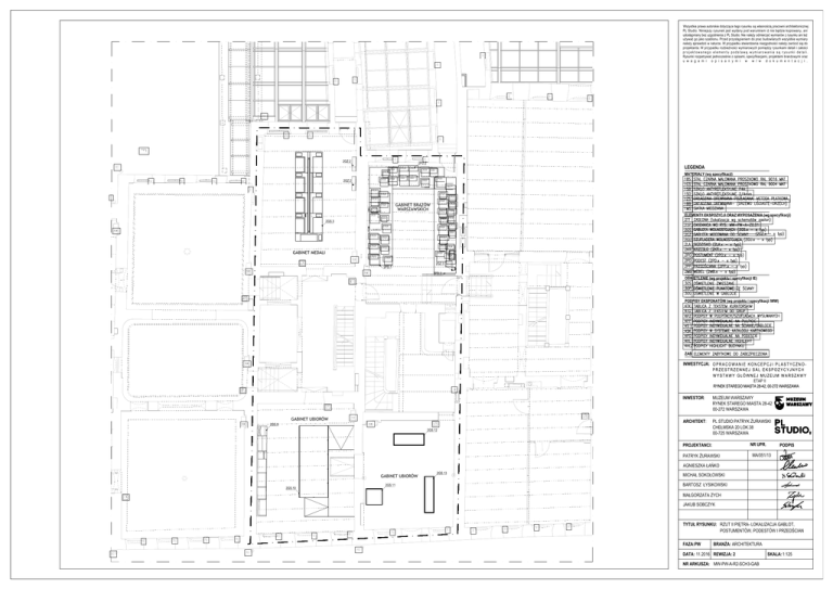
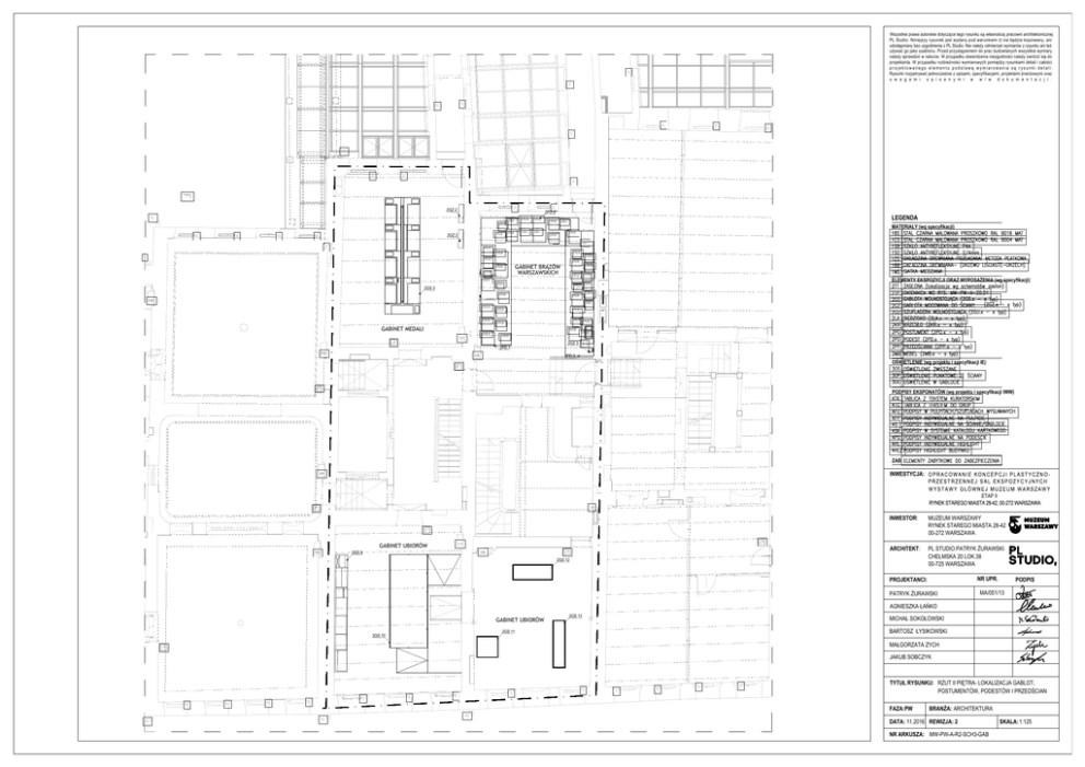
LEGENDA
MATERIAŁY (wg specyfikacji)
2GZ.2
GABINET BRĄZÓW
WARSZAWSKICH
PLAKIETA 1
ELEMENTY EKSPOZYCJI ORAZ WYPOSAŻENIA (wg specyfikacji)
2GS.3
PLAKIETA 2
GABINET MEDALI
2PD.1
2GZ.3
2PD.3
OŚWIETLENIE (wg projektu i specyfikacji IE)
PODPISY EKSPONATÓW (wg projektu i specyfikacji IWW)
ZAB
INWESTYCJA: OPRACOWANIE KONCEPCJI PLASTYCZNOPRZESTRZENNEJ SAL EKSPOZYCYJNYCH
ETAP II
WA
2R
7SZAW
-0A,24R
-S
Y
8TA
2N
R
E
A
K
S
G
M
TAO
I
INWESTOR:
GABINET UBIORÓW
MUZEUM WARSZAWY
RYNEK STAREGO MIASTA 28-42
00-272 WARSZAWA
ARCHITEKT:
2GS.9
2GS.12
00-725 WARSZAWA
NR UPR.
PROJEKTANCI:
PODPIS
MA/051/13
GABINET UBIORÓW
2GS.10
2GS.13
2GS.11
JAKUB SOBCZYK
TYTUŁ RYSUNKU:
FAZA:PW
BRANŻA: ARCHITEKTURA
DATA: 11.2016 REWIZJA: 2
NR ARKUSZA: MW-PW-A-R2-SCH3-GAB
SKALA: 1:125