min. 15 cm - Muzeum Warszawy

Transkrypt

min. 15 cm - Muzeum Warszawy
Wszystkie prawa autorskie dotyczące tego rysunku są wŁasnością pracowni architektonicznej
PL Studio. Niniejszy rysunek jest wydany pod warunkiem iŻ nie będzie kopiowany, ani
udostępniany bez uzgodnienia z PL Studio. Nie naleŻy odmierzać wymiarów z rysunku ani teŻ
uŻywać go jako szablonu. Przed przystąpieniem do prac budowlanych wszystkie wymiary
naleŻy sprawdzić w naturze. W przypadku stwierdzenia niezgodności naleŻy zwrócić się do
projektanta. W przypadku rozbieŻności wymiarowych pomiędzy rysunkami detali i caŁości
projektowanego elementu podstawą wymiarowania są rysunki detali.
Rysunki rozpatrywać jednocześnie z opisami, specyfikacjami, projektami branŻowymi oraz
u w a g a m i o p i s a n y m i w w / w d o k u m e n t a c j i .
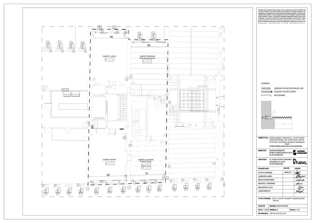
549
596
GABINET L.GOCLA
GABINET OPAKOWAŃ
FIRM WARSZAWSKICH
LEGENDA:
ZASŁONY KOLOR NATURALNY LEN
ZASŁONY KOLOR CZARNY
MOCOWANIE
min.
15 cm
*
INWESTYCJA: OPRACOWANIE KONCEPCJI PLASTYCZNOPRZESTRZENNEJ SAL EKSPOZYCYJNYCH
WYSTAWY GŁÓWNEJ MUZEUM WARSZAWY
ETAP II
WA
2R
7SZAW
-0A,24R
-S
Y
8TA
2N
R
E
A
K
S
G
M
TAO
I
GABINET RELIKWII
GABINET GALANTERII
PATRIOTYCZNEJ
INWESTOR:
MUZEUM WARSZAWY
RYNEK STAREGO MIASTA 28-42
00-272 WARSZAWA
ARCHITEKT:
PL STUDIO PATRYK ŻURAWSKI
CHEŁMSKA 20 LOK.38
00-725 WARSZAWA
NR UPR.
PROJEKTANCI:
632
571
PODPIS
MA/051/13
PATRYK ŻURAWSKI
AGNIESZKA ŁAŃKO
MICHAŁ SOKOŁOWSKI
BARTOSZ ŁYSIKOWSKI
MAŁGORZATA ZYCH
JAKUB SOBCZYK
RZUT 3. PIĘTRA- SCHEMAT ROZMIESZCZENIA
ZASŁON
FAZA:PW
ARCHITEKTURA
DATA: 11.2016 REWIZJA: 2
NR ARKUSZA: MW-PW-A-R3-SCH-ZAS
SKALA: 1:125