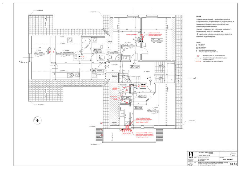
poddasze

Transkrypt

poddasze
rura spustowa
rura spustowa
UWAGA:
- Nie wyklucza się występowania w istniejącej tkance budowlanej
ok. 30o=57,7%
rozwiązań materiałowo-gabarytowych innych niż przyjęte w projekcie. W
330
368
106
przebicie 14x14
665
531
przestrzeń
niedostępna
pow.podłogi = 12,82m2
pow.podłogi = 18,48m2
A
pokój
5.3
15,43 m2 panele drewniane
1
pow.podłogi = 19,35m2
1
K
LEGENDA:
K
-piec kuchenny
Pz -piec kaflowy
ŻAR -piec bezkanałowy
COW -kocioł węglowy
G
-gazowy podgrzewacz wody przepływowej
E
-elektryczny podgrzewacz wody przepływowej
ŻAR
pow.podłogi= 15,23m
5.2 łazienka
3,62 m2 pł. ceram.
ŻAR
1
1
ELEMENTY BUDOWLANE DO ZDEMONTOWANIA
0
E
1
345
FRAGMENTY ISTNIEJĄCYCH ŚCIAN DO WYBURZENIA
(PRZEBICIA, OTWORY)
ZAMUROWANIA ISTNIEJĄCYCH OTWORÓW
1
300
deski
112
hpom=242cm
przestrzeń
niedostępna
2965
+2,88
zalecany
wentylator
wyciągowy
ok. 30o=57,7%
55
wm
wm
ŻAR
116
likwidacja otworu
wentylacyjnego
w stropie
210
244
0
4.2
łazienka
2,93 m2 płytki ceram.
1
79
A
176
108
4.1 komunikacja
5,32 m2 płytki ceram.
E
200
rura spustowa
261
297
h= 204cm
4.4 kuchnia
3,24 m2 płytki ceram.
124
10
przestrzeń
niedostępna
hpom= 227cm
pokój
4.3
17,26 m2 panele drewniane
pow.podłogi = 23,57m2
UWAGA: W przypadku zaistnienia
takiej konieczności należy skorygować
gabaryty i położenie istniejących
otworów i kanałów w ścianie
rura spustowa
38
0
-1
-1
1
1
1
120
N
6x20,9
24,1
h= 190cm
pow.podłogi= 6,93m2
163
18,43 m2
517
231
130
hpom= 229cm
komunikacja
6.1
3,93 m2 panele drewniane
8x20,4
25,6
3.2 komunikacja
1325
78
hpom=228,5cm
h= 190cm
fundamentów przyjęto hipotetycznie.
E
pok. dzienny z aneksem kuch.
11,54 m2
panele drewniane
- Ze względu na brak możliwości sprawdzenia, poziom posadowienia
2185
6.3
0
13x20,5
25
0
6.2 łazienka
5,30 m2 płytki ceram.
pow.podłogi= 7,56m2
293
Dopuszczalny błąd zawiera się w granicach +/- 3cm.
2
191
sypialnia
8,01 m2 panele drewniane
hpom= 228cm
kuchnia
13,44 m2 panele drewniane
W
282
330
6.4
51
hpom= 227cm
- Wszystkie wymiary dotyczą stanu wykończonego ( z okładzinami ).
przebicie do komina 14x14
adaptacja istniejącego przewodu
na potrzeby wentylacji kuchni
hpom= 238,5cm
5.1
28
29
1
h= 43cm
213
kontaktować się z autorem opracowania.
224
25
h= 190cm
h= 190cm
246
h= 190cm
razie wątpliwości lub stwierdzenia istotnych rozbieżności należy
21 2
rura spustowa
0
ok. 2,8o=5%
0
0 0 1 1 0
25 25 25 25
przewody kominowe Ø150 : dwuścienny
system kominowy (ze stali nierdzewnej z
izolacją z wełny mineralnej) mocowany do
istniejącej ściany szczytowej
rura spustowa
Prawa autorskie zastrzeżone. Projektant zastrzega sobie prawo wprowadzania zmian. Wykorzystywanie, kopiowanie i rozpowszechnianie dokumentacji bez zgody autora zabronione.
BRANŻA:
Projektant:
mgr inż. arch. Sławomir BONDEK
Architektura
upr. nr 79/2001
Opracowali:
Archidea
Inwestor:
PRACOWNIA
ARCHITEKTONICZNA
"ARCHIDEA" S.C.
S.BONDEK M.GALUK
ul.Armii Krajowej 33A/1 Temat:
44-120 PYSKOWICE
[email protected]
tel. 032 - 233 81 29
www.abig.pl
DATA:
inż. arch. Mariusz GALUK
Wspólnota mieszkaniowa
ul. Tarnogórska 105-105a
44-100 Gliwice
06.2012
Nazwa rysunku:
RZUT PODDASZA
Projekt izolacji pionowej przeciwilgociowej, uporządkowania i dobudowy
(montażu) przewodów kominowych w budynku mieszkalnym
44-100 Gliwice, ul. Tarnogórska 105-105a
SKALA:
Nr rys.
1:50 P-03