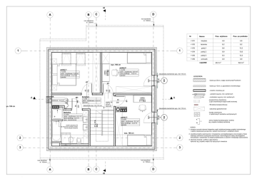
Poddasze

Transkrypt

Poddasze
B
A
B
C
D
rura spustowa
śr. 100mm
rura spustowa
śr. 100mm
Nr
1
1
Nazwa
Pow. użytkowa
Pow. po podłodze
+1/01
korytarz
4,6
4,6
+1/02
łazienka
6,2
8,2
+1/03
pokój 1
9,6
13,2
+1/04
pokój 2
9,9
13,6
+1/05
pokój 3
9,3
12,3
+1/06
schowek
0,9
0,9
ŁĄCZNIE
40,5 m2
52,8 m2
wys. 190 cm
pokój 2
+1/04
pow. użytkowa: 9,9 m 2
pow.podłogi: 13,6 m
panele
balustrada zewnetrzna wys. min 110 cm
LEGENDA:
90
hp 0
+1/03
pow. użytkowa: 9,6 m2
pow.podłogi: 13,2 m
panele
d1
235
d1
O3
pokój 1
-ściany gr 25cm z cegły ceramicznej Porotherm
200
80
80
200
-ściany gr 12cm z z gazobetonu komórkowego
- ścianki i obudowy g-k
- grzejniki wg proj. inst. sanitarnych
wys. 190 cm
0 0 +1
korytarz
RG
A
+1/01
pow. użytkowa: 4,6 m2
panele
80
wyłaz na
strych
60x120
balustrada wys. min 110 cm
200
-TB-tablica bezpiecznikowa
balustrada zewnetrzna wys. min 110 cm
0 0
-zabudowy gipskartonowe
0
łazienka
17 x 17,6
28,2
+1/05
pow. użytkowa: 9,3 m2
pow.podłogi: 12,0 m
panele
ścianki zabudowy Gk
wg wytycznych projektu wnętrz
lub do decyzji inwestora
90
hp 0
pokój 3
235
O3
-kanały ceramiczne
z systemowych pustaków wentylowanych
+1/02
pow. użytkowa: 6,2 m2
pow.podłogi: 8,2 m
pos. ceramiczna
K
W
2
2
3
3
rura spustowa
śr. 100mm
rura spustowa
śr. 100mm
C
D
B
B
-piony instalcji kanalizacyjnej i wodnej
wg. projektu instalacji sanitarnej
UWAGI:
1. niniejszy rysunek stanowi integralną część wielobranżowego projektu budowlanego
i należy rozpatrywać go łącznie z opisem technicznym i projektami branż
wys. 190 cm
A
- rozdzielacz wg proj. inst. sanitarnych
-powierzchnia utwardzona
z płyt chodnikowych bądź kostki brukowej
d1
dł1
80
+1/06
pow. użytkowa: 0,9 m2 85
panele
206
dł1
schowek
200
A
2. wszelkie projekty wykonawcze i rozwiązania uszczegóławiające oraz przyjęte w fazie
realizacji zamienne rozwiązania techniczne i technologiczne należy bezwzględnie
konsultować i zatwierdzić na etapie projektowania z autorem niniejszego opracowania
3. elementy ścianek i sufitów z gips-kartonu
wykonać wg. projektu wnętrz lub wytycznych inwestora