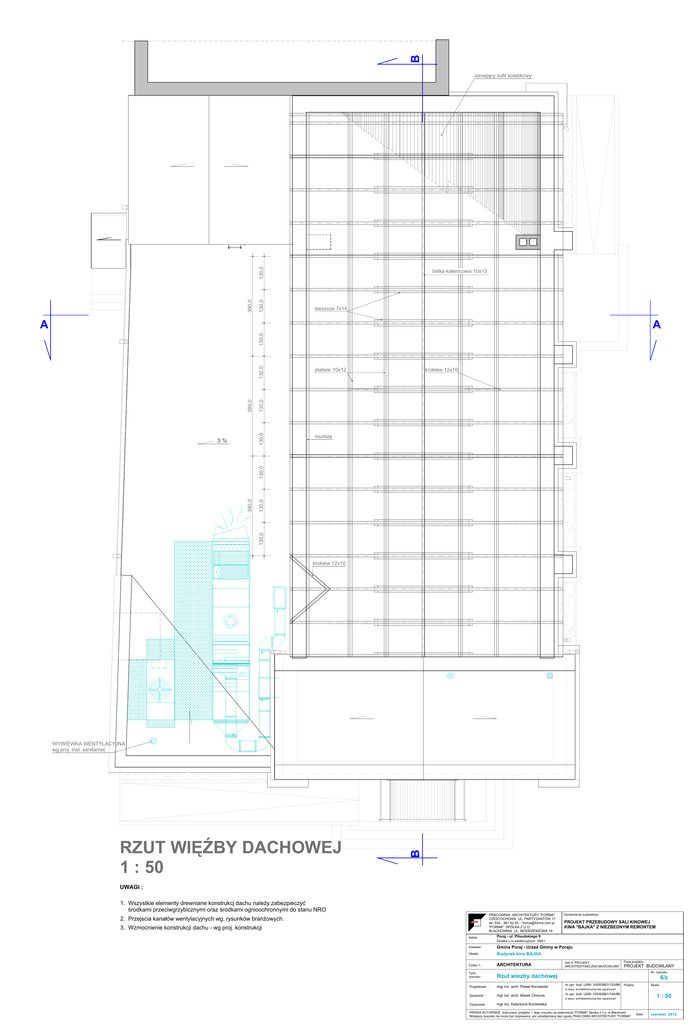
rzut więźby dachowej 1 : 50 - BIP

Transkrypt

rzut więźby dachowej 1 : 50 - BIP
B
130,0
390,0
130,0
istniejący sufit kolebkowy
belka kalenicowa 10x13
kleszcze 7x14
A
krokiew 12x10
murłata
130,0
130,0
390,0
130,0
3%
płatwie 10x12
130,0
130,0
390,0
130,0
130,0
A
krokiew 12x10
RZUT WIĘŹBY DACHOWEJ
1 : 50
B
WYWIEWKA WENTYLACYJNA
wg proj. inst. sanitarnej
UWAGI :
1. Wszystkie elementy drewniane konstrukcj dachu należy zabezpieczyć
środkami przeciwgrzybicznymi oraz środkami ognioochronnymi do stanu NRO
PRACOWNIA ARCHITEKTURY "FORMA"
CZESTOCHOWA UL. PARTYZANTÓW 17
tel. 034 - 361 42 45 ; [email protected]
"FORMA" SPÓLKA Z O.O.
BLACHOWNIA UL. MODRZEWIOWA 19
2. Przejscia kanałów wentylacyjnych wg. rysunków branżowych.
3. Wzmocnienie konstrukcji dachu - wg proj. konstrukcji
Adres:
Zamierzenie budowlane:
PROJEKT PRZEBUDOWY SALI KINOWEJ
KINA "BAJKA" Z NIEZBEDNYM REMONTEM
Poraj - ul. Pilsudskiego 9
Dzialka o nr.ewidencyjnym: 560/1
Inwestor:
Gmina Poraj - Urzad Gminy w Poraju
Obiekt:
Budynek kina BAJKA
Czêsc 1:
ARCHITEKTURA
Tytul
rysunku:
Rzut wiezby dachowej
Projektowal :
mgr inz. arch. Pawel Korzewski
Sprawdzil :
mgr inz. arch. Marek Chmura
tom II. PROJEKT
ARCHITEKTONICZNO-BUDOWLANY
Faza projektu:
PROJEKT BUDOWLANY
Nr. rysunku
6/z
nr upr. bud. UAN- VIII/83861/103/86
Skala
Podpis:
w specj. architektonicznej bez ograniczeñ
nr upr. bud. UAN- VIII/83861/104/86
1 : 50
w specj. architektonicznej bez ograniczeñ
Opracowal :
mgr inz. Katarzyna Korzewska
PRAWA AUTORSKIE dotyczace projektu i tego rysunku sa wlasnoscia "FORMA" Spolka z o.o. w Blachowni
Niniejszy rysunek nie moze byc kopiowany ani udostêpniany bez zgody PRACOWNI ARCHITEKTURY "FORMA"
Data:
czerwiec 2012.