rys nr 8 - BIP Gmina Kamienna Góra

Transkrypt

rys nr 8 - BIP Gmina Kamienna Góra
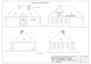
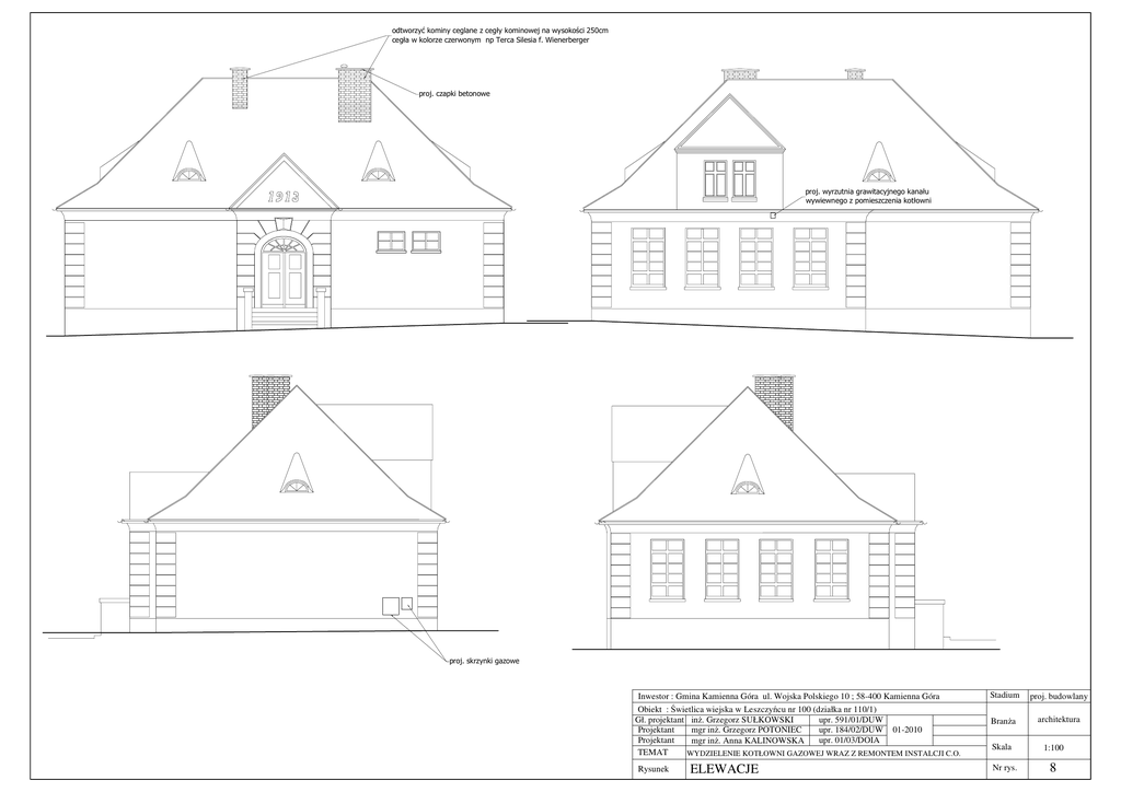
odtworzyć kominy ceglane z cegły kominowej na wysokości 250cm
cegła w kolorze czerwonym np Terca Silesia f. Wienerberger
proj. czapki betonowe
proj. wyrzutnia grawitacyjnego kanału
wywiewnego z pomieszczenia kotłowni
proj. skrzynki gazowe
Inwestor : Gmina Kamienna Góra ul. Wojska Polskiego 10 ; 58-400 Kamienna Góra
Obiekt : Świetlica wiejska w Leszczyńcu nr 100 (działka nr 110/1)
Gł. projektant inŜ. Grzegorz SUŁKOWSKI
upr. 591/01/DUW
Projektant
mgr inŜ. Grzegorz POTONIEC
upr. 184/02/DUW 01-2010
Projektant
upr. 01/03/DOIA
mgr inŜ. Anna KALINOWSKA
TEMAT
WYDZIELENIE KOTŁOWNI GAZOWEJ WRAZ Z REMONTEM INSTALCJI C.O.
Rysunek
ELEWACJE
Stadium
proj. budowlany
BranŜa
architektura
Skala
Nr rys.
1:100
8