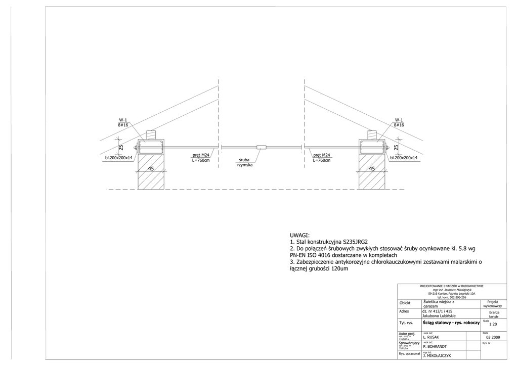
UWAGI: 1. Stal konstrukcyjna S235JRG2 2. Do połączeń śrubowych

Transkrypt

UWAGI: 1. Stal konstrukcyjna S235JRG2 2. Do połączeń śrubowych
W-1
8#16
25
25
W-1
8#16
pr t M24
L=760cm
bl.200x200x14
45
ruba
rzymska
pr t M24
L=760cm
bl.200x200x14
45
UWAGI:
1. Stal konstrukcyjna S235JRG2
2. Do po cze rubowych zwyk ych stosowa ruby ocynkowane kl. 5.8 wg
PN-EN ISO 4016 dostarczane w kompletach
3. Zabezpieczenie antykorozyjne chlorokauczukowymi zestawami malarskimi o
cznej grubo ci 120um
PROJEKTOWANIE I NADZÓR W BUDOWNICTWIE
mgr in . Jaros aw Miko ajczyk
59-216 Kunice, P tnów Legnicki 10A
tel. kom. 502-296-226
Obiekt
Adres
Tyt. rys.
Autor proj.
wietlica wiejska z
gara em
dz. nr 412/1 i 415
Jakubowo Lubi skie
ci g stalowy - rys. roboczy
MGR IN .
upr. proj. nr
110/84/Lw
L. RUSAK
Sprawdzaj cy
MGR IN .
upr. proj. nr
35/81/Lw
P. BOHRANDT
Rys. opracowa
mgr in .
J. MIKO AJCZYK
Projekt
wykonawczy
Bran a
konstr.
Skala
1:20
Data
03 2009
Rys. nr

Podobne dokumenty