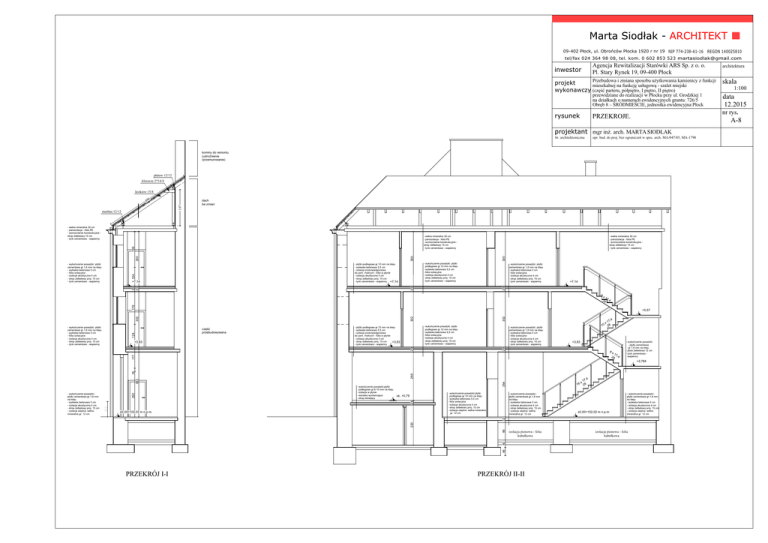
A-8 PROJEKT wykonawczy arch - ARS Sp. z oo

Transkrypt

A-8 PROJEKT wykonawczy arch - ARS Sp. z oo
Marta Siodłak - ARCHITEKT
09-402 Płock, ul. Obrońców Płocka 1920 r nr 19 NIP 774-238-61-16 REGON 140025810
tel/fax 024 364 98 08, tel. kom. 0 602 853 523 [email protected]
inwestor
Agencja Rewitalizacji Starówki ARS Sp. z o. o.
Pl. Stary Rynek 19, 09-400 Płock
Przebudowa i zmiana sposobu użytkowania kamienicy z funkcji
projekt
mieszkalnej na funkcję usługową - szalet miejski
wykonawczy (część parteru, półpiętro, I piętro, II piętro)
przewidziane do realizacji w Płocku przy ul. Grodzkiej 1
na działkach o numerach ewidencyjnych gruntu: 726/5
Obręb 8 – ŚRÓDMIEŚCIE, jednostka ewidencyjna:Płock
rysunek
A-8
upr. bud. do proj. bez ograniczeń w spec. arch. MA/047/05, MA-1798
kominy do remontu
(udrożnienie
/przemurowanie)
płatew 12/12
kleszcze 2*14/4
krokiew 15/8
0
197
49
murłata 12/12
dach
be zmian
- wełna mineralna 30 cm
- paroizolacja - folia PE
- wzmocnienie konstrukcyjne strop żelbetowy 15 cm
- tynk cementowo - wapienny
300
- wykończenie posadzki: płytki
podłogowe gr.10 mm na kleju
- wylewka betonowa 5,5 cm
- folia izolacyjna
- izolacja akustyczna 4 cm
- strop żelbetowy proj. 15 cm
- tynk cementowo - wapienny
29
28
29
+7,14
- wykończenie posadzki: płytki
cementowe gr.1,8 mm na kleju
- wylewka betonowa 5 cm
- folia izolacyjna
- izolacja akustyczna 4 cm
- strop żelbetowy proj. 15 cm
- tynk cementowo - wapienny
+7,14
29
- płytki podłogowe gr.10 mm na kleju
- wylewka betonowa 5,5 cm
- izolacja przeciwwilgociowa
do pom. mokrych - folia w płynie
- izolacja akustyczna 4 cm
- strop żelbetowy proj. 15 cm
- tynk cementowo - wapienny +7,14
104
- wykończenie posadzki: płytki
cementowe gr.1,8 mm na kleju
- wylewka betonowa 5 cm
- folia izolacyjna
- izolacja akustyczna 4 cm
- strop żelbetowy proj. 15 cm
- tynk cementowo - wapienny
- wełna mineralna 30 cm
- paroizolacja - folia PE
- wzmocnienie konstrukcyjne strop żelbetowy 15 cm
- tynk cementowo - wapienny
300
300
196
- wełna mineralna 30 cm
- paroizolacja - folia PE
- wzmocnienie konstrukcyjne strop żelbetowy 15 cm
- tynk cementowo - wapienny
9x
179
17
28 ,4
- wykończenie posadzki: płytki
podłogowe gr.10 mm na kleju
- wylewka betonowa 5,5 cm
- folia izolacyjna
- izolacja akustyczna 4 cm
- strop żelbetowy proj. 15 cm
- tynk cementowo - wapienny
- wykończenie posadzki: płytki
cementowe gr.1,8 mm na kleju
- wylewka betonowa 5 cm
- folia izolacyjna
- izolacja akustyczna 4 cm
- strop żelbetowy proj. 15 cm
- tynk cementowo - wapienny
29
- płytki podłogowe gr.10 mm na kleju
- wylewka betonowa 5,5 cm
- izolacja przeciwwilgociowa
do pom. mokrych - folia w płynie
- izolacja akustyczna 4 cm
- strop żelbetowy proj. 15 cm
+3,83
- tynk cementowo - wapienny
7,4
x1
10 28
+3,83
29
część
przebudowywana
+3,83
302
302
302
+5,57
124
- wykończenie posadzki: płytki
cementowe gr.1,8 mm na kleju
- wylewka betonowa 5 cm
- folia izolacyjna
- izolacja akustyczna 4 cm
- strop żelbetowy proj. 15 cm
- tynk cementowo - wapienny
6x
117
17
28 ,4
265
16
7,4
x1
16 28
354
383
ok. +0,79
24
250
- wykończenie posadzki::
płytki cementowe gr.1,8 mm
na kleju
- wylewka betonowa 5 cm
- izolacja akustyczna 4 cm
- strop żelbetowy proj. 15 cm
- izolacja xieplna: wełna
mineralna gr. 12 cm
±0,00=102,02 m n.p.m.
- wykończenie posadzki::
płytki cementowe gr.1,8 mm
na kleju
- wylewka betonowa 5 cm
- izolacja akustyczna 4 cm
- strop żelbetowy proj. 15 cm
- izolacja xieplna: wełna
mineralna gr. 12 cm
32
±0,00=102,02 m n.p.m.
- wykończenie posadzki:płytki
podłogowe gr.10 mm na kleju
- wylewka betonowa 5,5 cm
- folia izolacyjna
- izolacja akustyczna 4 cm
- strop żelbetowy proj. 15 cm
- izolacja cieplna: wełna mineralna
gr. 12 cm
izolacja pionowa - folia
kubełkowa
45
40
95
220
83
- wykończenie posadzki::
płytki cementowe gr.1,8 mm
na kleju
- wylewka betonowa 5 cm
- izolacja akustyczna 4 cm
- strop żelbetowy proj. 15 cm
- izolacja xieplna: wełna
mineralna gr. 12 cm
- wykończenie posadzki
- płytki cementowe
gr.1,8 mm na kleju
- płyta żelbetowa 12 cm
- tynk cementowo wapienny
+2,784
- wykończenie posadzki:płytki
podłogowe gr.8-10 mm na kleju
- izolacja w płynie
- warstwa wyrównująca
- strop istniejący
PRZEKRÓJ I-I
PRZEKRÓJ II-II
izolacja pionowa - folia
kubełkowa
skala
1:100
1:500
data
12.2015
nr rys.
PRZEKROJE.
projektant mgr inż. arch. MARTA SIODŁAK
br. architektoniczna
architektura