P1.M091 49.41 m²
Transkrypt
										P1.M091 49.41 m²
                                        
                                        
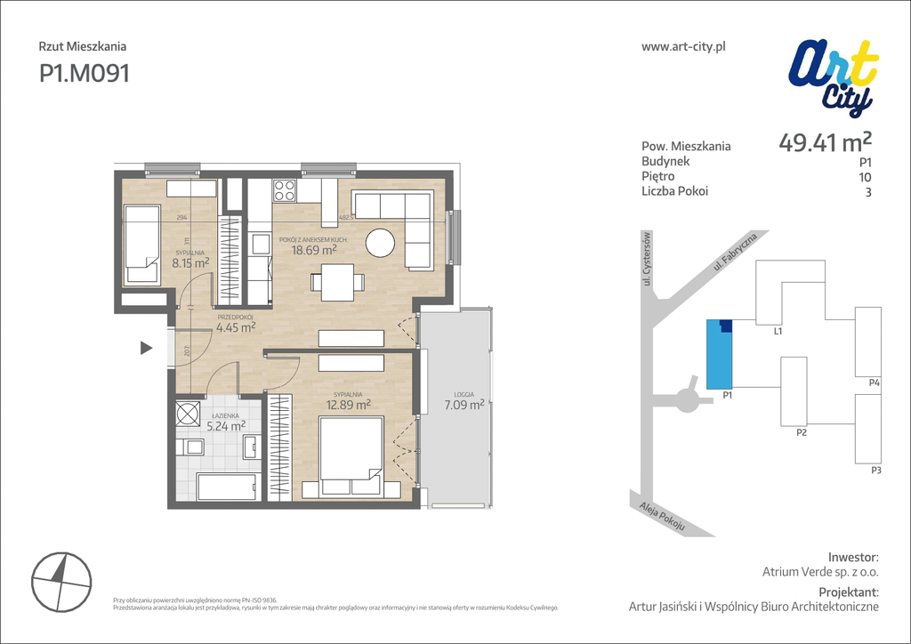
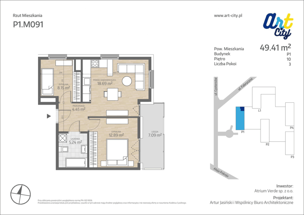
                                Rzut Mieszkania www.art-city.pl P1.M091 49.41 m² Pow. Mieszkania Budynek Piętro Liczba Pokoi 482.5 ul. Cystersów 294 P1 10 3 311 POKÓJ Z ANEKSEM KUCH. 18.69 m² SYPIALNIA 8.15 m² ul .F a zn yc br a PRZEDPOKÓJ 4.45 m² 207 L1 P4 SYPIALNIA 12.89 m² P1 LOGGIA 7.09 m² ŁAZIENKA 5.24 m² P2 P3 A le ja P ok o ju Inwestor: Atrium Verde sp. z o.o. Przy obliczaniu powierzchni uwzględniono normę PN-ISO 9836. Przedstawiona aranżacja lokalu jest przykładowa, rysunki w tym zakresie mają chrakter poglądowy oraz informacyjny i nie stanowią oferty w rozumieniu Kodeksu Cywilnego. Projektant: Artur Jasiński i Wspólnicy Biuro Architektoniczne