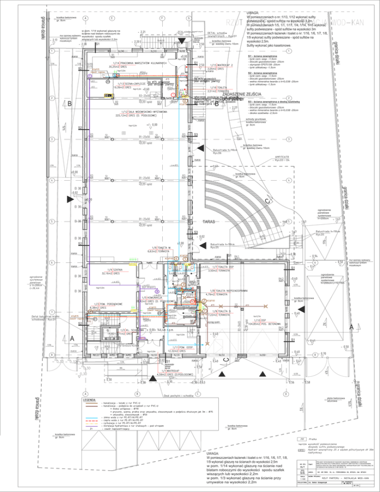
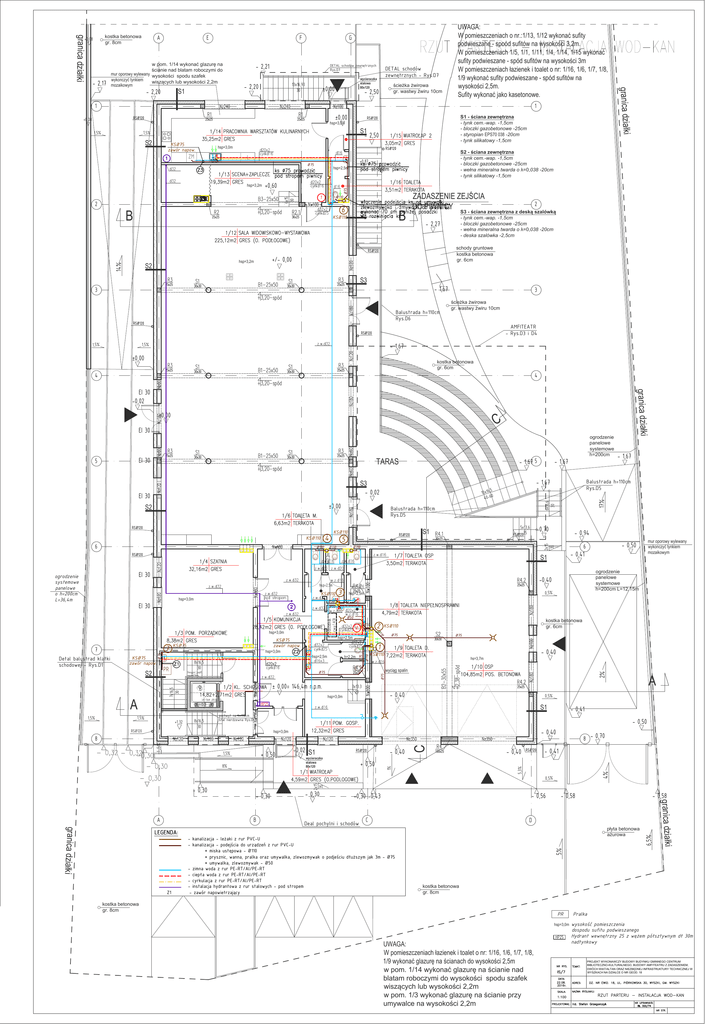
Rzut parteru wod-kan

Transkrypt

Rzut parteru wod-kan
granica działki
kostka betonowa
gr. 8cm
+0,08
- 2,17
A
E
F
- 2,21
13x16,90
30
- 2,20
S1
- 2,20
DETAL schodów zewnętrznych
Rys.D7
DETAL schodów
zewnętrznych - Rys.D7
wycieraczka
stalowa
80x120
±0,00
ścieżka żwirowa
gr. wastwy żwiru 10cm
- 2,50
1
1
±0,00
RSØ120
+0,08
S1 - ściana zewnętrzna
- tynk cem.-wap. -1,5cm
- bloczki gazobetonowe -25cm
- styropian EPS70 038 -20cm
- tynk silikatowy -1,5cm
RSØ120
hsp=3,0m
S1
1,5%
1,5%
- 2,50
S2
KSØ75
zawór napow.
hsp=3,0m
ZM
1
RSØ120
L
1
2
-1
-1
-1
-1
+0,26
hsp=2,5m
Ø75
+0,60
1
4x15
30
hsp=3,2m
S2 - ściana zewnętrzna
- tynk cem.-wap. -1,5cm
- bloczki gazobetonowe -25cm
- wełna mineralna twarda o λ=0,038 -20cm
- tynk silikatowy -1,5cm
+0,87
Ø75
Ø110
6
B
B
S1
KSØ110
ZADASZENIE ZEJŚCIA
DO PIWNICY
schody gruntowe
kostka betonowa
gr. 6cm
14%
+/- 0,00
hsp=3,2m
2
S3 - ściana zewnętrzna z deską szalówką
- tynk cem.-wap. -1,5cm
- bloczki gazobetonowe -25cm
- wełna mineralna twarda o λ=0,038 -20cm
- deska szalówka -2,5cm
- 2,27
RSØ120
S2
granica działki
w pom. 1/14 wykonać glazurę na
ścianie nad blatam roboczymi do
mur oporowy wylewany wysokości spodu szafek
wykonczyć tynkiem
wiszących lub wysokości 2,2m
mozaikowym
G
UWAGA:
W pomieszczeniach o nr.:1/13, 1/12 wykonać sufity
podwieszane - spoód sufitów na wysokości 3,2m.
W pomieszczeniach 1/5, 1/1, 1/11, 1/4, 1/14, 1/15 wykonać
sufity podwieszane - spód sufitów na wysokości 3m
W pomieszczeniach łazienek i toalet o nr: 1/16, 1/6, 1/7, 1/8,
1/9 wykonać sufity podwieszane - spód sufitów na
wysokości 2,5m.
Sufity wykonać jako kasetonowe.
S3
- 1,67
3
Balustrada h=110cm
Rys.D6
RSØ120
3
ścieżka żwirowa
gr. wastwy żwiru 10cm
AMFITEATR
- Rys.D3 i D4
RSØ120
1,5%
1,5%
- 1,67
±0,00
kostka betonowa
gr. 6cm
4
4
granica działki
EI 30
-0,02
±0,00
C
EI 30
ogrodzenie
panelowe
systemowe
h=200cm
EI 30
- 1,67 5
TARAS
- 1,67
S3
KSØ110
4
Ø110
-0,70
RSØ12035
Ø110
Ø110
h=2,2m
RSØ120
5
5x13,6
S1
KSØ110
hsp=3,0m
3
0,5%
hsp=2,5m
Ø50
hsp=3,0m
hsp=2,5m
- 0,40
hs=3,7m
wyciąg spalin
Ø75
± 0,00= 146,4m n.p.m.
7x16,5
30
Ø75
KSØ110
Ø75
sterowanie i zespół
napędowy windy
3x13.3
28
- 0,40
hsp=3,0m
A
0,5%
HP25
1,5%
+1,32
RSØ120
8x16,5
30
S1
- 0,41
pochwyt na h=110cm
stal nierdzewna Rys.D1
- 0,50
- 0,40
hsp=3,0m
8%
-0,02 S1
RSØ120
wycieraczka
stalowa
80x120
+ 0,50
- 0,40
- 0,40
RSØ120
8 - 0,70
- 0,41
5,3%
+ 0,50
1%
1,5%
C
8
B
granica działki
LEGENDA:
Z1
- 0,30
- 0,56
-0,30 -0,43
Deal pochylni i schodów
wejścia głównego
Rys.D2
C
- 0,58
- 0,58
D
- kanalizacja - leżaki z rur PVC-U
- kanalizacja - podejścia do urządzeń z rur PVC-U
* miska ustępowa - Ø110
* prysznic, wanna, pralka oraz umywalka, zlewozmywak o podjeściu dłuższym jak 3m - Ø75
* umywalka, zlewozmywak - Ø50
- zimna woda z rur PE-RT/Al/PE-RT
- ciepła woda z rur PE-RT/Al/PE-RT
- cyrkulacja z rur PE-RT/Al/PE-RT
- instalacja hydrantowa z rur stalowych - pod stropem
- zawór napowietrzający
płyta betonowa
ażurowa
5%
- 0,30
granica działki
A
2x15
35
0,5%
- 0,30
A
6,5%
1,5%
h=2,2m
8x16,5
30
PR
S2
Ø75
Ø110
KSØ75
zawór napow.
Ø75
1
hsp=3,0m
Ø75
Detal balustrad klatki
schodowej - Rys.D1
kostka betonowa
gr. 6cm
KSØ110
2%
KSØ75
7
7
hsp=2,5m
2
10
Ø1
Ø50
Ø110
2
KSØ75
zawór napow.
ogrodzenie
panelowe
systemowe
h=200cm L=12,15m
Ø50
Ø50
Ø50
EI 30
- 0,41
-0,40
hsp=2,5m
mur oporowy wylewany
wykonczyć tynkiem
mozaikowym
- 0,50
6
S1
EI 30
ogrodzenie
systemowe
panelowe
o h=200cm
L=36,4m
- 0,94
2x15
35
6
RSØ120
17%
Balustrada h=110cm
Rys.D5
RSØ120
KSØ110
6x16,6
30
±0,00
S2
- 1,67
Balustrada h=110cm
Rys.D5
,5
10x16
0
4 60
- 0,02
EI 30
- 1,67
4%
5
kostka betonowa
gr. 8cm
kostka betonowa
gr. 8cm
PR
hsp=3,0m
HP25
UWAGA:
W pomieszczeniach łazienek i toalet o nr: 1/16, 1/6, 1/7, 1/8,
1/9 wykonać glazurę na ścianach do wysokości 2,5m
w pom. 1/14 wykonać glazurę na ścianie nad
blatam roboczymi do wysokości spodu szafek
wiszących lub wysokości 2,2m
w pom. 1/3 wykonać glazurę na ścianie przy
umywalce na wysokości 2,2m
Pralka
wysokość pomieszczenia
dospodu sufitu podwieszanego
Hydrant wewnętrzny 25 z wężem półsztywnym dł 30m
nadtynkowy
PROJEKT WYKONAWCZY BUDOWY BUDYNKU GMINNEGO CENTRUM
BIBLIOTECZNO-KULTURALNEGO, BUDOWY AMFITEATRU Z ZADASZENIEM,
DWÓCH WIAT/ALTAN ORAZ NIEZBĘDNEJ INFRASTRUKTURY TECHNICZNEJ W
WYSZKACH NA DZIAŁCE O NR GEOD. 18