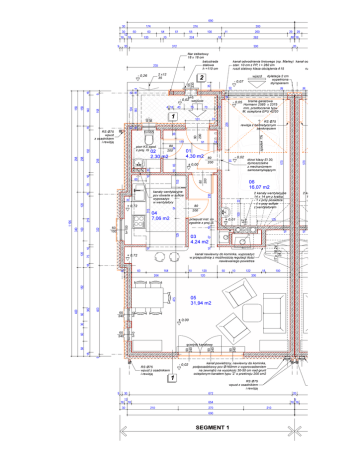
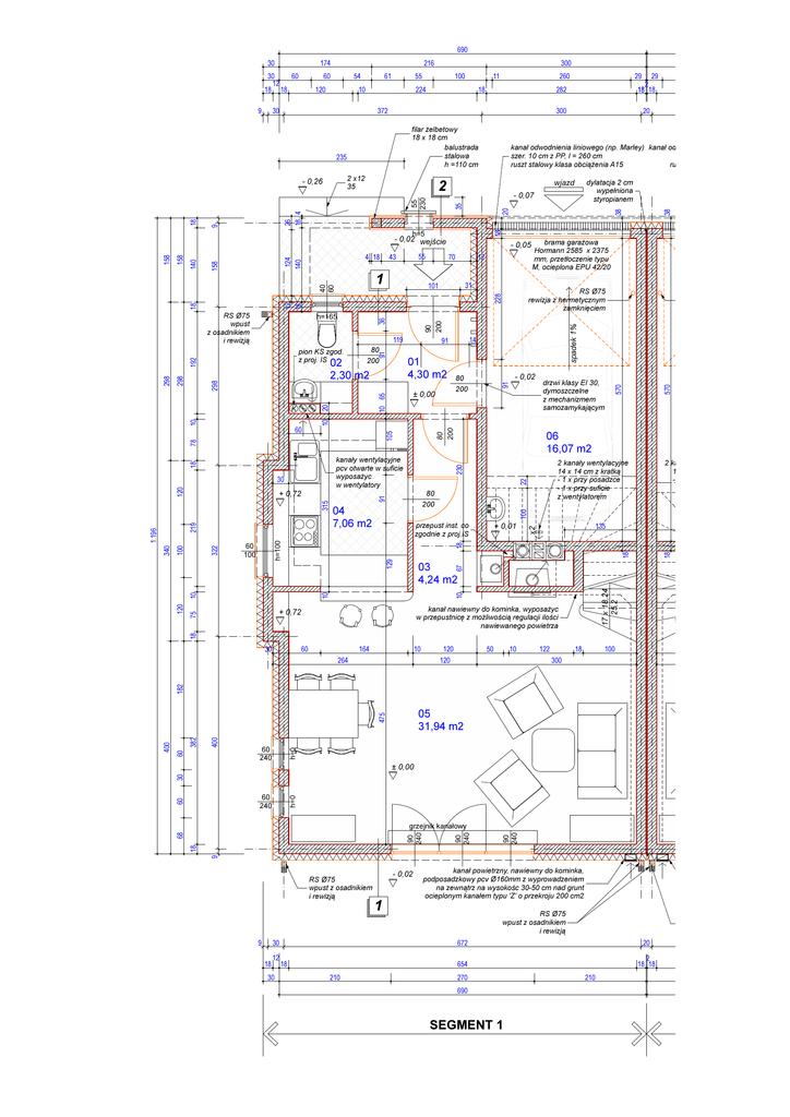
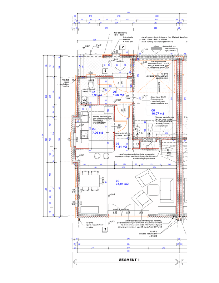
Rzut przyziemia ()

Transkrypt

Rzut przyziemia ()
690
54
61
55
10
100
30
filar żelbetowy
18 x 18 cm
balustrada
stalowa
h =110 cm
2 x12
35
35
124
140
brama garażowa
Hormann 2585 x 2375
mm, przetłoczenie typu
M, ocieplona EPU 42/20
RS Ø75
rewizja z hermetycznym
zamknięciem
10 65
± 0,00
spadek 1%
14
91
- 0,02
80
200
drzwi klasy EI 30,
dymoszczelne
z mechanizmem
samozamykającym
105
78
22
100
2 kanały wentylacyjne
14 x 14 cm z kratką
- 1 x przy posadzce
135
129
18
18
18
+ 0,01
x2
315
91
przepust inst. co
zgodnie z proj.IS
03
4,24 m2
kanał nawiewny do kominka, wyposażyc
w przepustnicę z możliwością regulacji ilości
nawiewanego powietrza
18
17 x 18,24
17 x 18,24
25,2
10
10
10
322
04
7,06 m2
h=100
219
80
200
+ 0,72
75
2 kanały wentylacyjne
14 x 14 cm z kratką
- 1 x przy posadzce
- 1 x przy suficie
z wentylatorem
67
120
+ 0,72
06
16,07 m2
230
18
kanały wentylacyjne
pcv otwarte w suficie
wyposażyc
w wentylatory
30
60
100
80
200
10
91
298
20
dylatacja 2 cm
wypełniona
styropianem
31
01
4,30 m2
02
2,30 m2
10
20
90
200
36
91
80
200
60
100
12
101
119
pion KS zgod.
z proj. IS
192
298
298
70
12
18
18
h=165
K
340
- 0,05
228
40
60
1
300
18
26
18 4
9
158
140
158
158
RS Ø75
wpust
z osadnikiem
i rewizją
120
55
29
2
18 18
wjazd
h=5
43
29
- 0,07
- 0,02 wejście
4 18
282
kanał odwodnienia liniowego (np. Marley) kanał odwodnienia liniowego (np. Marley)
szer. 10 cm z PP, l = 260 cm
ruszt stalowy klasa obciążenia A15
ruszt stalowy klasa obciążenia A15
2
55
230
- 0,26
1 196
260
18
372
235
18
11
224
38
60
120
20
9
60
18
300
570
30
12
18
216
38
174
570
30
30
60
164
10
120
120
50
10
122
18
100
300
182
264
h=0
400
382
60
60
240
30
± 0,00
h=0
60
60
240
90
240
90
240
9
18
90
240
grzejnik kanałowy
68
400
475
05
31,94 m2
RS Ø75
wpust z osadnikiem
i rewizją
9
30
- 0,02
kanał powietrzny, nawiewny do kominka,
podposadzkowy pcv Ø160mm z wyprowadzeniem
na zewnątrz na wysokośc 30-50 cm nad grunt
ocieplonym kanałem typu 'Z' o przekroju 200 cm2
1
RS Ø75
wpust z osadnikiem
i rewizją
672
20
654
2
18 18
12
18
30
18
210
270
690
SEGMENT 1
210