PROJEKT wersja 1

Transkrypt

PROJEKT wersja 1
E
D
C
B
WYWIEW NAWIEW
i
i
- 0,44
k
0,5%
90
1156
- 0,02
WYWIEW
0,7%
k
h
0,7%
j
d
+ 0,03
2%
H=3,26m
76
- sprzęt ratunkowy
k
2%
c.o. - wymiana rury
hydrant (zimna woda) aŜ do trzeciego pieca
2%
b - kaloryfer 30x500x1100
k
620
20
WYWIEW
172
k
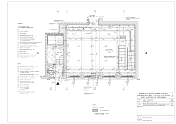
BASEN
101,24m²
186
zamurowanie szczeliny
a - wenytlacja mechaniczna
364 k
2%
52
27
2%
71
96
k
186
k
POM. TECHNICZNE BASENU
- MASZYNOWNIA TECHNOLOGICZNA
2%
± 0,00
zaczopowanie pionów
starej kanalizacji
LEGENDA:
172
211
100
kanalizacja - wymiana aŜ
do studzienki po przeciwległej
stronie budynku
c
DO WYKUCIA - podcięcie
wysokość i szerokość dostosować do
istniejącego
j
d - pomieszczenie korektora pH - 1,09m²
c
- przyłącze szczotki odkurzacza z brązu 2" - 2szt.
k
52
130
19
D1
52
5
a
NAWIEW
120
230
h - uchwyty chromowane ze stali nierdzewnej
RS
j - tuleja na podnośnik basenowy - ∅6
(Handi Move 3200) wg zaleceń producenta
Dz
RURA ∅40
- 0,16
k - kinkiet - FOSNOVA KING
O1
C
l - otówr rewizyjny - ∅60cm
B
61
l
b
g - przyłącze poboru prob wody z brązu 2" - 2szt.
239
k
m
120
k
NAWIEW
n
67
m
n
O2
OBUDOWA WENTYLACJI
stelaŜ stalowy
plyty GKF
plytki ceramiczne
64
k
142
+ 0,95
h
1166
52
25
c
6480
240
k
C.O.
NAWIEW
240
155 hp=60
80
1% 210
c
68
8.6 16
c
47
79
g
d
274
c
115.5
O2
O1
k
m
210
239
k
C.O.
NAWIEW
n
240
155 hp=60
c
D1
883
f
k
15
m
n
RS
O1
E
52
- 0,11
f
22
120
50
155 hp=60
f
1% 80
210
D
b - doplywowe denny z brązu/stal AISI 316-2" - 1szt.
e 8.6 47
120
155 hp=60
g 100
a - doplywy denne z brązu/stal AISI 316-2" - 6szt.
a
h
240
155 hp=60
n
BASEN
a
a
6x15x60
monolityczna Ŝelbetowa ścianka
wg projektu konstrukcyjnego
3,2%
4x18,5x32
1%
m
n - szyna szczelinowa nawiewna - Menerga
(szerokości 3x8mm dł. 1,0m, 1,5m i 2,0m)
wg projektu wentylacji
271
b
- 0,85
l
A
k
300
zawór
technologii basenowej
m - karoryfer - 30/400/1800
- 30/400/900
wg projektu c.o.
45
- 0,70
2%
+ 0,05
9x14,1x50
k
NIECKA BASENU
REHABILITACYJNEGO
47,66m2
3,7%
a
n - centralna skrzynka zasilająco - sterująca
i - urządzenie do dezynfekcji stóp
142
2%
a
a
105
m - regurator chemiczny stacji uzdatniania wody
f
25
- 0,32
400
H=4,10m
A
d - kratka rynny odpływowej - poprzeczna ASTRALPOOL
szer. 200mm wys. 220mm
c
526
k - pompa - ∅120cm
a
1,8%
1%
POM. TECHNICZNE
BASENU
17,61m²
j
j - pompy filtracyjne basenu 2,7 kW - 3faz.
i
- 0,95
j
1%
- odpływy z rynny D90 PCV - 10szt.
c
992
g
i - drabinka - stal nierdzewna
c
c
ZBIORNIK PRZELEWOWY
5,0m3
h - zbiornik na wodę o pojemności 5m3 z włazem
retencyjnym ∅60 cm - wg projektu konstrukcyjnego
l - wymiennik ciepła - 23kW
c
h
26 27
115
g - bezodpływowa szczelna studzienka ze stali kwasoodpornej
1m³ - wykonanie wg projektu konstrukcyjnego
c
h
279
126
- wentylacja mechaniczna przypodłogowa
(30 cm nad posadzką), włączniki wewnątrz
i na zewnątrz pomieszczenia
0,7%
f
k
45
e - pomieszczenie dozowania podchlorynu - 1m²
ŚCIANA
pustak PGS
MODERNIZACJA BASENU REHABILITACYJNEGO
WEWNĘTRZNEGO WRAZ ZE STACJĄ UZDATNIANIA
WODY W BUDYNKU PN. "PRZEWIĄZKA"
rys.nr
rysunek:
skala
adres:
inwestor:
LEGENDA
- wyburzenia
projektował:
RZUT PRZYZIEMIA
1:50
pgr. nr 1112/6
43-384 Jaworze, obręb Jaworze
Beskidzki Zespół Leczniczo – Rehabilitacyjny;Szpital Opieki
Długoterminowej 43-384 Jaworze;ul. Słoneczna 83
branŜa:
- ściany nowoprojektowane
- POWIERZCHNIA OKIEN = 13,82m²
dla 1/12 pow. = 12,56m²
2
opracował:
mgr inŜ. arch. Janusz Puszyński
opracował:
mgr inŜ. arch. Alicja Bednarczyk
A
data
02.2009