PROJEKT wersja 1

Transkrypt

PROJEKT wersja 1
66
61
OBUDOWA WENTYLACJI
stelaŜ stalowy
plyty GKF
tynk ATLAS
120
71
70
44
250
44
410
15 20
h
90
92
164
197
145
- 0,11
321
170
606
i
h
268
231
44
556
147
265
231
251
d
2%
+0,05
2%
- 0,32
3,7%
- 0,70
- 0,85
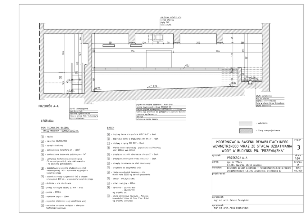
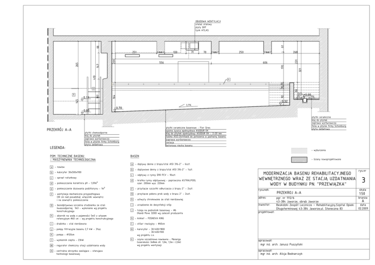
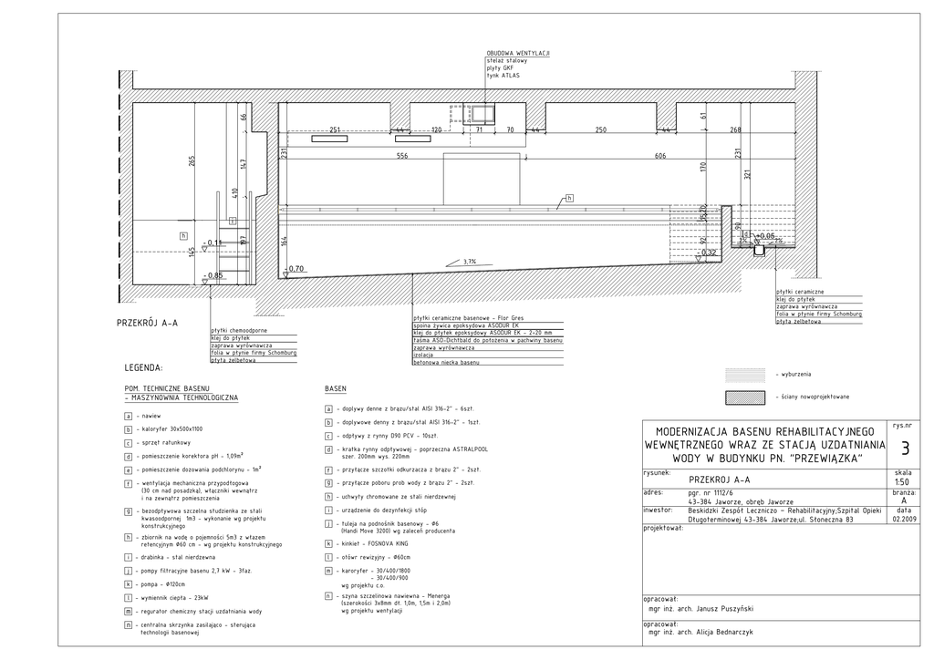
PRZEKRÓJ A-A
LEGENDA:
a - nawiew
b - kaloryfer 30x500x1100
c
płytki ceramiczne basenowe - Flor Gres
spoina Ŝywica epoksydowa ASODUR EK
klej do płytek epoksydowy ASODUR EK - 2÷20 mm
taśma ASO-Dichtbald do połoŜenia w pachwiny basenu
zaprawa wyrównawcza
izolacja
betonowa niecka basenu
płytki chemoodporne
klej do płytek
zaprawa wyrównawcza
folia w płynie firmy Schomburg
płyta Ŝelbetowa
POM. TECHNICZNE BASENU
- MASZYNOWNIA TECHNOLOGICZNA
- sprzęt ratunkowy
- wyburzenia
BASEN
b - doplywowe denny z brązu/stal AISI 316-2" - 1szt.
c
- odpływy z rynny D90 PCV - 10szt.
d - kratka rynny odpływowej - poprzeczna ASTRALPOOL
szer. 200mm wys. 220mm
e - pomieszczenie dozowania podchlorynu - 1m²
f
f
g - bezodpływowa szczelna studzienka ze stali
kwasoodpornej 1m3 - wykonanie wg projektu
konstrukcyjnego
- przyłącze szczotki odkurzacza z brązu 2" - 2szt.
h - uchwyty chromowane ze stali nierdzewnej
j - tuleja na podnośnik basenowy - ∅6
(Handi Move 3200) wg zaleceń producenta
projektował:
l - otówr rewizyjny - ∅60cm
j - pompy filtracyjne basenu 2,7 kW - 3faz.
m - karoryfer - 30/400/1800
- 30/400/900
wg projektu c.o.
n - centralna skrzynka zasilająco - sterująca
technologii basenowej
adres:
inwestor:
i - drabinka - stal nierdzewna
m - regurator chemiczny stacji uzdatniania wody
rysunek:
i - urządzenie do dezynfekcji stóp
k - kinkiet - FOSNOVA KING
l - wymiennik ciepła - 23kW
MODERNIZACJA BASENU REHABILITACYJNEGO
WEWNĘTRZNEGO WRAZ ZE STACJĄ UZDATNIANIA
WODY W BUDYNKU PN. "PRZEWIĄZKA"
g - przyłącze poboru prob wody z brązu 2" - 2szt.
h - zbiornik na wodę o pojemności 5m3 z włazem
retencyjnym ∅60 cm - wg projektu konstrukcyjnego
k - pompa - ∅120cm
- ściany nowoprojektowane
a - doplywy denne z brązu/stal AISI 316-2" - 6szt.
d - pomieszczenie korektora pH - 1,09m²
- wentylacja mechaniczna przypodłogowa
(30 cm nad posadzką), włączniki wewnątrz
i na zewnątrz pomieszczenia
płytki ceramiczne
klej do płytek
zaprawa wyrównawcza
folia w płynie firmy Schomburg
płyta Ŝelbetowa
n - szyna szczelinowa nawiewna - Menerga
(szerokości 3x8mm dł. 1,0m, 1,5m i 2,0m)
wg projektu wentylacji
rys.nr
3
skala
PRZEKROJ A-A
1:50
pgr. nr 1112/6
43-384 Jaworze, obręb Jaworze
Beskidzki Zespół Leczniczo – Rehabilitacyjny;Szpital Opieki
Długoterminowej 43-384 Jaworze;ul. Słoneczna 83
branŜa:
opracował:
mgr inŜ. arch. Janusz Puszyński
opracował:
mgr inŜ. arch. Alicja Bednarczyk
A
data
02.2009