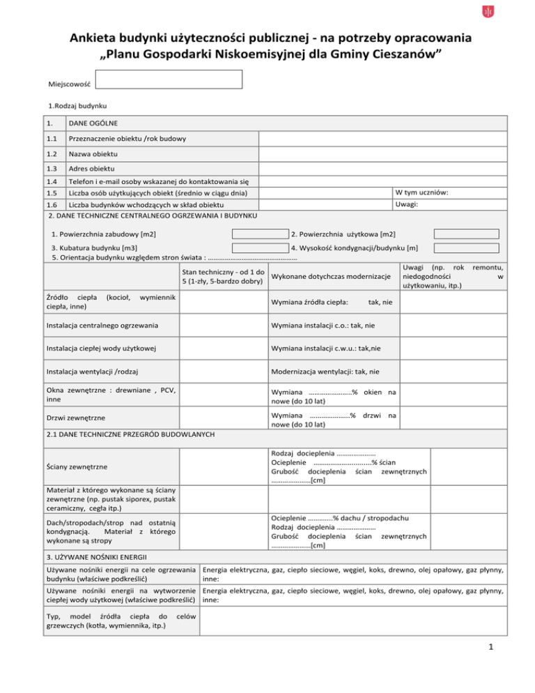
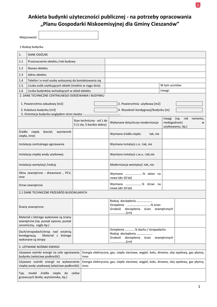
Ankieta budynki użyteczności publicznej

Transkrypt

Ankieta budynki użyteczności publicznej
Ankieta budynki użyteczności publicznej - na potrzeby opracowania
„Planu Gospodarki Niskoemisyjnej dla Gminy Cieszanów”
Miejscowość
1.Rodzaj budynku
1.
DANE OGÓLNE
1.1
Przeznaczenie obiektu /rok budowy
1.2
Nazwa obiektu
1.3
Adres obiektu
1.4
Telefon i e-mail osoby wskazanej do kontaktowania się
1.5
Liczba osób użytkujących obiekt (średnio w ciągu dnia)
W tym uczniów:
Uwagi:
1.6 Liczba budynków wchodzących w skład obiektu
2. DANE TECHNICZNE CENTRALNEGO OGRZEWANIA I BUDYNKU
1. Powierzchnia zabudowy [m2]
2. Powierzchnia użytkowa [m2]
3. Kubatura budynku [m3]
4. Wysokość kondygnacji/budynku [m]
5. Orientacja budynku względem stron świata : …………………………………………
Uwagi (np. rok
Stan techniczny - od 1 do
Wykonane dotychczas modernizacje niedogodności
5 (1-zły, 5-bardzo dobry)
użytkowaniu, itp.)
Źródło ciepła
ciepła, inne)
(kocioł,
wymiennik
Wymiana źródła ciepła:
remontu,
w
tak, nie
Instalacja centralnego ogrzewania
Wymiana instalacji c.o.: tak, nie
Instalacja ciepłej wody użytkowej
Wymiana instalacji c.w.u.: tak,nie
Instalacja wentylacji /rodzaj
Modernizacja wentylacji: tak, nie
Okna zewnętrzne : drewniane , PCV,
inne
Wymiana …………………..% okien na
nowe (do 10 lat)
Drzwi zewnętrzne
Wymiana …...…………...% drzwi na
nowe (do 10 lat)
2.1 DANE TECHNICZNE PRZEGRÓD BUDOWLANYCH
Rodzaj docieplenia …………………
Ocieplenie ………………............% ścian
Grubość docieplenia ścian zewnętrznych
…………………[cm]
Ściany zewnętrzne
Materiał z którego wykonane są ściany
zewnętrzne (np. pustak siporex, pustak
ceramiczny, cegła itp.)
Ocieplenie ………....% dachu / stropodachu
Rodzaj docieplenia …………………
Grubość docieplenia ścian zewnętrznych
…………………[cm]
Dach/stropodach/strop nad ostatnią
kondygnacją.
Materiał z którego
wykonane są stropy
3. UŻYWANE NOŚNIKI ENERGII
Używane nośniki energii na cele ogrzewania Energia elektryczna, gaz, ciepło sieciowe, węgiel, koks, drewno, olej opałowy, gaz płynny,
budynku (właściwe podkreślić)
inne:
Używane nośniki energii na wytworzenie Energia elektryczna, gaz, ciepło sieciowe, węgiel, koks, drewno, olej opałowy, gaz płynny,
ciepłej wody użytkowej (właściwe podkreślić) inne:
Typ, model źródła ciepła do
grzewczych (kotła, wymiennika, itp.)
celów
1
Moc zainstalowana źródeł ciepła, kW (szukać
na tabliczce kotła, w dokumentacji)
Zaobserwowane
problemy
podczas
użytkowania
obiektu
(niedogrzane/przegrzane
pomieszczenia,
niedostateczna wentylacja pomieszczeń):
4. Roczne zużycia i koszty nośników energii
energia elektryczna
rok
gaz ziemny
zużycie
[kWh/rok]
koszt
faktur
[zł/rok]
wg
rok
zużycie
[m3/rok]
grupa taryfowa np. C11 (szukać na fakturach
lub w umowie)
grupa taryfowa np.. W3.1 (szukać na fakturach lub w
umowie)
2012
2012
2013
2013
drewno i odpady drzewne
ciepło sieciowe
rok
zużycie
[t/rok],
[m3/rok]
koszt
faktur
[zł/rok]
wg
rok
2008 – rok bazowy
2008 – rok bazowy
2012
2012
2013
2013
węgiel
olej opałowy
rok
zużycie
[t/rok]
koszt
faktur
[zł/rok]
wg
rok
2008 – rok bazowy
2008 – rok bazowy
2012
2012
2013
2013
inne, jakie …………………………………………….
rok
zużycie
[…..…./rok]
koszt wg faktur
[zł/rok]
zużycie
[GJ/rok]
koszt wg faktur
[zł/rok]
zużycie
[l/rok],
[m3/rok]
koszt wg faktur
[zł/rok]
zużycie
[………../rok]
koszt wg faktur
[zł/rok]
inne, jakie …………………………………………….
koszt
faktur
[zł/rok]
wg
rok
2008 – rok bazowy
2008 – rok bazowy
2012
2012
2013
2013
5. URZĄDZENIA WYKORZYSTUJĄCE ENERGIĘ ODNAWIALNĄ
Czy w obiekcie występują urządzenia wykorzystujące energię odnawialną?
Np. Kotły na biomasę moc zainstalowana.
Kolektory słoneczne (łączna powierzchni, liczba, rodzaj); pompy ciepła
(rodzaj, moc cieplna), inne jakie, moc zainstalowana.
W razie pytań lub wątpliwości prosimy o kontakt z Wykonawcą –Bio-San Adam Czekański tel. 509 793 106
Ankiety można wypełniać w wersji papierowej – wypełnione ankiety należy składać w terminie do 31 października 2014 roku w Punkcie
podawczym Urzędu Gminy w Cieszanowie.
Ankiety w wersji elektronicznej należy wysyłać na e-mail: [email protected] w terminie do 31 października 2014 roku.
2