Ankieta budynki użyteczności publicznej, podmioty gospodarcze

Transkrypt

Ankieta budynki użyteczności publicznej, podmioty gospodarcze
Plan gospodarki niskoemisyjnej dla Gminy Lelis.
Ankieta budynki użyteczności publicznej, podmioty gospodarcze
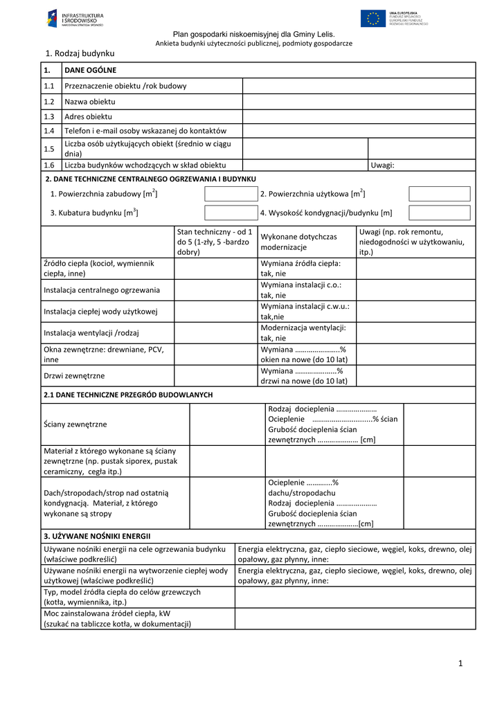
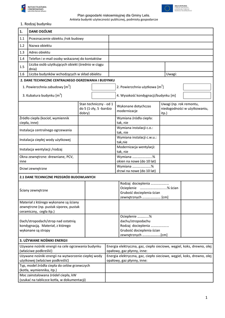
1. Rodzaj budynku
1.
DANE OGÓLNE
1.1
Przeznaczenie obiektu /rok budowy
1.2
Nazwa obiektu
1.3
Adres obiektu
1.4
Telefon i e-mail osoby wskazanej do kontaktów
1.5
1.6
Liczba osób użytkujących obiekt (średnio w ciągu
dnia)
Liczba budynków wchodzących w skład obiektu
Uwagi:
2. DANE TECHNICZNE CENTRALNEGO OGRZEWANIA I BUDYNKU
2
2
1. Powierzchnia zabudowy [m ]
2. Powierzchnia użytkowa [m ]
3
3. Kubatura budynku [m ]
4. Wysokość kondygnacji/budynku [m]
Stan techniczny - od 1
do 5 (1-zły, 5 -bardzo
dobry)
Źródło ciepła (kocioł, wymiennik
ciepła, inne)
Instalacja centralnego ogrzewania
Instalacja ciepłej wody użytkowej
Instalacja wentylacji /rodzaj
Okna zewnętrzne: drewniane, PCV,
inne
Drzwi zewnętrzne
Wykonane dotychczas
modernizacje
Uwagi (np. rok remontu,
niedogodności w użytkowaniu,
itp.)
Wymiana źródła ciepła:
tak, nie
Wymiana instalacji c.o.:
tak, nie
Wymiana instalacji c.w.u.:
tak,nie
Modernizacja wentylacji:
tak, nie
Wymiana …………………..%
okien na nowe (do 10 lat)
Wymiana …...…………...%
drzwi na nowe (do 10 lat)
2.1 DANE TECHNICZNE PRZEGRÓD BUDOWLANYCH
Ściany zewnętrzne
Rodzaj docieplenia …………………
Ocieplenie ………………............% ścian
Grubość docieplenia ścian
zewnętrznych ………………… [cm]
Materiał z którego wykonane są ściany
zewnętrzne (np. pustak siporex, pustak
ceramiczny, cegła itp.)
Dach/stropodach/strop nad ostatnią
kondygnacją. Materiał, z którego
wykonane są stropy
Ocieplenie ………....%
dachu/stropodachu
Rodzaj docieplenia …………………
Grubość docieplenia ścian
zewnętrznych …………………[cm]
3. UŻYWANE NOŚNIKI ENERGII
Używane nośniki energii na cele ogrzewania budynku
(właściwe podkreślić)
Używane nośniki energii na wytworzenie ciepłej wody
użytkowej (właściwe podkreślić)
Typ, model źródła ciepła do celów grzewczych
(kotła, wymiennika, itp.)
Moc zainstalowana źródeł ciepła, kW
(szukać na tabliczce kotła, w dokumentacji)
Energia elektryczna, gaz, ciepło sieciowe, węgiel, koks, drewno, olej
opałowy, gaz płynny, inne:
Energia elektryczna, gaz, ciepło sieciowe, węgiel, koks, drewno, olej
opałowy, gaz płynny, inne:
1
Plan gospodarki niskoemisyjnej dla Gminy Lelis.
Ankieta budynki użyteczności publicznej, podmioty gospodarcze
Zaobserwowane problemy podczas użytkowania
obiektu (niedogrzane/ przegrzane pomieszczenia,
niedostateczna wentylacja pomieszczeń):
4. Roczne zużycia i koszty nośników energii
energia elektryczna
rok
gaz ziemny
rok
zużycie [kWh/rok]
3
zużycie [m /rok]
2012
2012
2014
2014
drewno i odpady drzewne
3
rok
zużycie [t/rok], [m /rok]
ciepło sieciowe
rok
2012 – rok bazowy
2012 – rok bazowy
2014
2014
węgiel
olej opałowy
rok
zużycie [t/rok]
zużycie [GJ/rok]
3
rok
zużycie [l/rok], [m /rok]
2012 – rok bazowy
2012 – rok bazowy
2014
2014
inne, jakie …………………………………………….
inne, jakie …………………………………………….
rok
rok
zużycie […..…./rok]
zużycie [………../rok]
2012 – rok bazowy
2012 – rok bazowy
2014
2014
5. URZĄDZENIA WYKORZYSTUJĄCE ENERGIĘ ODNAWIALNĄ.
Czy w obiekcie występują urządzenia wykorzystujące energię odnawialną?
Np. Kotły na biomasę moc zainstalowana.
Kolektory słoneczne (łączna powierzchni, liczba, rodzaj);
pompy ciepła (rodzaj, moc cieplna), inne jakie, moc zainstalowana.
6. Transport
Liczba posiadanych
pojazdów
Zużycie paliwa do
celów
transportowych
Benzyna
…………… l
Olej napędowy
…………… l
LPG
…………… l
Biopaliwo
…………… l
7. Planowane działania termomodernizacyjne *
Zwiększenie efektywności wytwarzania energii elektrycznej lub ciepła (budowa lub
modernizacja źródeł ciepła)
Tak
Nie
Wykorzystanie odnawialnych źródeł energii ( OZE )
Tak
Nie
Tak
Nie
Zwiększenie efektywności wykorzystania energii końcowej (np. Termomodernizacja,
automatyzacja, wymiana urządzeń na energooszczędne
Krótki opis zakresu przedsięwzięcia:
Przewidywane koszty, źródła finansowania, terminy realizacji:
Ankiety można wypełniać w wersji papierowej lub elektronicznej. Wypełnioną ankietę można złożyć do dnia 1 czerwca 2015
r. w Biurze Podawczym Urzędu Gminy Lelis, przesłać na adres: 07-402 Lelis ul. Szkolna 37 lub drogą elektroniczną:
[email protected].
Wszystkie przekazane informacje zostaną wykorzystane wyłącznie do oszacowania wielkości emisji gazów cieplarnianych
oraz opracowania Planu Gospodarki Niskoemisyjnej dla Gminy Lelis i nie będą udostępniane publicznie. Opracowania
będą zawierać jedynie zestawienia i wnioski z analizy zebranych informacji.
Dziękujemy za wypełnienie ankiety
*Odpowiednie podkreślić
2