Pobierz - PCU Piaseczno Sp. z oo

Transkrypt

Pobierz - PCU Piaseczno Sp. z oo
05-500 Piaseczno
Stadium :
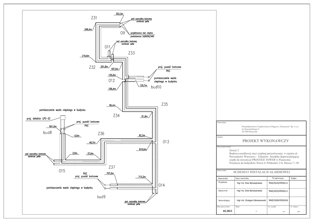
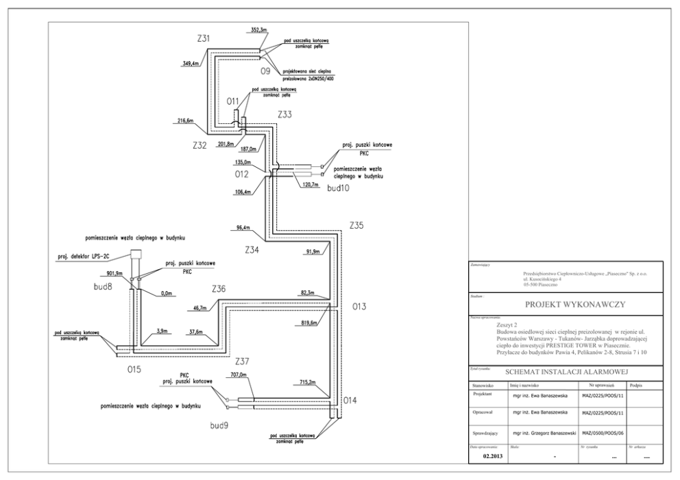
PROJEKT WYKONAWCZY
Nazwa opracowania:
Zeszyt 2
Budowa osiedlowej sieci cieplnej preizolowanej w rejonie ul.
SCHEMAT INSTALACJI ALARMOWEJ
Stanowisko
Nr upraw
Imi i nazwisko
Podpis
Projektant
Data opracowania:
02.2013
Skala:
Nr rysunku
-
Nr arkusza
...
....

Podobne dokumenty