SIMAF Sp. z oo 44-100 GLIWICE, ul. KAROLINKI 58 Adres

Transkrypt

SIMAF Sp. z oo 44-100 GLIWICE, ul. KAROLINKI 58 Adres
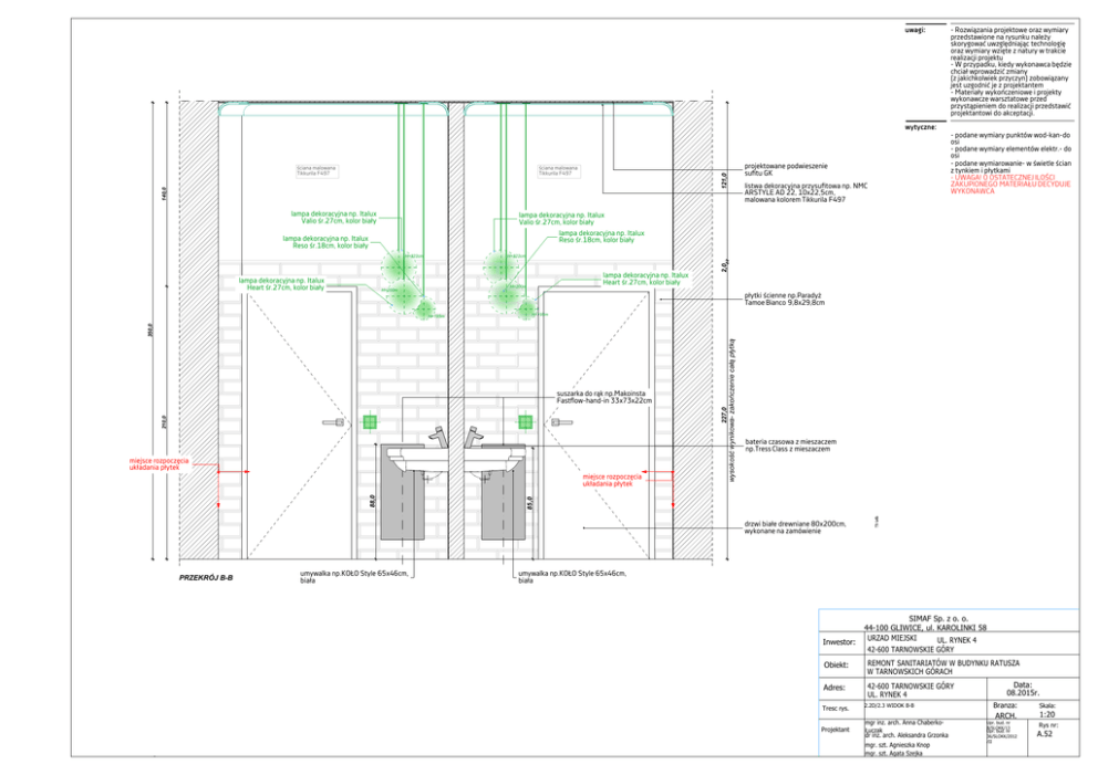
uwagi:
- Rozwiązania projektowe oraz wymiary
przedstawione na rysunku należy
skorygować uwzględniając technologię
oraz wymiary wzięte z natury w trakcie
realizacji projektu
- W przypadku, kiedy wykonawca będzie
chciał wprowadzić zmiany
(z jakichkolwiek przyczyn) zobowiązany
jest uzgodnić je z projektantem
- Materiały wykończeniowe i projekty
wykonawcze warsztatowe przed
przystąpieniem do realizacji przedstawić
projektantowi do akceptacji.
wytyczne:
121,0
ściana malowana
Tikkurila F497
140,0
ściana malowana
Tikkurila F497
lampa dekoracyjna np. Italux
Valio śr.27cm, kolor biały
- podane wymiary punktów wod-kan-do
osi
- podane wymiary elementów elektr.- do
osi
- podane wymiarowanie- w świetle ścian
z tynkiem i płytkami
- UWAGA! O OSTATECZNEJ ILOŚCI
ZAKUPIONEGO MATERIAŁU DECYDUJE
WYKONAWCA
projektowane podwieszenie
sufitu GK
listwa dekoracyjna przysufitowa np. NMC
ARSTYLE AD 22, 10x22,5cm,
malowana kolorem Tikkurila F497
lampa dekoracyjna np. Italux
Valio śr.27cm, kolor biały
lampa dekoracyjna np. Italux
Reso śr.18cm, kolor biały
lampa dekoracyjna np. Italux
Reso śr.18cm, kolor biały
lampa dekoracyjna np. Italux
Heart śr.27cm, kolor biały
H=222cm
lampa dekoracyjna np. Italux
Heart śr.27cm, kolor biały
H=200m
H=200m
2,0
H=222cm
płytki ścienne np.Paradyż
Tamoe Bianco 9,8x29,8cm
H=195m
210,0
227,0
suszarka do rąk np.Makoinsta
Fastflow-hand-in 33x73x22cm
wysokość wynikowa- zakończenie całą płytką
350,0
H=195m
miejsce rozpoczęcia
układania płytek
85,0
88,0
miejsce rozpoczęcia
układania płytek
bateria czasowa z mieszaczem
np.Tress Class z mieszaczem
drzwi białe drewniane 80x200cm,
wykonane na zamówienie
PRZEKRÓJ B-B
umywalka np.KOŁO Style 65x46cm,
biała
umywalka np.KOŁO Style 65x46cm,
biała
Inwestor:
SIMAF Sp. z o. o.
44-100 GLIWICE, ul. KAROLINKI 58
URZAD MIEJSKI
UL. RYNEK 4
42-600 TARNOWSKIE GÓRY
Obiekt:
REMONT SANITARIATÓW W BUDYNKU RATUSZA
W TARNOWSKICH GÓRACH
Adres:
42-600 TARNOWSKIE GÓRY
UL. RYNEK 4
Tresc rys.
Projektant
GSPublisherEngine 9.0.86.77
grzejnik 100x50x11,5cm,
np.Jaga Strada,biały
2.2D/2.3 WIDOK B-B
mgr inz. arch. Anna ChaberkoŁuczak
dr inz. arch. Aleksandra Grzonka
mgr. szt. Agnieszka Knop
mgr. szt. Agata Szejka
Data:
08.2015r.
Branza:
ARCH.
Upr. bud. nr
8/SLOKK/13
Upr. bud. nr
36/SLOKK/2012
/II
Skala:
1:20
Rys nr:
A.52