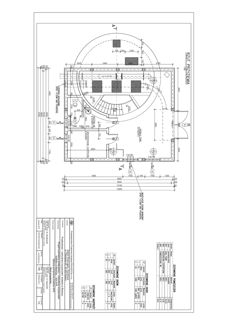
1_3 GPS rzut przyziemia

Transkrypt

1_3 GPS rzut przyziemia
stal k/o DN 400
Inwestor:
Inwestycja:
Opracowanie:
Temat rysunku:
Projektował:
Przedsiębiorstwo Projektowo-Usługowe PROJ-EKO Sp. z o.o.
Zakład Wodociągów i Kanalizacji
ul. Półwiejska 20; 63-900 Rawicz
64-920 Piła ul. Okrzei 18
tel. 0-67/214-22-40, fax 0-67/214-22-50
Przebudowa i rozbudowa oczyszczalni ścieków w Rawiczu
Stadium:
architektoniczna
Branża:
mgr inż. arch. H. Gawroński
Sprawdził:
Nr projektu:
Wersja:
upr.bud. 18/73 ol
specjalność: architektura w pełnym zakresie
Skala:
178/PB/A+K/14
1/3
Nr rysunku:
Projekt budowlany przebudowy i rozbudowy oczyszczalni
ścieków w Rawiczu - tom A+K
Główna pompownia ścieków GPS
Rzut przyziemia
mgr inż. arch. M. Nowakowski
Data:
PROJEKT BUDOWLANY
upr.bud. 46/P/98
specjalność: architektura w pełnym zakresie
sierpień 2015