Przedsiębiorstwo Handlowo

Transkrypt

Przedsiębiorstwo Handlowo
Taras
kotło
wnia
12,86 m²
h=3,25m
wg
f 25
f 25
CV22-60x140
f 25
CV22-60x100
f 20
CV22-60x100
f 20
f 20
CV22-60x100 CV22-60x100
f 32
f 50
f 25
CV22-60x140
f 20
f 50
CV22-60x100
Pom.
nr 1
Wykładzina
obiektowa
13,31 m²
Pom.
nr 6
h=3,16m
Wykładzina
dywanowa
38,93 m²
h=3,20m
h=3,25m
Pom.
nr 5
Wykładzina
obiektowa
26,47 m²
h=3,25m
Wykładzina
obiektowa
14,07 m²
h=3,26m
pion na poddasze
f 32
h=3,25m
nr 1
CV22-60x110
Płytki
ceramiczne
Komunikacja
26,98 m²
nr 2
h=3,22m
Płytki
ceramiczne
30,98 m²
h=3,22m
Płytki
WC ceramiczne
nr 3 5,82 m²
f 20
27,12 m²
Komunikacja
f 25
Pom.
nr 2
Wykładzina
obiektowa
h=3,22m
CV22-60x110
f 16
f 20
CV22-60x100
Wykładzina
obiektowa
53,73 m²
f 40
Pom.
nr 3
Pom.
nr 4
pod stropem
CV22-60x100 CV22-60x100 CV22-60x100
f 20
f 20
f 25
CV22-60x140
f 16
f 20
f 32
f 50
f 20
f 20
41,12 m²
Płytki
ceramiczne
kocioł gazowy z zamkniętą
komorą spalnia o mocy 60kW
wg
Płytki
ceramiczne
f 16
CV22-50x50
f 20
Płytki
WC ceramiczne
nr 1 22,59 m²
h=3,20m
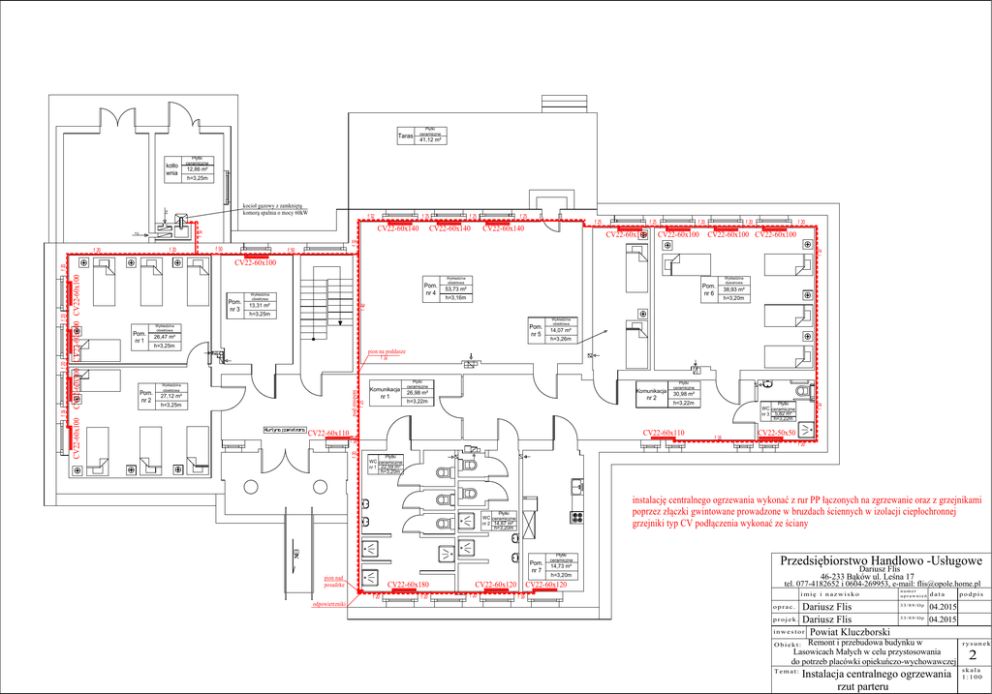
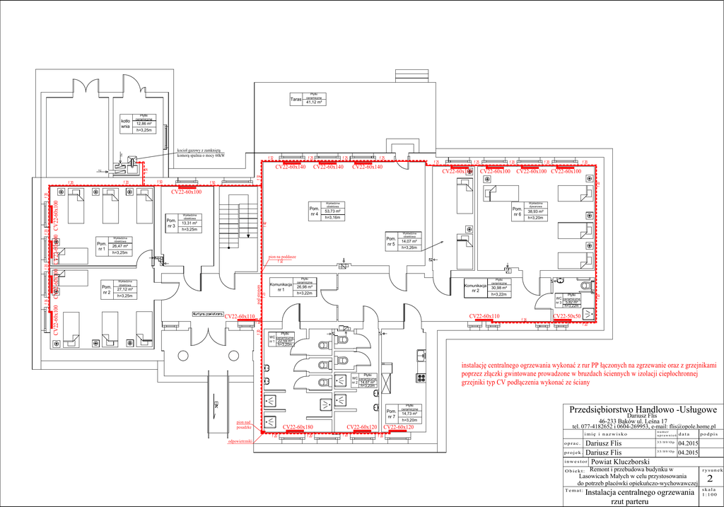
instalację centralnego ogrzewania wykonać z rur PP łączonych na zgrzewanie oraz z grzejnikami
poprzez złączki gwintowane prowadzone w bruzdach ściennych w izolacji ciepłochronnej
grzejniki typ CV podłączenia wykonać ze ściany
Płytki
WC ceramiczne
nr 2 14,67 m²
h=3,20m
Pom.
nr 7
pion nad
posadzke
CV22-60x180
f 20
odpowietrzniki
f 20
CV22-60x120
f 20
Płytki
ceramiczne
14,73 m²
Przedsiębiorstwo Handlowo -Usługowe
Dariusz Flis
46-233 Bąków ul. Leśna 17
h=3,20m
CV22-60x120
tel. 077-4182652 i 0604-269953, e-mail: [email protected]
numer
uprawnień
data
oprac.
33/89/Op
projek.
33/89/Op
04.2015
04.2015
imię i nazwisko
f 16
Dariusz Flis
Dariusz Flis
i n w e s t o r Powiat Kluczborski
Remont i przebudowa budynku w
Lasowicach Małych w celu przystosowania
do potrzeb placówki opiekuńczo-wychowawczej
Obiekt:
Temat:
Instalacja centralnego ogrzewania
rzut parteru
podpis
rysunek
2
skala
1:100